David Andrew says ..
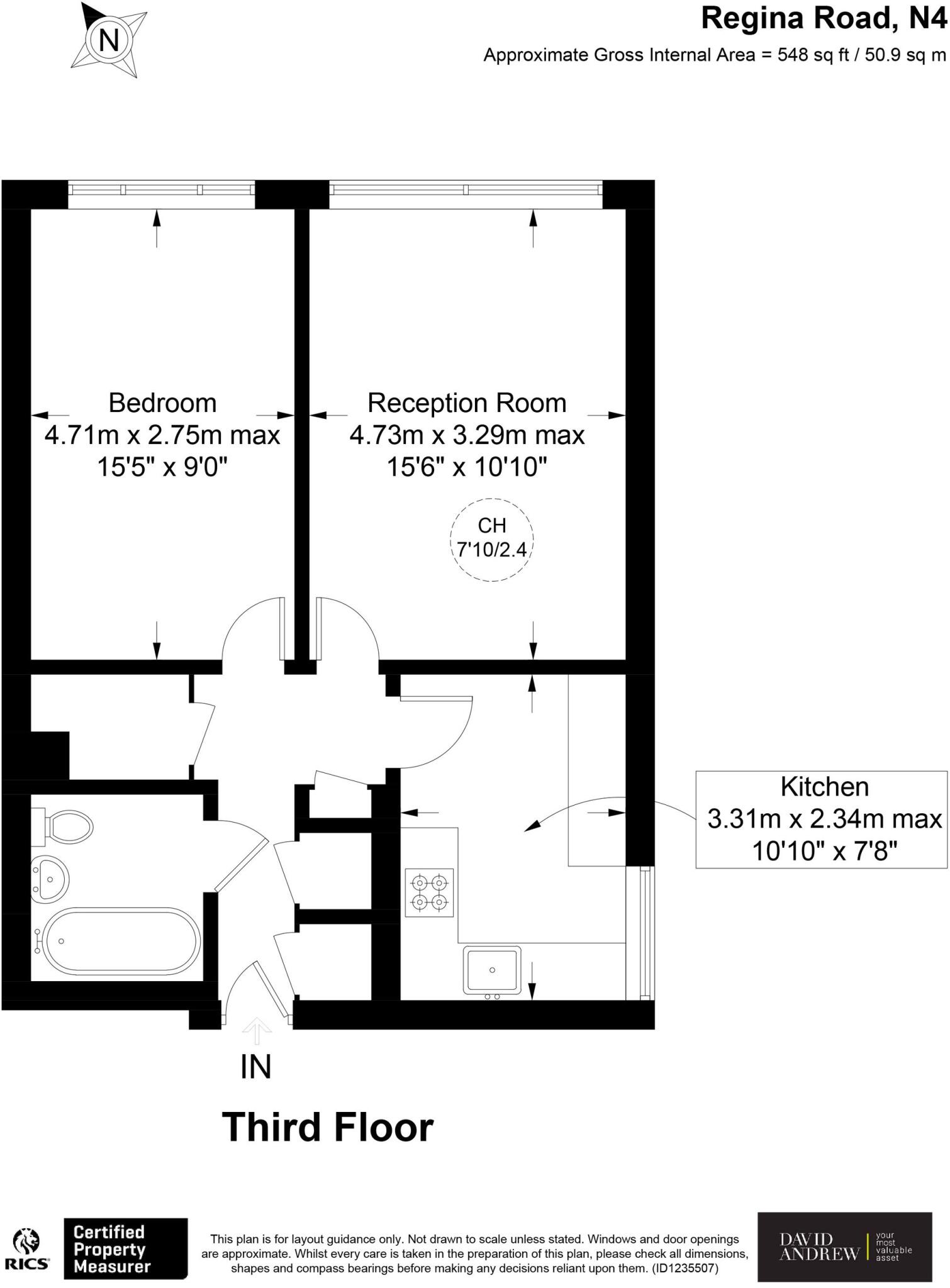
A well presented one bedroom flat located in a well-maintained purpose-built block, this bright and spacious one-bedroom flat offers circa 550sqft of thoughtfully arranged living space.
Property Oracle says ..
This is a one-bedroom flat located in Tollington, Islington. The property is in a good location, close to schools, transportation, and local amenities. The property is in reasonable condition, but could benefit from some modernisation. The property is listed for £325,000, which is slightly below the average price for the area. Overall, this property represents a good opportunity for a first-time buyer or investor.
Therefore, we give this property 5 / 10. *Disclaimer: This is our option and does constitute a recommendation or financial advice. Do your own research. *
- Price
- 7
- Condition
- 5
- Location
- 7
- Land
- 3
- Bedrooms
- 1
- Bathrooms
- 1
- Sqft (est)
- 547.88
The heatmap indicates the level of crime in the area. The color of the heatmap indicates the crime severity and recency.
Metrics Year-on-Year
- Average area value
- 770,833.00 £Increased by 10.52 %
- Est sale value
- 620,748.04 £Increased by 19.14 %
- Average area rental value
- 2,248.00 £/moDecreased by 5.39 %
- Est letting value
- 1,643.64 £/moUnchanged by 0.00 %
- Est rental Yield
- 3.50 %Decreased by 14.43 %
- Crime Rate
- 6.00 %Unchanged by 0.00 %
Agent Activity
David Andrew created the listing.
Nearby Schools
| Name | Type | Ofsted | Distance |
|---|---|---|---|
| North Islington Nursery School | Local Authority Nursery School | Good | 0.24 KM |
| North Islington Nursery School And Children'S Centre | Children's Centre | 0.27 KM | |
| Christ The King Catholic Primary School | Voluntary Aided School | Good | 0.37 KM |
| Pooles Park Primary School | Community School | Good | 0.40 KM |
| Arts And Media School Islington | Foundation School | Good | 0.41 KM |
Images
Nearby Streets
| Name | Average Price | Average Sqft | Distance |
|---|---|---|---|
| Osborne Road | £ 0 | 0 | 0.00 KM |
| Dulas Street | £ 0 | 0 | 0.00 KM |
| Cornwallis Square | £ 250,000 | 0 | 0.00 KM |
| Franchise Place | £ 0 | 0 | 0.00 KM |
| Tollington Mews | £ 0 | 0 | 0.00 KM |
Nearby Transport
| Name | NLC | TLC | Distance |
|---|---|---|---|
| Crouch Hill | 7406 | CRH | 0.61 KM |
| Finsbury Park | 6119 | FPK | 0.82 KM |
| Harringay | 6012 | HGY | 1.27 KM |
| Harringay Green Lanes | 7401 | HRY | 1.85 KM |
| Drayton Park | 6000 | DYP | 1.91 KM |
Nearby Listings
| Address | Price | Type | Score | Distance |
|---|---|---|---|---|
| Regina Road, Saltdene, N4 | £ 325,000 | BUY | 5 / 10 | 0.00 KM |
| Regina Road, London | £ 320,000 | BUY | Unknown | 0.01 KM |
| Tollington Park, London | £ 370,000 | BUY | 8 / 10 | 0.07 KM |
| Searle Place, Finsbury Park | £ 500,000 | BUY | 6 / 10 | 0.07 KM |
| Regina Road, London, N4 | £ 1,375,000 | BUY | Unknown | 0.09 KM |
Nearby Properties
| Address | Price | Distance |
|---|---|---|
| 95c Stroud Green Road | £ 88,000 | 0.07 KM |
| 95d Stroud Green Road | £ 100,000 | 0.07 KM |
| 87a Stroud Green Road | £ 130,000 | 0.07 KM |
| 91b Stroud Green Road | £ 175,000 | 0.08 KM |
| 99a Stroud Green Road | £ 321,500 | 0.08 KM |