Blackhills, Esher, Surrey, KT10
By Knight Frank
£ 2,375,000
Reviews
3 out of 5 stars
Knight Frank says ..
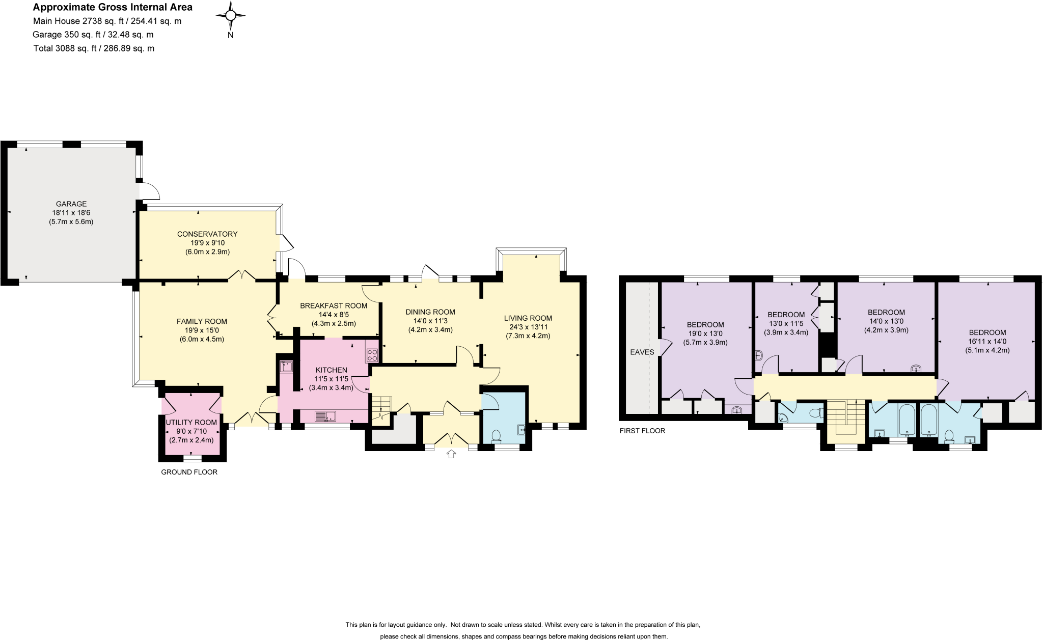
Property For Sale in Blackhills, Esher. A 1930's character detached home situated in approximately 0.45acres in the prestigious Blackhills estate. The property offers potential to extend or develop (STPP) and has the benefit of a wide frontage with over 3000sq ft of accommodation. Esher...
Property Oracle says ..
This detached property in Blackhills, Esher, presents a unique opportunity. Its prime location offers access to reputable schools and green spaces, making it attractive to families. The property features a large garden with a pool and outbuildings, adding to its appeal. However, the interior requires significant renovation to meet modern standards. The asking price of £2,375,000 reflects the location and land size, but potential buyers should factor in the cost of necessary updates.
Therefore, we give this property 6 / 10. *Disclaimer: This is our option and does constitute a recommendation or financial advice. Do your own research. *
- Price
- 6
- Condition
- 4
- Location
- 7
- Land
- 8
- Bedrooms
- 4
- Bathrooms
- 2
- Sqft (est)
- 3,088.00
The heatmap indicates the level of crime in the area. The color of the heatmap indicates the crime severity and recency.
Metrics Year-on-Year
- Average area value
- 1,532,000.00 £Increased by 47.20 %
- Est sale value
- 4,922,272.00 £Increased by 112.53 %
- Average area rental value
- 4,103.00 £/moIncreased by 15.06 %
- Est letting value
- 12,352.00 £/moIncreased by 100.00 %
- Est rental Yield
- 3.21 %Decreased by 21.90 %
- Crime Rate
- 2.00 %Unchanged by 0.00 %
Agent Activity
Knight Frank created the listing.
Nearby Schools
| Name | Type | Ofsted | Distance |
|---|---|---|---|
| Claremont Fan Court School | Other Independent School | 1.24 KM | |
| Reeds School | Other Independent School | 1.63 KM | |
| Acs Cobham International School | Other Independent School | 2.23 KM | |
| Burhill Sure Start Children'S Centre | Children's Centre | 2.25 KM | |
| Cobham Free School | Free Schools | Good | 2.35 KM |
Images
Nearby Streets
| Name | Average Price | Average Sqft | Distance |
|---|---|---|---|
| Westacres | £ 1,795,000 | 0 | 0.00 KM |
| Cobham Bypass | £ 0 | 0 | 0.00 KM |
| Neville Close | £ 1,850,000 | 0 | 0.00 KM |
| Willow House | £ 2,495,000 | 0 | 0.00 KM |
Nearby Transport
| Name | NLC | TLC | Distance |
|---|---|---|---|
| Oxshott | 5602 | OXS | 2.61 KM |
| Hersham | 5590 | HER | 2.97 KM |
| Claygate | 5556 | CLG | 3.66 KM |
| Cobham And Stoke D'Abernon | 5557 | CSD | 3.92 KM |
| Esher | 5558 | ESH | 4.28 KM |
Nearby Listings
| Address | Price | Type | Score | Distance |
|---|---|---|---|---|
| Blackhills, Esher, Surrey, KT10 | £ 2,375,000 | BUY | 6 / 10 | 0.00 KM |
| Blackhills, Esher, Surrey | £ 6,500,000 | BUY | 7 / 10 | 0.19 KM |
| The Coach house, Albany Close, Esher, Surrey, KT10 | £ 3,000,000 | BUY | Unknown | 0.43 KM |
| Albany Close, Blackhills, KT10 | £ 3,000,000 | BUY | 9 / 10 | 0.44 KM |
| Portsmouth Road, Esher, Surrey, KT10 | £ 550,000 | BUY | Unknown | 0.61 KM |
Nearby Properties
| Address | Price | Distance |
|---|---|---|
| 37 Blackhills | £ 3,750,000 | 0.23 KM |
| 32 Blackhills | £ 600,000 | 0.23 KM |
| 16 Blackhills | £ 3,300,000 | 0.24 KM |
| 22 Blackhills | £ 2,450,000 | 0.24 KM |
| 25 Blackhills | £ 2,125,000 | 0.26 KM |