Island Homes says ..
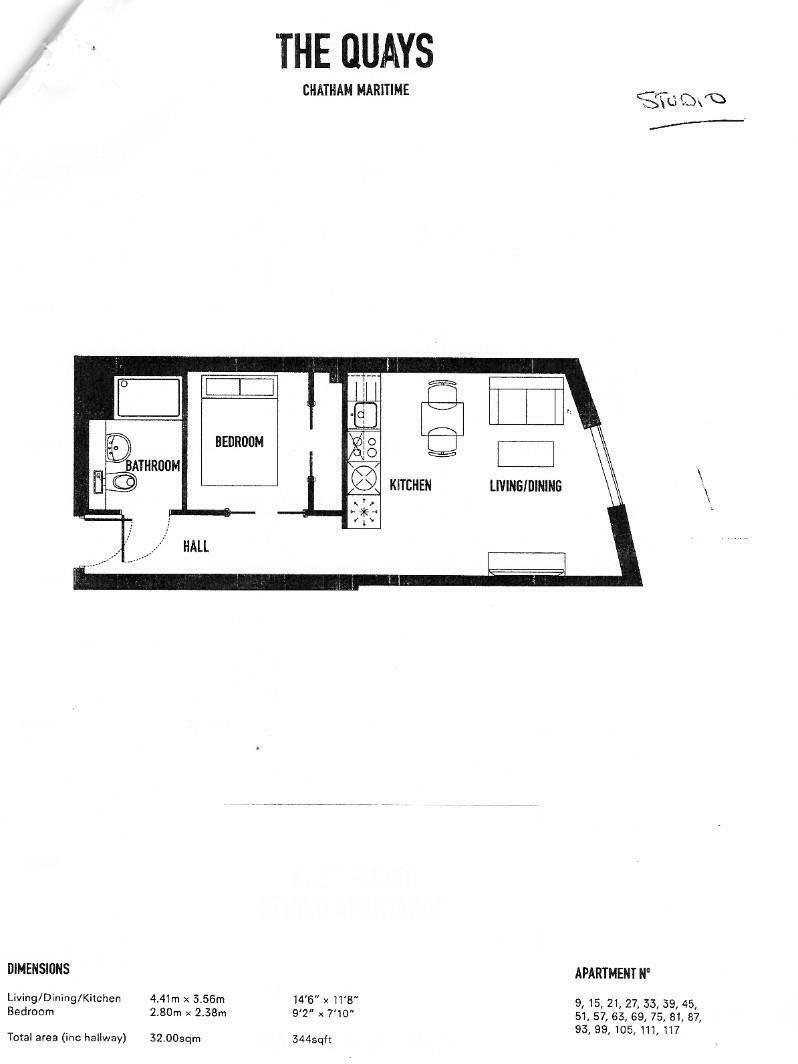
A ONE BEDROOM STUDIO APARTMENT AT MARINA POINT EAST, ON THE QUAYS, CHATHAM MARITIME. OVERLOOKING THE MARINA, 344 SQ.FT LIVING SPACE.
Property Oracle says ..
The property is a one-bedroom apartment located in Chatham Quays, Medway. The apartment is modern and well-maintained, as seen in the provided images. It benefits from a waterfront location with views of the marina. The apartment is relatively small at 344.45 sqft, which is considerably smaller than the average size for properties in the area (882 sqft). Transport links appear good with several train stations within a reasonable distance. There is a primary school nearby. However, the lack of outdoor space is a significant drawback. The list price is significantly below the average price for the area, but this is likely due to the smaller size and lack of land.
Therefore, we give this property 6 / 10. *Disclaimer: This is our option and does constitute a recommendation or financial advice. Do your own research. *
- Price
- 7
- Condition
- 9
- Location
- 8
- Land
- 1
- Bedrooms
- 1
- Bathrooms
- 1
- Sqft (est)
- 344.45
The heatmap indicates the level of crime in the area. The color of the heatmap indicates the crime severity and recency.
Metrics Year-on-Year
- Average area value
- 348,276.00 £Increased by 7.74 %
- Est sale value
- 121,590.85 £Unchanged by 0.00 %
- Average area rental value
- 1,393.00 £/moDecreased by 3.26 %
- Est letting value
- 344.45 £/moUnchanged by 0.00 %
- Est rental Yield
- 4.80 %Decreased by 10.28 %
- Crime Rate
- 19.00 %Unchanged by 0.00 %
Agent Activity
Island Homes created the listing.
Nearby Schools
| Name | Type | Ofsted | Distance |
|---|---|---|---|
| St Mary'S Island Church Of England (Aided) Primary School | Voluntary Aided School | Good | 0.83 KM |
| Forward2 Employment Limited | Special Post 16 Institution | 0.94 KM | |
| Midkent College | Further Education | Good | 1.36 KM |
| Waterfront Utc | University Technical College | 1.71 KM | |
| Brompton Children'S Centre | Children's Centre | 1.72 KM |
Images
Nearby Streets
| Name | Average Price | Average Sqft | Distance |
|---|---|---|---|
| Vanguard Way | £ 400,000 | 0 | 0.00 KM |
| Maritime Way | £ 0 | 0 | 0.00 KM |
| Ripple Waters | £ 0 | 0 | 0.00 KM |
| Quayside | £ 0 | 0 | 0.00 KM |
| Augustus Way | £ 359,373 | 0 | 0.00 KM |
Nearby Transport
| Name | NLC | TLC | Distance |
|---|---|---|---|
| Gillingham (Kent) | 5169 | GLM | 2.46 KM |
| Chatham | 5199 | CTM | 2.74 KM |
| Rochester | 5203 | RTR | 3.14 KM |
| Strood (Kent) | 5191 | SOO | 3.74 KM |
| Higham | 5202 | HGM | 7.94 KM |
Nearby Listings
| Address | Price | Type | Score | Distance |
|---|---|---|---|---|
| Chatham Quays | £ 149,995 | BUY | 6 / 10 | 0.00 KM |
| The Quays, Chatham Maritime | £ 225,000 | BUY | 5 / 10 | 0.00 KM |
| Dock Head Road, Chatham | £ 200,000 | BUY | 6 / 10 | 0.00 KM |
| The Wharf, Chatham Maritime | £ 164,995 | BUY | Unknown | 0.00 KM |
| Dock Head Road, Chatham | £ 208,000 | BUY | 6 / 10 | 0.00 KM |
Nearby Properties
| Address | Price | Distance |
|---|---|---|
| 32 Redshank Road | £ 180,000 | 0.45 KM |
| 57 Redshank Road | £ 485,000 | 0.45 KM |
| 59 Redshank Road | £ 340,000 | 0.45 KM |
| 40 Redshank Road | £ 267,000 | 0.45 KM |
| 69 Redshank Road | £ 570,000 | 0.45 KM |