Lovelle says ..
Welcome to an exclusive residential development in the heart of Cleethorpes, brought to you by esteemed local builders, Eastbay Construction Ltd. Located just off Seaview Street, this collection of two and three-bedroom new build homes promises unparalleled quality and energy efficiency. ...
Property Oracle says ..
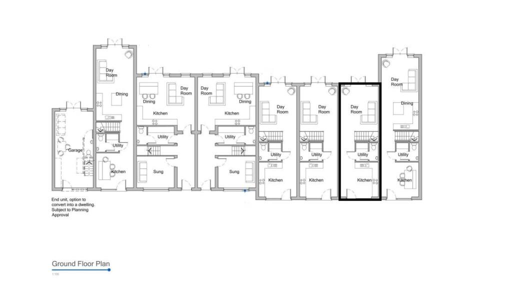
This property, located at Stable Mews in Cleethorpes, is part of a new build development. It’s a terraced house offering two bedrooms and two bathrooms. The marketing material emphasizes the high-quality build and energy efficiency. Images show a modern, well-appointed interior, with contemporary kitchen and bathroom fixtures. However, a key limitation is the absence of a garden or any significant outdoor space. The property’s proximity to schools and transport links in Cleethorpes enhances its appeal. While the price is consistent with other comparable properties in the development, the absence of detailed information regarding square footage for the near-by listings makes accurate comparative analysis challenging. The lack of a garden is a substantial point to consider, likely reducing the appeal to families and those who value outdoor space. The overall assessment suggests a modern, well-built property in a convenient location but with a notable drawback in terms of land availability. Further details on the property’s square footage would provide a clearer picture of its value proposition.
Therefore, we give this property 5 / 10. *Disclaimer: This is our option and does constitute a recommendation or financial advice. Do your own research. *
- Price
- 7
- Condition
- 8
- Location
- 7
- Land
- 1
- Bedrooms
- 2
- Bathrooms
- 2
- Sqft (est)
- 700.00
The heatmap indicates the level of crime in the area. The color of the heatmap indicates the crime severity and recency.
Metrics Year-on-Year
- Average area value
- 169,150.00 £Decreased by 1.10 %
- Est sale value
- 148,400.00 £Increased by 23.26 %
- Average area rental value
- 855.00 £/moIncreased by 9.62 %
- Est letting value
- 700.00 £/mo
- Est rental Yield
- 6.07 %Increased by 10.97 %
- Crime Rate
- 21.00 %Unchanged by 0.00 %
Agent Activity
Lovelle created the listing.
Nearby Schools
| Name | Type | Ofsted | Distance |
|---|---|---|---|
| St Peter'S Cofe Primary School | Academy Converter | Good | 0.29 KM |
| Thrunscoe Primary And Nursery Academy | Academy Converter | Good | 0.46 KM |
| Highgate Outreach (Thrunscoe) | Children's Centre Linked Site | 0.92 KM | |
| Signhills Infant Academy | Academy Converter | Good | 1.10 KM |
| Signhills Academy | Academy Converter | 1.10 KM |
Images
Nearby Streets
| Name | Average Price | Average Sqft | Distance |
|---|---|---|---|
| Towle Court | £ 180,000 | 0 | 0.00 KM |
| Market Street | £ 0 | 0 | 0.00 KM |
| Newbold Court | £ 227,333 | 0 | 0.00 KM |
| High Street | £ 0 | 0 | 0.00 KM |
| Isaac's Hill | £ 249,950 | 0 | 0.00 KM |
Nearby Transport
| Name | NLC | TLC | Distance |
|---|---|---|---|
| Cleethorpes | 6274 | CLE | 0.61 KM |
| New Clee | 6289 | NCE | 4.16 KM |
| Grimsby Docks | 6276 | GMD | 5.66 KM |
| Grimsby Town | 6280 | GMB | 6.60 KM |
Nearby Listings
| Address | Price | Type | Score | Distance |
|---|---|---|---|---|
| Stable Mews, Cleethorpes, DN35 | £ 195,000 | BUY | 6 / 10 | 0.00 KM |
| Stable Mews, Cleethorpes, DN35 | £ 239,950 | BUY | 7 / 10 | 0.00 KM |
| Stable Mews, Cleethorpes, DN35 | £ 249,950 | BUY | 5 / 10 | 0.00 KM |
| Stable Mews, Cleethorpes, DN35 | £ 259,950 | BUY | 6 / 10 | 0.00 KM |
| Stable Mews, Cleethorpes, DN35 | £ 239,950 | BUY | 6 / 10 | 0.00 KM |
Nearby Properties
| Address | Price | Distance |
|---|---|---|
| 68 Sea View Street | £ 115,000 | 0.00 KM |
| 66 Sea View Street | £ 85,000 | 0.00 KM |
| 93 Sea View Street | £ 99,000 | 0.00 KM |
| 46 Sea View Street | £ 178,750 | 0.00 KM |
| 76 Sea View Street | £ 110,000 | 0.00 KM |