Northolt Road, Harrow, HA2
By Christopher Edwards
£ 250,000
Reviews
3 out of 5 stars
Christopher Edwards says ..
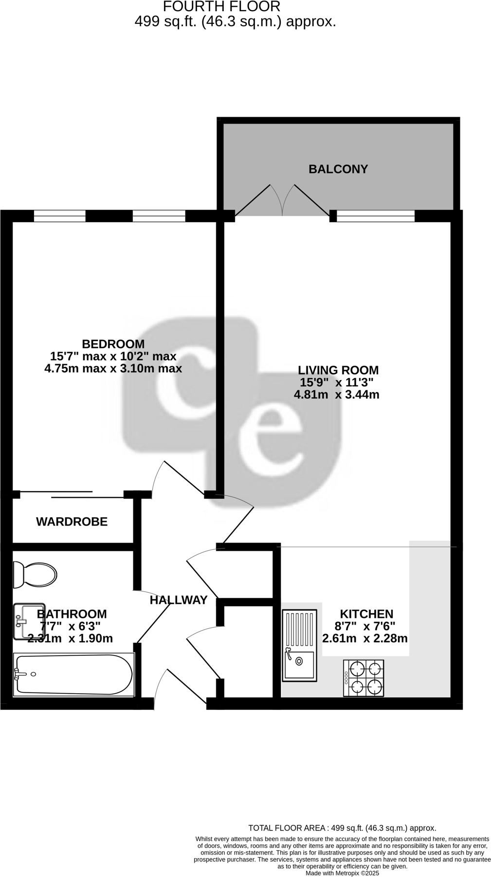
** NO ONWARD CHAIN DELAYS ** A spacious and well maintained one double bedroom, fourth floor apartment conveniently located for South Harrow Piccadilly Line station and Harrow on the Hill Metropolitan/Mainline station. Further benefits include light filled modern open plan fitted kitchen/livin...
Property Oracle says ..
This is a one-bedroom flat located on Northolt Road in Harrow On The Hill. The property is in good condition and features a modern kitchen and bathroom. It has a balcony, providing some outdoor space. The flat is situated in a convenient location, with easy access to local amenities, schools, and transportation links. The asking price of £250,000 appears reasonable when compared to the average property price in the area.
Therefore, we give this property 6 / 10. *Disclaimer: This is our option and does constitute a recommendation or financial advice. Do your own research. *
- Price
- 8
- Condition
- 7
- Location
- 7
- Land
- 3
- Bedrooms
- 1
- Bathrooms
- 1
- Sqft (est)
- 498.37
The heatmap indicates the level of crime in the area. The color of the heatmap indicates the crime severity and recency.
Metrics Year-on-Year
- Average area value
- 619,994.00 £Increased by 17.76 %
- Est sale value
- 317,461.69 £Increased by 20.42 %
- Average area rental value
- 2,235.00 £/moIncreased by 14.67 %
- Est letting value
- 996.74 £/moIncreased by 100.00 %
- Est rental Yield
- 4.33 %Decreased by 2.48 %
- Crime Rate
- 15.00 %Unchanged by 0.00 %
Agent Activity
Christopher Edwards created the listing.
Nearby Schools
| Name | Type | Ofsted | Distance |
|---|---|---|---|
| Hillview Nursery School | Local Authority Nursery School | Good | 0.16 KM |
| Hillview Children'S Centre | Children's Centre | 0.31 KM | |
| Roxeth Mead School | Other Independent School | Good | 0.56 KM |
| Roxeth Primary School | Community School | Good | 0.69 KM |
| Whitmore High School | Community School | Outstanding | 0.73 KM |
Images
Nearby Streets
| Name | Average Price | Average Sqft | Distance |
|---|---|---|---|
| Grange Farm Close | £ 82,500 | 0 | 0.00 KM |
| Wesley Close | £ 0 | 0 | 0.00 KM |
| Sackville Close | £ 0 | 0 | 0.00 KM |
| Rooks Corner | £ 0 | 0 | 0.00 KM |
| The Arches | £ 400,000 | 0 | 0.00 KM |
Nearby Transport
| Name | NLC | TLC | Distance |
|---|---|---|---|
| Northolt Park | 1478 | NLT | 1.54 KM |
| Sudbury Hill Harrow | 1484 | SDH | 1.85 KM |
| Harrow-On-The-Hill | 598 | HOH | 1.90 KM |
| Greenford | 3136 | GFD | 2.84 KM |
| Harrow And Wealdstone | 1397 | HRW | 3.22 KM |
Nearby Listings
| Address | Price | Type | Score | Distance |
|---|---|---|---|---|
| Northolt Road, Harrow, HA2 | £ 250,000 | BUY | 6 / 10 | 0.00 KM |
| Northolt Road, Harrow, HA2 | £ 350,000 | BUY | 6 / 10 | 0.01 KM |
| Northolt Road, South Harrow, Harrow, HA2 | £ 350,000 | BUY | 6 / 10 | 0.02 KM |
| East Croft House, 86 Northolt Road, Harrow, HA2 | £ 210,000 | BUY | Unknown | 0.02 KM |
| 86 Northolt Road, Harrow, HA2 | £ 255,000 | BUY | 5 / 10 | 0.02 KM |
Nearby Properties
| Address | Price | Distance |
|---|---|---|
| 93 Northolt Road | £ 98,500 | 0.11 KM |
| 89 Northolt Road | £ 266,351 | 0.11 KM |
| 103 Northolt Road | £ 275,000 | 0.11 KM |
| 105 Northolt Road | £ 278,000 | 0.11 KM |
| 113 Northolt Road | £ 160,000 | 0.11 KM |