Abbotts says ..
Discover Your Dream Home at Beechwood, Basildon Welcome to The Avenue, an exquisite three-bedroom family home nestled in the heart of Basildon, Essex by Beech Grove Homes. The Avenue beautifully balances style and functionality to cater to your family’s lifestyle. The spacious op...
Property Oracle says ..
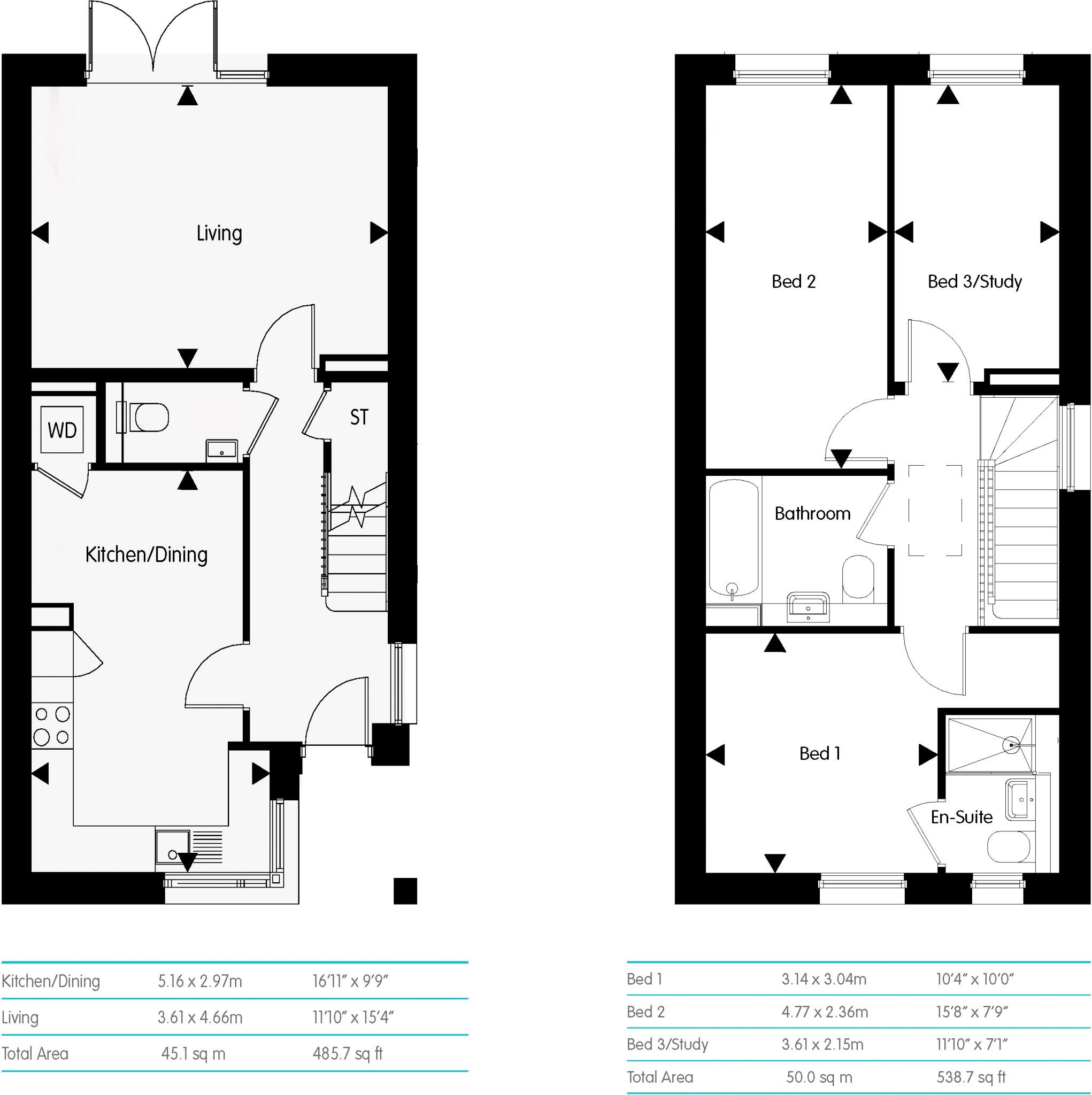
The property is a 3-bedroom, 2-bathroom house located in Beechwood, Basildon, Essex, with a list price of £455,000. The property is new construction and appears to be in excellent condition based on the provided images. The finishes are modern and high-quality. The kitchen and bathrooms are well-appointed, and the living spaces are bright and spacious. The property includes a small, enclosed rear garden. The location in Beechwood, Basildon, is reasonably convenient. Nearby transportation options include Basildon train station (3.14 KM) providing access to London and other parts of Essex. Several schools are within a short distance, including Whitmore Primary School and The Basildon Lower Academy, both rated ‘Good’ by Ofsted. The proximity to these amenities makes the location suitable for families. Considering the average price of £345,573 and average price per sqft of £385.00 in the area, the list price of £455,000 for this 538.20 sqft property seems high. While the property is new and in excellent condition, the lack of significant plot size and the relatively small size of the property compared to the area average (538.20 sqft vs 896 sqft) do not justify the premium price. Nearby comparable properties, although limited in information, suggest a lower price range. The higher price point may reflect the new build status and modern features, but it’s important to note that the price per sqft is considerably higher than the area average.
Therefore, we give this property 6 / 10. *Disclaimer: This is our option and does constitute a recommendation or financial advice. Do your own research. *
- Price
- 6
- Condition
- 9
- Location
- 7
- Land
- 3
- Bedrooms
- 3
- Bathrooms
- 2
- Sqft (est)
- 538.20
The heatmap indicates the level of crime in the area. The color of the heatmap indicates the crime severity and recency.
Metrics Year-on-Year
- Average area value
- 297,000.00 £Decreased by 4.36 %
- Est sale value
- 191,599.20 £Increased by 1.14 %
- Average area rental value
- 1,733.00 £/moIncreased by 11.66 %
- Est letting value
- 1,076.40 £/moIncreased by 100.00 %
- Est rental Yield
- 7.00 %Increased by 16.67 %
- Crime Rate
- 6.00 %Unchanged by 0.00 %
Agent Activity
Abbotts created the listing.
Nearby Schools
| Name | Type | Ofsted | Distance |
|---|---|---|---|
| Bas7/A Fryerns Farm Family Hub Delivery Site | Children's Centre Linked Site | 0.31 KM | |
| Whitmore Primary School And Nursery | Academy Sponsor Led | Good | 0.49 KM |
| The Basildon Lower Academy | Academy Sponsor Led | Good | 0.88 KM |
| Greensted Infant School And Nursery | Academy Converter | 1.12 KM | |
| The Pioneer School | Academy Special Converter | Outstanding | 1.14 KM |
Images
Nearby Streets
| Name | Average Price | Average Sqft | Distance |
|---|---|---|---|
| Darwin Court | £ 0 | 0 | 0.00 KM |
| Barrington Close | £ 0 | 0 | 0.00 KM |
| Havalon Close | £ 230,000 | 0 | 0.00 KM |
| Stradbroke Road | £ 395,000 | 0 | 0.00 KM |
| Napier Close | £ 0 | 0 | 0.00 KM |
Nearby Transport
| Name | NLC | TLC | Distance |
|---|---|---|---|
| Basildon | 7494 | BSO | 3.14 KM |
| Pitsea | 7452 | PSE | 3.22 KM |
| Wickford | 6891 | WIC | 5.71 KM |
| Laindon | 7445 | LAI | 6.64 KM |
| Billericay | 6871 | BIC | 9.12 KM |
Nearby Listings
| Address | Price | Type | Score | Distance |
|---|---|---|---|---|
| Beechwood, Basildon, Essex, SS14 | £ 455,000 | BUY | 7 / 10 | 0.00 KM |
| Beeleigh East, Basildon | £ 450,000 | BUY | 7 / 10 | 0.00 KM |
| Beechwood, Basildon, Essex, SS14 | £ 490,000 | BUY | 6 / 10 | 0.00 KM |
| Beechwood, Basildon, Essex, SS14 | £ 515,000 | BUY | 7 / 10 | 0.00 KM |
| Beechwood, Basildon, Essex, SS14 | £ 445,000 | BUY | 7 / 10 | 0.00 KM |
Nearby Properties
| Address | Price | Distance |
|---|---|---|
| 31 Beeleigh East | £ 262,000 | 0.00 KM |
| 50 Beeleigh East | £ 237,000 | 0.00 KM |
| 46 Beeleigh East | £ 267,500 | 0.00 KM |
| 44 Beeleigh East | £ 147,000 | 0.00 KM |
| 15 Beeleigh East | £ 150,000 | 0.00 KM |