Chancellors says ..
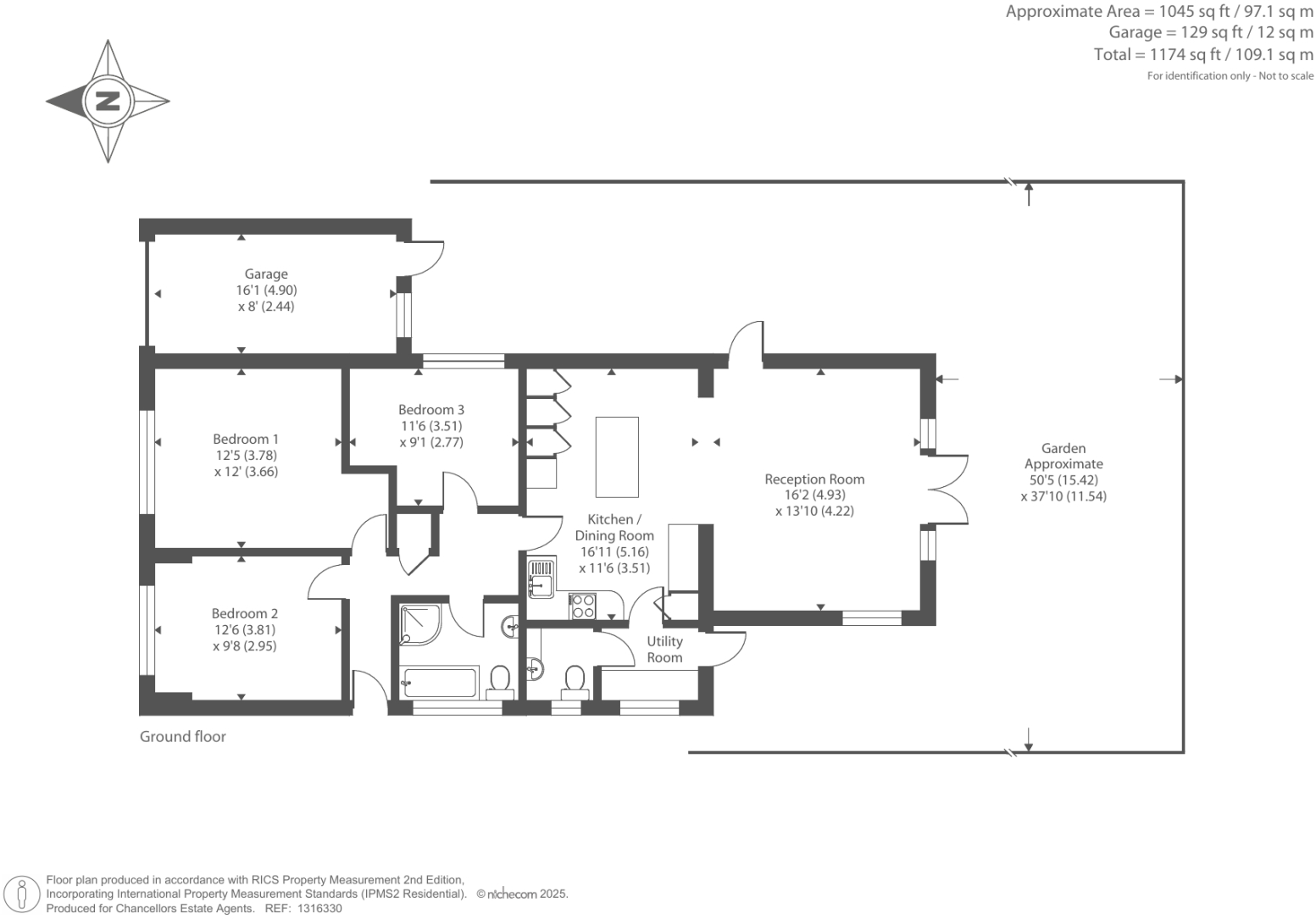
Light and airy extended link-detached bungalow, single attached garage, and off-street parking for several vehicles. The main entrance situated on the side of the property, opens into the hallway with loft access and a useful storage cupboard.
Property Oracle says ..
Therefore, we give this property 6 / 10. *Disclaimer: This is our option and does constitute a recommendation or financial advice. Do your own research. *
- Price
- 5
- Condition
- 8
- Location
- 7
- Land
- 7
- Bedrooms
- 3
- Bathrooms
- 1
- Sqft (est)
- 1,174.00
- Lot (est)
- 1,899.58
The heatmap indicates the level of crime in the area. The color of the heatmap indicates the crime severity and recency.
Metrics Year-on-Year
- Average area value
- 260,500.00 £Increased by 6.21 %
- Est sale value
- 300,544.00 £Increased by 6.22 %
- Average area rental value
- 1,100.00 £/moIncreased by 0.92 %
- Est letting value
- 1,174.00 £/moUnchanged by 0.00 %
- Est rental Yield
- 5.07 %Decreased by 4.88 %
- Crime Rate
- 13.00 %Unchanged by 0.00 %
from 245,272.00 £
from 282,934.00 £
from 1,090.00 £/mo
from 1,174.00 £/mo
from 5.33 %
from 13.00 %
Agent Activity
Chancellors created the listing.
Nearby Schools
| Name | Type | Ofsted | Distance |
|---|---|---|---|
| John Blandy Primary School | Academy Converter | Good | 0.36 KM |
| Longworth Primary School | Voluntary Controlled School | Outstanding | 2.08 KM |
| Mulberry Bush School | Non-maintained Special School | Outstanding | 4.60 KM |
| Standlake Church Of England Primary School | Academy Converter | Good | 5.26 KM |
| St James Church Of England Primary School, Hanney | Academy Converter | Good | 5.55 KM |
Images
Nearby Streets
| Name | Average Price | Average Sqft | Distance |
|---|---|---|---|
| Fir Tree Close | £ 0 | 0 | 0.00 KM |
| Mallow Close | £ 0 | 0 | 0.00 KM |
| Poppy Close | £ 420,000 | 0 | 0.00 KM |
| Wood Lane | £ 743,750 | 0 | 0.00 KM |
| Yew Tree Court | £ 0 | 0 | 0.00 KM |
Nearby Listings
| Address | Price | Type | Score | Distance |
|---|---|---|---|---|
| Abingdon, Southmoor, OX13 | £ 450,000 | BUY | 6 / 10 | 0.00 KM |
| Acacia Gardens, Southmoor, Abingdon | £ 350,000 | BUY | Unknown | 0.10 KM |
| Greenheart Way, Abingdon | £ 400,000 | BUY | 5 / 10 | 0.10 KM |
| Laurel Drive, Southmoor, Abingdon, Oxfordshire, OX13 | £ 375,000 | BUY | Unknown | 0.10 KM |
| Greenheart Way, Southmoor, OX13 | £ 410,000 | BUY | 6 / 10 | 0.13 KM |
Nearby Properties
| Address | Price | Distance |
|---|---|---|
| 4 Greenheart Way | £ 215,000 | 0.06 KM |
| 13 Greenheart Way | £ 265,000 | 0.06 KM |
| 29 Greenheart Way | £ 235,000 | 0.06 KM |
| 11 Greenheart Way | £ 370,000 | 0.06 KM |
| 27 Greenheart Way | £ 315,000 | 0.06 KM |