Windsor Place, Windsor Street, Chertsey
By Leaders Sales
£ 225,000
Reviews
3 out of 5 stars
Leaders Sales says ..
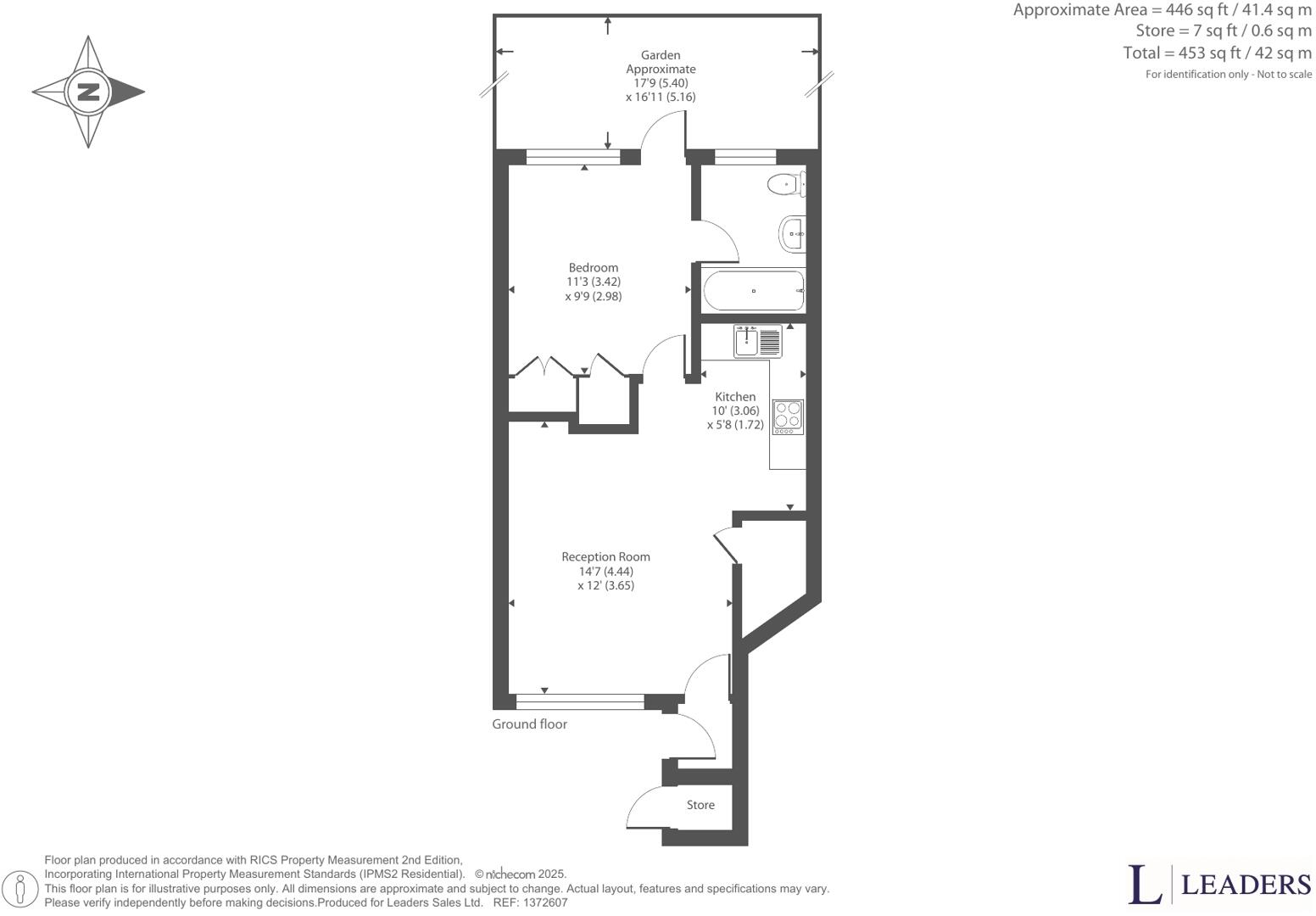
A one bedroom ground floor garden maisonette, situation overlooking a park to the front and close to Chertsey town centre. Recently redecorated and with new wood style flooring fitted, the accommodation comprises an entrnace lobby, openplan living/kitchen space, double bedroom and go...
Property Oracle says ..
This is a one-bedroom apartment in Chertsey, Surrey. The property is in reasonable condition and includes a garden. It benefits from being close to local amenities, including the train station and several schools. The asking price of £225,000 appears to be good value compared to the average price per square foot in the area. The property would suit a first-time buyer or investor looking for a rental property. The apartment is located on Windsor Street, which is close to local shops and restaurants. The property is also within easy reach of the M3 and M25 motorways, providing good transport links to London and the surrounding areas.
Therefore, we give this property 7 / 10. *Disclaimer: This is our option and does constitute a recommendation or financial advice. Do your own research. *
- Price
- 8
- Condition
- 7
- Location
- 7
- Land
- 6
- Bedrooms
- 1
- Bathrooms
- 1
- Sqft (est)
- 452.08
The heatmap indicates the level of crime in the area. The color of the heatmap indicates the crime severity and recency.
Metrics Year-on-Year
- Average area value
- 651,238.00 £Increased by 36.68 %
- Est sale value
- 463,382.00 £Increased by 103.78 %
- Average area rental value
- 2,117.00 £/moIncreased by 31.57 %
- Est letting value
- 1,356.24 £/moIncreased by 200.00 %
- Est rental Yield
- 3.90 %Decreased by 3.70 %
- Crime Rate
- 7.00 %Unchanged by 0.00 %
Agent Activity
Leaders Sales created the listing.
Nearby Schools
| Name | Type | Ofsted | Distance |
|---|---|---|---|
| St Anne'S Catholic Primary School | Academy Converter | Good | 0.90 KM |
| Chertsey Sure Start Children'S Centre | Children's Centre | 1.02 KM | |
| Sir William Perkins'S School | Other Independent School | 1.03 KM | |
| Stepgates Community School | Community School | Good | 1.08 KM |
| Chertsey Nursery School | Local Authority Nursery School | Good | 1.20 KM |
Images
Nearby Streets
| Name | Average Price | Average Sqft | Distance |
|---|---|---|---|
| Abbots Way | £ 305,500 | 0 | 0.00 KM |
| Cowley Lane | £ 0 | 0 | 0.00 KM |
| Staines Road | £ 381,667 | 0 | 0.00 KM |
| Vincent Road | £ 0 | 0 | 0.00 KM |
| Cartwright Drive | £ 450,000 | 0 | 0.00 KM |
Nearby Transport
| Name | NLC | TLC | Distance |
|---|---|---|---|
| Chertsey | 5553 | CHY | 0.87 KM |
| Addlestone | 5550 | ASN | 3.31 KM |
| Staines | 5670 | SNS | 4.29 KM |
| Byfleet And New Haw | 5689 | BFN | 5.61 KM |
| Egham | 5669 | EGH | 6.01 KM |
Nearby Listings
| Address | Price | Type | Score | Distance |
|---|---|---|---|---|
| Windsor Place, Windsor Street, Chertsey | £ 225,000 | BUY | 7 / 10 | 0.00 KM |
| Chertsey, Surrey, KT16 | £ 234,950 | BUY | 7 / 10 | 0.02 KM |
| Onslow Mews, Chertsey, KT16 | £ 250,000 | BUY | 6 / 10 | 0.05 KM |
| Windsor Street, Chertsey, Surrey, KT16 | £ 350,000 | BUY | 6 / 10 | 0.06 KM |
| Chertsey, Surrey, KT16 | £ 259,950 | BUY | 7 / 10 | 0.08 KM |
Nearby Properties
| Address | Price | Distance |
|---|---|---|
| 35 Windsor Street | £ 480,000 | 0.06 KM |
| 33a Windsor Street | £ 345,000 | 0.06 KM |
| 8 Alwyns Close | £ 194,950 | 0.08 KM |
| 7 Alwyns Close | £ 220,000 | 0.08 KM |
| 1 Alwyns Close | £ 6,000 | 0.08 KM |