119-121 Banks Road, West Kirby, Wirral, Merseyside CH48 0RB
AU

119-121 Banks Road, West Kirby, Wirral, Merseyside CH48 0RB

By Auction House

£ 900,000

Reviews

3 out of 5 stars

Auction House says ..

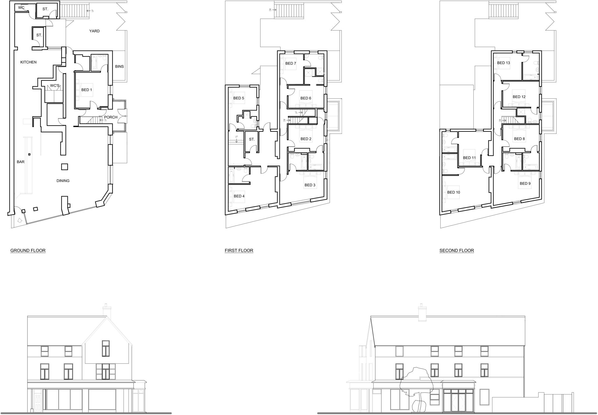
HOTEL CONVERSION PROJECT WITH FULL PLANNING FOR AUCTION DAT TBC

Property Oracle says ..

This is a substantial property located in a sought-after area of West Kirby. Currently configured as a block of apartments, it offers significant potential for various uses, including continued use as apartments, a hotel, or a restaurant. The property benefits from its proximity to local amenities, transportation links, and reputable schools. While the property appears to be in reasonable condition, some modernisation could enhance its value. The inclusion of a garden area is a positive feature, adding to the property’s appeal. The price seems fair given the location and size, but potential renovation costs should be considered.

Therefore, we give this property 6 / 10. *Disclaimer: This is our option and does constitute a recommendation or financial advice. Do your own research. *

Price
6
Condition
7
Location
8
Land
5
Bedrooms
13
Bathrooms
13
Sqft (est)
2,520.00

The heatmap indicates the level of crime in the area. The color of the heatmap indicates the crime severity and recency.

Metrics Year-on-Year

Average area value
469,059.00 £
Decreased by 9.83 %
from 520,171.00 £
Est sale value
1,013,040.00 £
Increased by 6.91 %
from 947,520.00 £
Average area rental value
1,813.00 £/mo
Increased by 59.88 %
from 1,134.00 £/mo
Est letting value
2,520.00 £/mo
from 0.00 £/mo
Est rental Yield
4.64 %
Increased by 77.10 %
from 2.62 %
Crime Rate
19.00 %
Unchanged by 0.00 %
from 19.00 %

Agent Activity

  • Auction House created the listing.

Nearby Schools

NameTypeOfstedDistance
West Kirby St Bridget'S Cofe Primary SchoolVoluntary Controlled SchoolOutstanding0.61 KM
West Kirby Residential SchoolNon-maintained Special SchoolOutstanding0.96 KM
Avalon SchoolOther Independent School1.09 KM
West Kirby Primary SchoolCommunity SchoolGood1.13 KM
West Kirby Grammar SchoolAcademy Converter1.20 KM

Images

Front View - Banks Road T202505071245.jpg Satellite View To Hilbre Island T202505071247.jpg Satellite View T202505071248.jpg Os Map T202505071245.jpg 3d Model T202505071239.jpg 3d Model - Back T202505071239.jpg External Image 1 T202505071239.jpg External Image T202505071244.jpg Isometric T202505071244.jpg Front View - Render T202505071246.jpg Restaurant View 1 T202505071246.jpg Satellite View - Green T202505071248.jpg Satellite View - Back T202505071247.jpg West Kirby Marina T202505071248.jpg Satellite View To Coronation Gardens T202505071247.jpg Restaurant View 3 T202505071247.jpg Site Area T202505071247.jpg

Nearby Streets

NameAverage PriceAverage SqftDistance
Grosvenor Avenue £ 000.00 KM
Nettle Hill £ 200,00000.00 KM
Ashburton Road £ 485,00000.00 KM
Anglesey Road £ 425,00000.00 KM
Belmont Road £ 000.00 KM

Nearby Transport

NameNLCTLCDistance
West Kirby2201WKI0.64 KM
Hoylake2194HYK2.55 KM
Manor Road2253MNR3.26 KM
Meols2254MEO4.71 KM
Moreton (Merseyside)2151MRT8.80 KM

Nearby Listings

AddressPriceTypeScoreDistance
119-121 Banks Road, West Kirby, Wirral, Merseyside CH48 0RB £ 900,000BUY6 / 100.00 KM
119-121 Banks Road, West Kirby, Wirral, Merseyside CH48 0RB £ 880,000BUY6 / 100.00 KM
Eaton Road, West Kirby, CH48 £ 435,000BUY8 / 100.04 KM
South Road, West Kirby, CH48 £ 230,000BUY7 / 100.04 KM
Banks Road, West Kirby, Wirral, Merseyside, CH48 £ 189,950BUY6 / 100.06 KM

Nearby Properties

AddressPriceDistance
103a Banks Road £ 124,0000.05 KM
166a Banks Road £ 190,0000.06 KM
176a Banks Road £ 150,0000.06 KM
176b Banks Road £ 317,0000.06 KM
174a Banks Road £ 191,0000.06 KM