Keel Close, Carlton Colville, Lowestoft, Suffolk, NR33
By Winkworth
£ 205,000
Reviews
3 out of 5 stars
Winkworth says ..
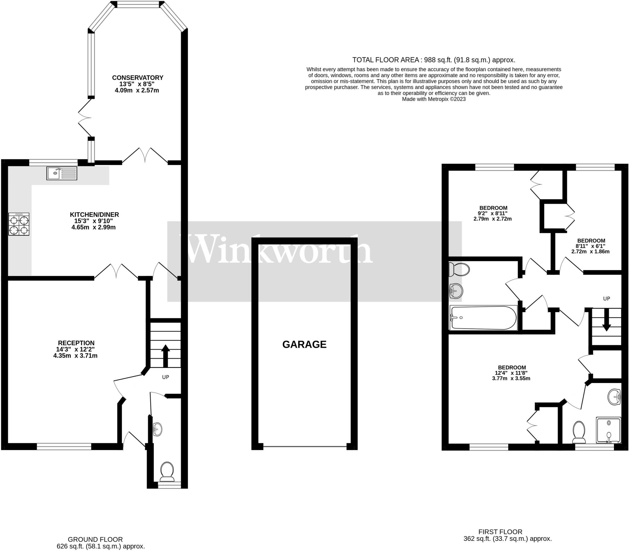
This pretty, semi-detached house is a great buy for young families. Entered via a hallway with a ground floor cloakroom adjacent, the main reception room is light and inviting. Measuring fourteen feet in length, there is plenty of space for entertaining and double doors open into the ...
Property Oracle says ..
This three-bedroom, three-bathroom semi-detached house in Carlton Colville, Lowestoft, is presented by Winkworth. The property boasts a functional layout encompassing a living room, kitchen, dining area, and conservatory. The interior demonstrates a need for some minor modernisation, particularly in the kitchen and bathrooms. The condition is described as ‘good’ but not ‘excellent’. The property features a garden of decent size, a positive aspect for families. Location-wise, it’s situated in a residential area with reasonably close access to primary schools, however, secondary schooling options may be less desirable due to the Ofsted rating of The Everitt Academy. The nearest train stations require a short commute, providing access to broader transport links. The list price is competitive for the area based on comparable nearby properties. Overall, it presents a solid family home option in a convenient location but may require future refurbishment to enhance its value and appeal.
Therefore, we give this property 6 / 10. *Disclaimer: This is our option and does constitute a recommendation or financial advice. Do your own research. *
- Price
- 7
- Condition
- 6
- Location
- 6
- Land
- 7
- Bedrooms
- 3
- Bathrooms
- 3
- Sqft (est)
- 988.00
The heatmap indicates the level of crime in the area. The color of the heatmap indicates the crime severity and recency.
Metrics Year-on-Year
- Average area value
- 327,778.00 £Increased by 12.72 %
- Est sale value
- 282,568.00 £Increased by 15.79 %
- Average area rental value
- 848.00 £/moDecreased by 21.92 %
- Est letting value
- 0.00 £/mo
- Est rental Yield
- 3.10 %Decreased by 30.80 %
- Crime Rate
- 4.00 %Unchanged by 0.00 %
Agent Activity
Winkworth marked this listing as sold.
Winkworth created the listing.
Nearby Schools
| Name | Type | Ofsted | Distance |
|---|---|---|---|
| The Everitt Academy | Free Schools Special | Serious Weaknesses | 0.80 KM |
| Grove Primary School | Academy Sponsor Led | Requires improvement | 1.25 KM |
| Uplands Children'S Centre | Children's Centre | 1.52 KM | |
| Warren School | Academy Special Sponsor Led | 1.56 KM | |
| Carlton Colville Primary School | Community School | Outstanding | 1.58 KM |
Images
Nearby Streets
| Name | Average Price | Average Sqft | Distance |
|---|---|---|---|
| Marsh Lane | £ 0 | 0 | 0.00 KM |
| Rope Walk | £ 0 | 0 | 0.00 KM |
| Hall Road | £ 0 | 0 | 0.00 KM |
| Hollow Grove Way | £ 282,500 | 0 | 0.00 KM |
| Woodside Close | £ 0 | 0 | 0.00 KM |
Nearby Transport
| Name | NLC | TLC | Distance |
|---|---|---|---|
| Oulton Broad South | 7274 | OUS | 2.71 KM |
| Oulton Broad North | 7273 | OUN | 3.97 KM |
| Lowestoft | 7268 | LWT | 7.17 KM |
| Somerleyton | 7320 | SYT | 7.25 KM |
Nearby Listings
| Address | Price | Type | Score | Distance |
|---|---|---|---|---|
| Keel Close, Carlton Colville, Lowestoft, Suffolk, NR33 | £ 205,000 | BUY | 6 / 10 | 0.00 KM |
| Keel Close, Carlton Colville, NR33 | £ 250,000 | BUY | Unknown | 0.03 KM |
| Keel Close, Carlton Colville, NR33 | £ 270,000 | BUY | Unknown | 0.03 KM |
| Chapel Road, Lowestoft | £ 220,000 | BUY | 6 / 10 | 0.08 KM |
| Manor Rise, Chapel Road, Lowestoft | £ 220,000 | BUY | Unknown | 0.09 KM |
Nearby Properties
| Address | Price | Distance |
|---|---|---|
| 7 Keel Close | £ 219,000 | 0.12 KM |
| 2 Keel Close | £ 131,000 | 0.12 KM |
| 49 Keel Close | £ 143,500 | 0.12 KM |
| 24 Keel Close | £ 244,000 | 0.12 KM |
| 53 Keel Close | £ 215,000 | 0.12 KM |