Staines-upon-Thames, Surrey, TW18
By Chancellors
£ 850,000
Reviews
3 out of 5 stars
Chancellors says ..
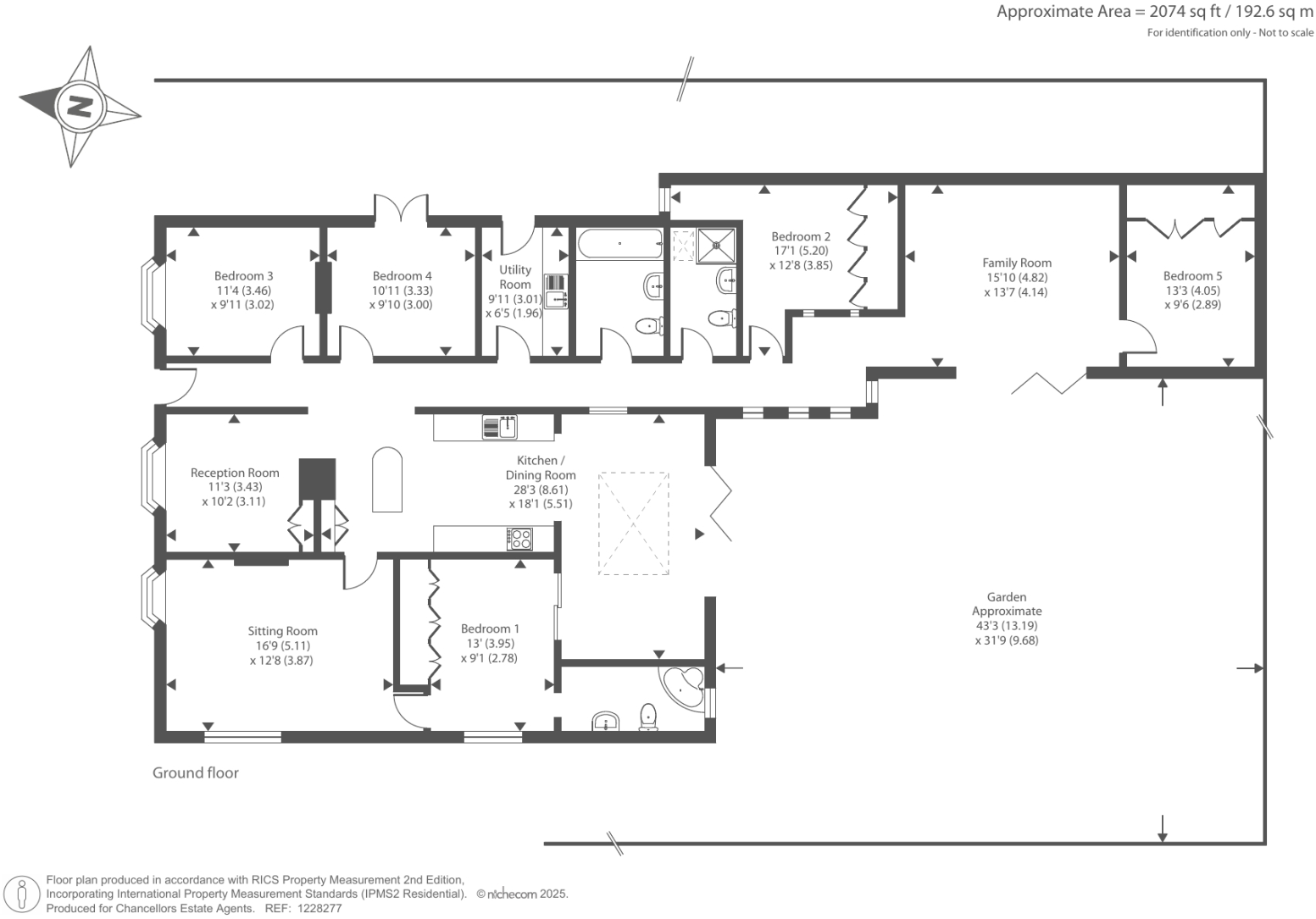
With extension potential (STPP) this very high standard, character five double bedroom detached bungalow comes fitted with a bespoke kitchen.
Property Oracle says ..
This five-bedroom property in Thorpe, Staines-upon-Thames, presents itself as a well-maintained and potentially attractive family home. The photographs showcase a modern interior with recent renovations including a stylish kitchen and bathrooms. The extensive use of light colors creates an airy and spacious atmosphere. The property’s exterior also looks well-kept, featuring a sizable garden and ample off-street parking. The area offers convenient access to several train stations and well-regarded primary and secondary schools, making it a potentially desirable location. However, a crucial piece of information missing is the total square footage, making it challenging to determine the price per square foot and assess its relative value against comparable properties in the area. The absence of bathroom details in the property information is also notable. Overall, based on the available information, the property shows considerable appeal, subject to further due diligence on the precise size and verification of the reported condition through a physical survey.
Therefore, we give this property 7 / 10. *Disclaimer: This is our option and does constitute a recommendation or financial advice. Do your own research. *
- Price
- 7
- Condition
- 9
- Location
- 7
- Land
- 7
- Bedrooms
- 5
- Bathrooms
- 0
The heatmap indicates the level of crime in the area. The color of the heatmap indicates the crime severity and recency.
Metrics Year-on-Year
- Average area value
- 518,161.00 £Decreased by 11.11 %
- Average area rental value
- 1,618.00 £/moDecreased by 8.54 %
- Est rental Yield
- 3.75 %Increased by 3.02 %
- Crime Rate
- 4.00 %Unchanged by 0.00 %
Agent Activity
Chancellors created the listing.
Nearby Schools
| Name | Type | Ofsted | Distance |
|---|---|---|---|
| Thorpe Lea Primary School | Community School | Good | 1.29 KM |
| The Magna Carta School | Academy Converter | Good | 1.35 KM |
| T A S I S | Other Independent School | 1.53 KM | |
| The Haven Sure Start Children'S Centre | Children's Centre | 1.55 KM | |
| Hythe Primary School | Community School | Good | 1.56 KM |
Images
Nearby Streets
| Name | Average Price | Average Sqft | Distance |
|---|---|---|---|
| Knights Close | £ 0 | 0 | 0.00 KM |
| St Peter's Close | £ 700,000 | 0 | 0.00 KM |
| Thames Side | £ 0 | 0 | 0.00 KM |
| Park Avenue | £ 0 | 0 | 0.00 KM |
| Rochester Road | £ 225,000 | 0 | 0.00 KM |
Nearby Transport
| Name | NLC | TLC | Distance |
|---|---|---|---|
| Staines | 5670 | SNS | 2.23 KM |
| Chertsey | 5553 | CHY | 3.41 KM |
| Egham | 5669 | EGH | 3.66 KM |
| Wraysbury | 5673 | WRY | 5.36 KM |
| Virginia Water | 5676 | VIR | 5.38 KM |
Nearby Listings
| Address | Price | Type | Score | Distance |
|---|---|---|---|---|
| Staines-upon-Thames, Surrey, TW18 | £ 850,000 | BUY | 7 / 10 | 0.00 KM |
| Aymer Drive, STAINES-UPON-THAMES, TW18 | £ 395,000 | BUY | 7 / 10 | 0.06 KM |
| Peket Close, Staines-upon-Thames, Surrey, TW18 | £ 385,000 | BUY | 7 / 10 | 0.11 KM |
| Aymer Drive, Staines-upon-Thames, Surrey, TW18 | £ 625,000 | BUY | 7 / 10 | 0.12 KM |
| Peket Close, Staines-upon-Thames, Surrey, TW18 | £ 375,000 | BUY | 6 / 10 | 0.12 KM |
Nearby Properties
| Address | Price | Distance |
|---|---|---|
| 34 Aymer Drive | £ 290,000 | 0.06 KM |
| 16 Aymer Drive | £ 449,500 | 0.06 KM |
| 26 Aymer Drive | £ 475,000 | 0.06 KM |
| 32 Aymer Drive | £ 107,500 | 0.06 KM |
| 10 Aymer Drive | £ 315,000 | 0.06 KM |