Ocean Quest, Douglas Avenue, Exmouth
By Hall & Scott
£ 950,000
Reviews
3 out of 5 stars
Hall & Scott says ..
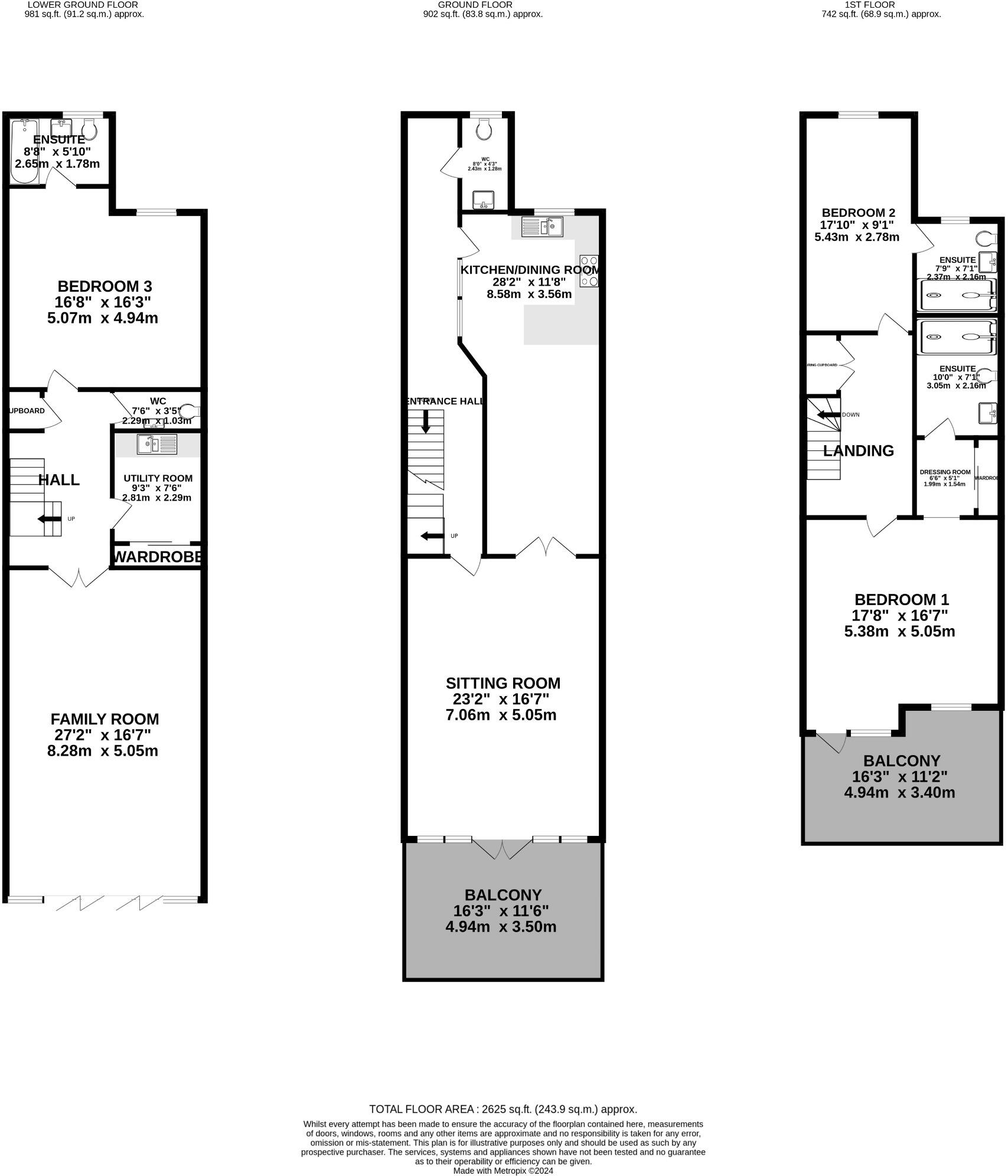
Truly exceptional contemporary residence offering versatile, adaptable and spacious accommodation of approximately 2,625 sq ft. The property benefits from three/four double bedrooms and three en-suites, located in the sought after "Avenues" with sea and country views.
Property Oracle says ..
This property is a contemporary four bedroom house located in the desirable Avenues area of Exmouth, East Devon. The property boasts approximately 2625 square feet of living space spread across three floors, along with three en-suite bathrooms and numerous amenities. The exterior presents as a well-maintained modern townhouse in an attractive development. Internally, high-end finishes, modern design, and spacious rooms combine to create an appealing living environment. The large windows throughout the property maximize natural light and provide stunning views across the surrounding area and even glimpses of the sea. The inclusion of multiple patios/balconies offers wonderful opportunities for outdoor entertaining and relaxation. The location in the Avenues area of Exmouth places this property in an enviable position providing easy access to amenities, transport, and attractive scenery. Whilst the price point is likely to be a key consideration for potential buyers, the property’s high quality build, contemporary finishes, desirable location, and stunning views could justify the price in the current market to some buyers. The property is reported to have 0.00 sqft of plot size, this does not indicate a large garden. Potential buyers should consider the limitations this could pose and weigh up accordingly. Overall, this property represents a modern and comfortable home with attractive features located in a popular and conveniently located residential area.
Therefore, we give this property 6 / 10. *Disclaimer: This is our option and does constitute a recommendation or financial advice. Do your own research. *
- Price
- 7
- Condition
- 9
- Location
- 8
- Land
- 3
- Bedrooms
- 4
- Bathrooms
- 3
- Sqft (est)
- 2,625.32
The heatmap indicates the level of crime in the area. The color of the heatmap indicates the crime severity and recency.
Metrics Year-on-Year
- Average area value
- 385,000.00 £Decreased by 11.33 %
- Est sale value
- 1,748,463.12 £Increased by 93.60 %
- Average area rental value
- 1,650.00 £/moIncreased by 37.04 %
- Est letting value
- 5,250.64 £/mo
- Est rental Yield
- 5.14 %Increased by 54.35 %
- Crime Rate
- 1.00 %Unchanged by 0.00 %
Agent Activity
Hall & Scott created the listing.
Nearby Schools
| Name | Type | Ofsted | Distance |
|---|---|---|---|
| St Joseph'S Catholic Primary School, Exmouth | Academy Converter | Good | 1.24 KM |
| Exmouth & District Children'S Centre | Children's Centre | 1.31 KM | |
| Marpool Primary School | Foundation School | Good | 1.35 KM |
| Exeter Royal Academy For Deaf Education | Non-maintained Special School | Requires improvement | 1.39 KM |
| Withycombe Raleigh Church Of England Primary School | Voluntary Controlled School | Good | 1.61 KM |
Images
Nearby Streets
| Name | Average Price | Average Sqft | Distance |
|---|---|---|---|
| Walnut Grove | £ 220,000 | 0 | 0.00 KM |
| Vale Road | £ 0 | 0 | 0.00 KM |
| High View Gardens | £ 0 | 0 | 0.00 KM |
| Sutton Road | £ 279,950 | 0 | 0.00 KM |
| Park Way | £ 345,000 | 0 | 0.00 KM |
Nearby Transport
| Name | NLC | TLC | Distance |
|---|---|---|---|
| Exmouth | 5756 | EXM | 2.43 KM |
| Lympstone Village | 5761 | LYM | 5.43 KM |
| Dawlish Warren | 3409 | DWW | 5.87 KM |
| Starcross | 3413 | SCS | 6.11 KM |
| Lympstone Commando | 5762 | LYC | 7.28 KM |
Nearby Listings
| Address | Price | Type | Score | Distance |
|---|---|---|---|---|
| Ocean Quest, Douglas Avenue, Exmouth | £ 950,000 | BUY | 6 / 10 | 0.00 KM |
| Douglas Avenue, Exmouth, EX8 | £ 950,000 | BUY | 8 / 10 | 0.05 KM |
| Mayfield Drive, Exmouth | £ 895,000 | BUY | 7 / 10 | 0.08 KM |
| Mayfield Drive, Exmouth, Devon | £ 1,250,000 | BUY | Unknown | 0.08 KM |
| Douglas Avenue, Exmouth, EX8 2HB | £ 300,000 | BUY | 8 / 10 | 0.10 KM |
Nearby Properties
| Address | Price | Distance |
|---|---|---|
| 3 Mayfield Drive | £ 497,734 | 0.08 KM |
| 6 Mayfield Drive | £ 415,000 | 0.08 KM |
| 30a Douglas Avenue | £ 775,000 | 0.10 KM |
| 56 Douglas Avenue | £ 1,095,000 | 0.25 KM |
| 42a Douglas Avenue | £ 499,950 | 0.25 KM |