Currans Homes says ..
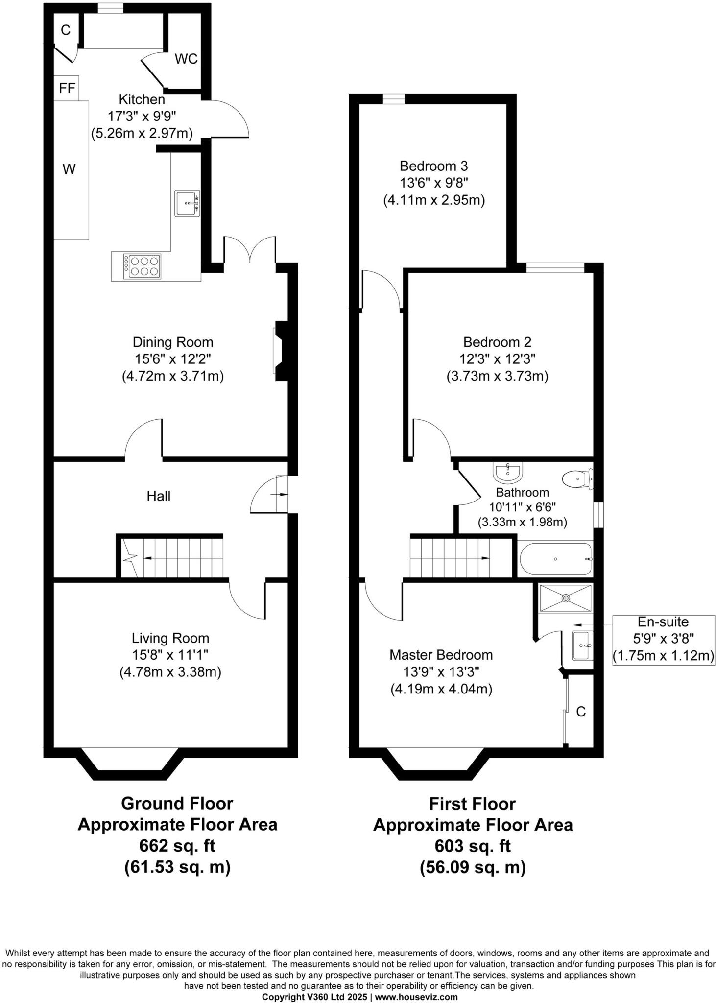
Set along the sought-after Filkins Lane, this delightful home perfectly blends classic character with contemporary style. From the moment you step inside, you are welcomed by a spacious hallway with useful storage beneath the stairs, leading into a beautifully presented living room featuring a ch...
Property Oracle says ..
This is a three-bedroom semi-detached property located in Great Boughton, Chester. The house appears to be in good condition, with a modern interior and a well-maintained garden. The location is convenient for local schools and transportation links. The asking price is relatively high for the area, but may be justified by the property’s condition and recent renovations.
Therefore, we give this property 7 / 10. *Disclaimer: This is our option and does constitute a recommendation or financial advice. Do your own research. *
- Price
- 6
- Condition
- 8
- Location
- 7
- Land
- 7
- Bedrooms
- 3
- Bathrooms
- 2
The heatmap indicates the level of crime in the area. The color of the heatmap indicates the crime severity and recency.
Metrics Year-on-Year
- Average area value
- 304,375.00 £Increased by 1.56 %
- Average area rental value
- 874.00 £/moDecreased by 24.13 %
- Est rental Yield
- 3.45 %Decreased by 25.16 %
- Crime Rate
- 17.00 %Unchanged by 0.00 %
Agent Activity
Currans Homes created the listing.
Nearby Schools
| Name | Type | Ofsted | Distance |
|---|---|---|---|
| Cherry Grove Primary School | Community School | Good | 0.26 KM |
| Boughton Heath Academy | Academy Converter | 0.53 KM | |
| Hoole Church Of England Primary School | Voluntary Controlled School | Good | 0.79 KM |
| The Bishops' Blue Coat Church Of England High School | Academy Converter | Good | 0.84 KM |
| Maple Grove School | Other Independent Special School | 0.90 KM |
Images
Nearby Streets
| Name | Average Price | Average Sqft | Distance |
|---|---|---|---|
| Sandringham Avenue | £ 350,000 | 0 | 0.00 KM |
| Heather Court | £ 0 | 0 | 0.00 KM |
| Tollemarche Terrace | £ 285,000 | 0 | 0.00 KM |
| Hilary Close | £ 415,000 | 0 | 0.00 KM |
| Cross Street | £ 0 | 0 | 0.00 KM |
Nearby Transport
| Name | NLC | TLC | Distance |
|---|---|---|---|
| Chester | 2412 | CTR | 1.90 KM |
| Bache | 2187 | BAC | 3.69 KM |
| Stanlow And Thornton | 2159 | SNT | 9.97 KM |
Nearby Listings
| Address | Price | Type | Score | Distance |
|---|---|---|---|---|
| Filkins Lane, Chester, CH3 | £ 425,000 | BUY | 7 / 10 | 0.00 KM |
| Filkins Lane, Chester, CH3 | £ 395,000 | BUY | Unknown | 0.00 KM |
| Dale Street, Chester, Cheshire | £ 225,000 | BUY | 6 / 10 | 0.10 KM |
| Cherry Gardens, Great Boughton, Chester | £ 350,000 | BUY | 5 / 10 | 0.11 KM |
| Tarvin Road, Boughton | £ 250,000 | BUY | 7 / 10 | 0.13 KM |
Nearby Properties
| Address | Price | Distance |
|---|---|---|
| 9b Filkins Lane | £ 177,000 | 0.01 KM |
| 9a Filkins Lane | £ 202,000 | 0.01 KM |
| 13 Filkins Lane | £ 220,000 | 0.01 KM |
| 21 Filkins Lane | £ 205,000 | 0.01 KM |
| 25 Filkins Lane | £ 156,000 | 0.01 KM |