Howards says ..
Offers Over £900,000- The Courtyard has a lot to offer. This is an exceptional and sizeable barn, converted to the highest standard
Property Oracle says ..
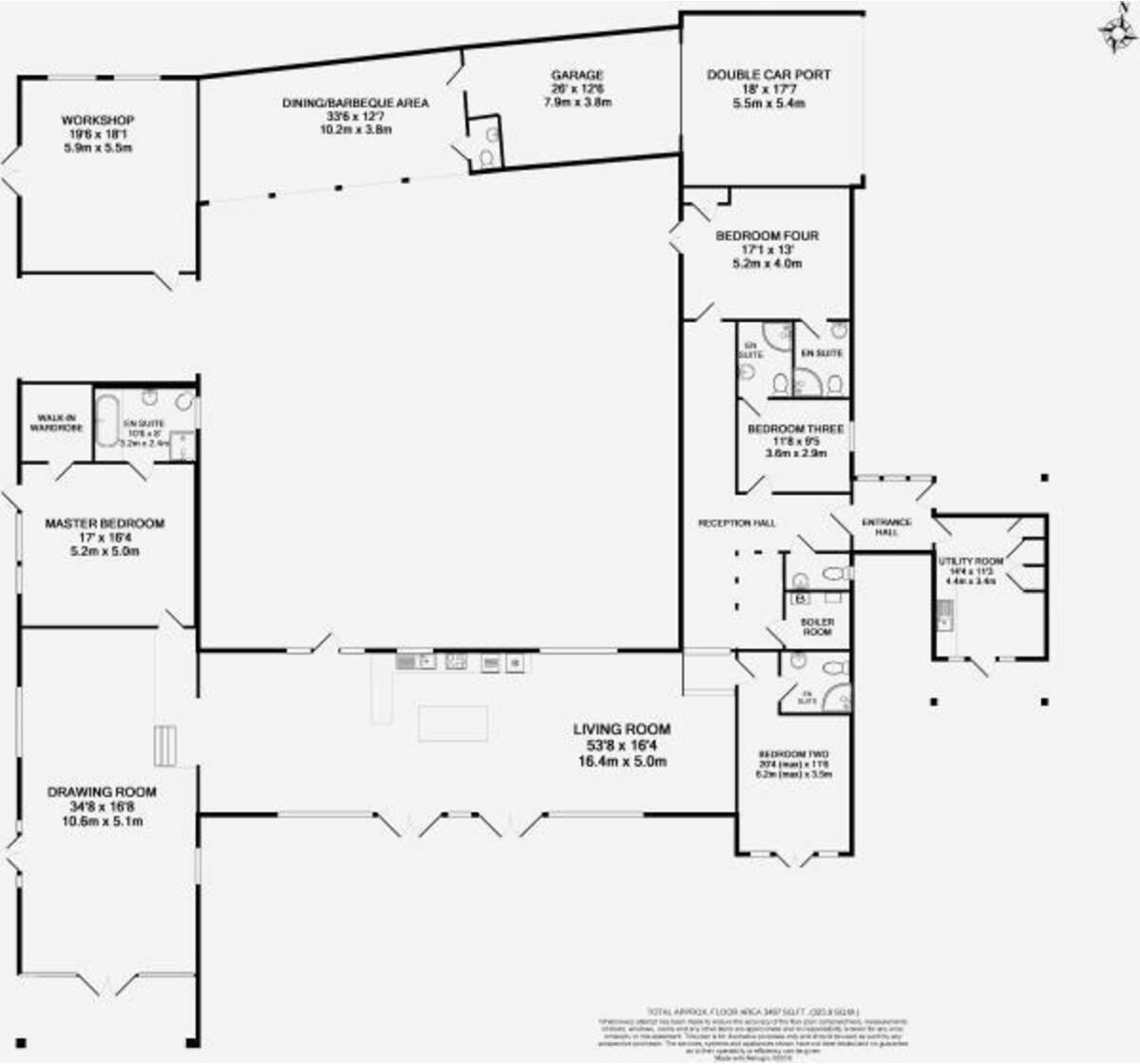
This barn conversion in Tibenham, Norfolk, presents a compelling proposition for buyers seeking a spacious, high-quality home in a desirable rural location. The property features a modern and well-maintained interior, with an open-plan design highlighting the original features. The high ceilings, exposed beams, and expansive windows create a bright and airy living space. The kitchen is well-equipped and stylish. The property includes multiple bedrooms and bathrooms, ensuring ample space for a family. The exterior is equally impressive; the large, well-maintained lawn offers plenty of outdoor space. The surrounding area is peaceful and idyllic. Nearby, several good-rated primary schools are accessible. Whilst further details about local amenities are limited, there’s a railway station nearby. The absence of a precise plot size and average price per square foot for directly comparable properties limits a complete price per sqft evaluation. However, based on the available data on the cost of similar properties in the area, the listing price of £900,000 appears to reflect the market. In summary, this property offers a blend of modern comfort and rural charm, making it a potential investment. Buyers should conduct further research to assess the proximity of daily necessities, such as grocery stores, before making a decision.
Therefore, we give this property 7 / 10. *Disclaimer: This is our option and does constitute a recommendation or financial advice. Do your own research. *
- Price
- 7
- Condition
- 9
- Location
- 7
- Land
- 8
- Bedrooms
- 3
- Bathrooms
- 2
- Sqft (est)
- 3,667.26
The heatmap indicates the level of crime in the area. The color of the heatmap indicates the crime severity and recency.
Metrics Year-on-Year
- Average area value
- 418,333.00 £Decreased by 36.78 %
- Est sale value
- 957,154.86 £Increased by 536.59 %
- Average area rental value
- 1,025.00 £/moDecreased by 11.64 %
- Est letting value
- 0.00 £/mo
- Est rental Yield
- 2.94 %Increased by 40.00 %
- Crime Rate
- 52.00 %Unchanged by 0.00 %
Agent Activity
Howards marked this listing as sold.
Howards created the listing.
Nearby Schools
| Name | Type | Ofsted | Distance |
|---|---|---|---|
| Bunwell Primary School | Academy Converter | Good | 2.48 KM |
| Carleton Rode Church Of England Voluntary Aided Primary School | Voluntary Aided School | Good | 3.58 KM |
| Aslacton Primary School | Academy Converter | Good | 3.95 KM |
| Forncett St Peter Church Of England Voluntary Aided Primary School | Voluntary Aided School | Outstanding | 5.19 KM |
| All Saints Church Of England Voluntary Aided Primary School, Winfarthing | Voluntary Aided School | Good | 6.72 KM |
Images
Nearby Transport
| Name | NLC | TLC | Distance |
|---|---|---|---|
| Spooner Row | 7379 | SPN | 9.19 KM |
Nearby Listings
| Address | Price | Type | Score | Distance |
|---|---|---|---|---|
| Cargate Common, Tibenham | £ 895,000 | BUY | 6 / 10 | 0.06 KM |
| The Street, Tibenham, Norwich | £ 325,000 | BUY | 6 / 10 | 0.88 KM |
| Tibenham | £ 900,000 | BUY | 7 / 10 | 0.89 KM |
| The Street, Tibenham | £ 1,000,000 | BUY | 7 / 10 | 0.89 KM |
| The Street, Tibenham, NR16 | £ 1,100,000 | BUY | 7 / 10 | 0.90 KM |
Nearby Properties
| Address | Price | Distance |
|---|---|---|
| The Courtyard | £ 800,000 | 0.01 KM |
| Kenhurst | £ 189,950 | 0.01 KM |
| Fairfields | £ 500,000 | 0.01 KM |
| Saddlers Cottage | £ 330,000 | 0.81 KM |
| Gates Cottage | £ 285,000 | 0.90 KM |