Cromwell Court, Tudor Way, Knaphill, Surrey, GU21
By Seymours Estate Agents
£ 260,000
Reviews
3 out of 5 stars
Seymours Estate Agents says ..
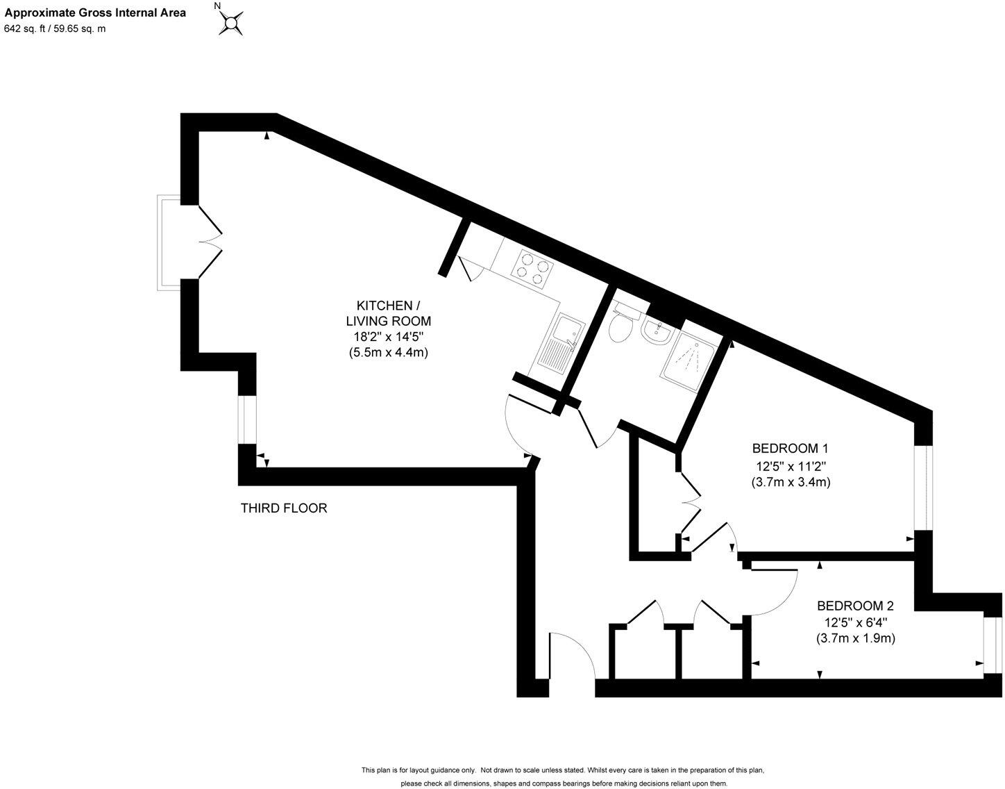
** NO ONWARD CHAIN ** An exceptional two-bedroom top floor apartment located within the ever-popular Tudor Way development, a stone’s throw from the nearby Sainsbury's superstore as well as being within a mile of Brookwood mainline station. Our client has maintained the property...
Property Oracle says ..
The property is a 2-bedroom apartment located in Cromwell Court, Tudor Way, Knaphill, Surrey. Knaphill benefits from being relatively close to Woking, providing access to more extensive amenities and transport links. The nearby Brookwood train station offers a connection to London Waterloo, which is a significant advantage for commuters. The presence of several primary schools within a reasonable distance is also positive for families. However, the lack of information regarding the property’s square footage and plot size prevents a comprehensive assessment of its value.
The apartment appears to be in excellent condition based on the provided images. The interior is modern, clean, and well-maintained. The kitchen and bathroom are contemporary and recently updated, suggesting minimal need for repairs or renovations.
While the provided images show a small communal green space, there is no evidence of a private garden associated with the apartment.
Determining the reasonableness of the £260,000 list price is challenging without knowing the property’s square footage. Comparing it to nearby listings is difficult due to the missing square footage data in those listings as well. However, the list price appears to be in line with the average prices of similar properties in the area, considering the apparent good condition and convenient location. More data is needed for a definitive assessment.
Therefore, we give this property 6 / 10. *Disclaimer: This is our option and does constitute a recommendation or financial advice. Do your own research. *
- Price
- 7
- Condition
- 9
- Location
- 8
- Land
- 3
- Bedrooms
- 2
- Bathrooms
- 1
The heatmap indicates the level of crime in the area. The color of the heatmap indicates the crime severity and recency.
Metrics Year-on-Year
- Average area value
- 586,400.00 £Increased by 18.76 %
- Average area rental value
- 2,150.00 £/moIncreased by 9.47 %
- Est rental Yield
- 4.40 %Decreased by 7.76 %
- Crime Rate
- 15.00 %Unchanged by 0.00 %
Agent Activity
Seymours Estate Agents created the listing.
Nearby Schools
| Name | Type | Ofsted | Distance |
|---|---|---|---|
| The Knaphill Lower School | Academy Converter | 0.43 KM | |
| Knaphill School | Academy Converter | 0.49 KM | |
| St Hugh Of Lincoln Catholic Primary School | Academy Converter | Good | 1.26 KM |
| Brookwood Primary School | Academy Sponsor Led | Good | 1.42 KM |
| Brookwood & Pirbright Sure Start Children'S Centre | Children's Centre | 1.57 KM |
Images
Nearby Streets
| Name | Average Price | Average Sqft | Distance |
|---|---|---|---|
| Barton Close | £ 0 | 0 | 0.00 KM |
| Rose Lodge | £ 0 | 0 | 0.00 KM |
| Trinity Road | £ 660,000 | 0 | 0.00 KM |
| Oak Tree Road | £ 0 | 0 | 0.00 KM |
| Elmgrove Close | £ 425,000 | 0 | 0.00 KM |
Nearby Transport
| Name | NLC | TLC | Distance |
|---|---|---|---|
| Brookwood | 5687 | BKO | 1.85 KM |
| Worplesdon | 5686 | WPL | 5.08 KM |
| Woking | 5685 | WOK | 7.19 KM |
| Longcross | 5674 | LNG | 8.59 KM |
| Sunningdale | 5671 | SNG | 8.89 KM |
Nearby Listings
| Address | Price | Type | Score | Distance |
|---|---|---|---|---|
| Cromwell Court, Tudor Way, Knaphill, Surrey, GU21 | £ 260,000 | BUY | 6 / 10 | 0.00 KM |
| Cromwell Court, Tudor Way, Knaphill, Woking, GU21 | £ 250,000 | BUY | 6 / 10 | 0.00 KM |
| Albert Drive, Sheerwater, Woking, Surrey, GU21 | £ 325,000 | BUY | 7 / 10 | 0.00 KM |
| Boleyn Court, Tudor Way, Knaphill | £ 220,000 | BUY | Unknown | 0.06 KM |
| Knaphill | £ 285,000 | BUY | Unknown | 0.07 KM |
Nearby Properties
| Address | Price | Distance |
|---|---|---|
| 168 Percheron Drive | £ 844,000 | 0.11 KM |
| 167 Percheron Drive | £ 685,000 | 0.11 KM |
| 150 Percheron Drive | £ 695,000 | 0.11 KM |
| 162 Percheron Drive | £ 776,000 | 0.11 KM |
| 152 Percheron Drive | £ 690,000 | 0.11 KM |