LO
Elborough Street, London
By Loney Miller Limited
£ 1,595,000
Reviews
3 out of 5 stars
Loney Miller Limited says ..
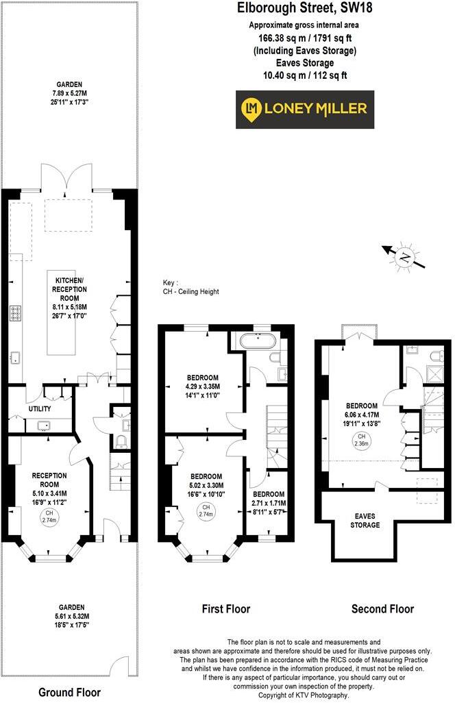
A stunning, refurbished family home, with an attractive redbrick frontage and off street parking, on the sought-after Southfields Grid, within the indicated catchment area of Sheringdale Primary School, and moments from the village centre and Southfields' District Line underground station. Thoug...
Property Oracle says ..
Therefore, we give this property 7 / 10. *Disclaimer: This is our option and does constitute a recommendation or financial advice. Do your own research. *
- Price
- 7
- Condition
- 9
- Location
- 8
- Land
- 7
- Bedrooms
- 4
- Bathrooms
- 2
The heatmap indicates the level of crime in the area. The color of the heatmap indicates the crime severity and recency.
Metrics Year-on-Year
- Average area value
- 719,333.00 £Increased by 1.81 %
- Average area rental value
- 2,472.00 £/moDecreased by 10.69 %
- Est rental Yield
- 4.12 %Decreased by 12.34 %
- Crime Rate
- 4.00 %Unchanged by 0.00 %
from 706,552.00 £
from 2,768.00 £/mo
from 4.70 %
from 4.00 %
Agent Activity
Loney Miller Limited created the listing.
Nearby Schools
| Name | Type | Ofsted | Distance |
|---|---|---|---|
| Riversdale Primary School | Community School | Good | 0.37 KM |
| Sheringdale Primary School | Community School | Outstanding | 0.40 KM |
| Southfields Academy | Academy Converter | Good | 0.50 KM |
| St Michael'S Cofe Primary School | Voluntary Aided School | Outstanding | 0.75 KM |
| Saint Cecilia'S Church Of England School | Academy Converter | Good | 0.84 KM |
Images
Nearby Streets
| Name | Average Price | Average Sqft | Distance |
|---|---|---|---|
| Alba Mews | £ 0 | 0 | 0.00 KM |
| Normanton Avenue | £ 0 | 0 | 0.00 KM |
| Glenville Mews | £ 0 | 0 | 0.00 KM |
| Southfields Court | £ 0 | 0 | 0.00 KM |
| Wandle Trail | £ 690,000 | 0 | 0.00 KM |
Nearby Transport
| Name | NLC | TLC | Distance |
|---|---|---|---|
| Earlsfield | 5584 | EAD | 1.53 KM |
| Wandsworth Town | 5576 | WNT | 2.39 KM |
| Haydons Road | 5289 | HYR | 2.51 KM |
| Putney | 5603 | PUT | 2.53 KM |
| Wimbledon | 5578 | WIM | 2.61 KM |
Nearby Listings
| Address | Price | Type | Score | Distance |
|---|---|---|---|---|
| Elborough Street, London | £ 1,595,000 | BUY | 7 / 10 | 0.00 KM |
| Elborough Street, London, SW18 | £ 1,475,000 | BUY | 7 / 10 | 0.01 KM |
| Trentham Street, London | £ 575,000 | BUY | 5 / 10 | 0.06 KM |
| Brookwood Road, London | £ 550,000 | BUY | 7 / 10 | 0.07 KM |
| Trentham Street, Southfields, London, SW18 | £ 1,400,000 | BUY | 8 / 10 | 0.07 KM |
Nearby Properties
| Address | Price | Distance |
|---|---|---|
| 36b Elborough Street | £ 385,000 | 0.04 KM |
| 4 Elborough Street | £ 250,000 | 0.04 KM |
| 10 Elborough Street | £ 921,000 | 0.04 KM |
| 6 Elborough Street | £ 1,150,000 | 0.04 KM |
| 20 Elborough Street | £ 1,177,000 | 0.04 KM |