Atwell Martin says ..
Luxury 2-bed apartment close to city centre with south-facing balcony, modern kitchen, master en-suite, and parking. Beautiful views of cricket pitch. New build warranty. Don't miss out!
Property Oracle says ..
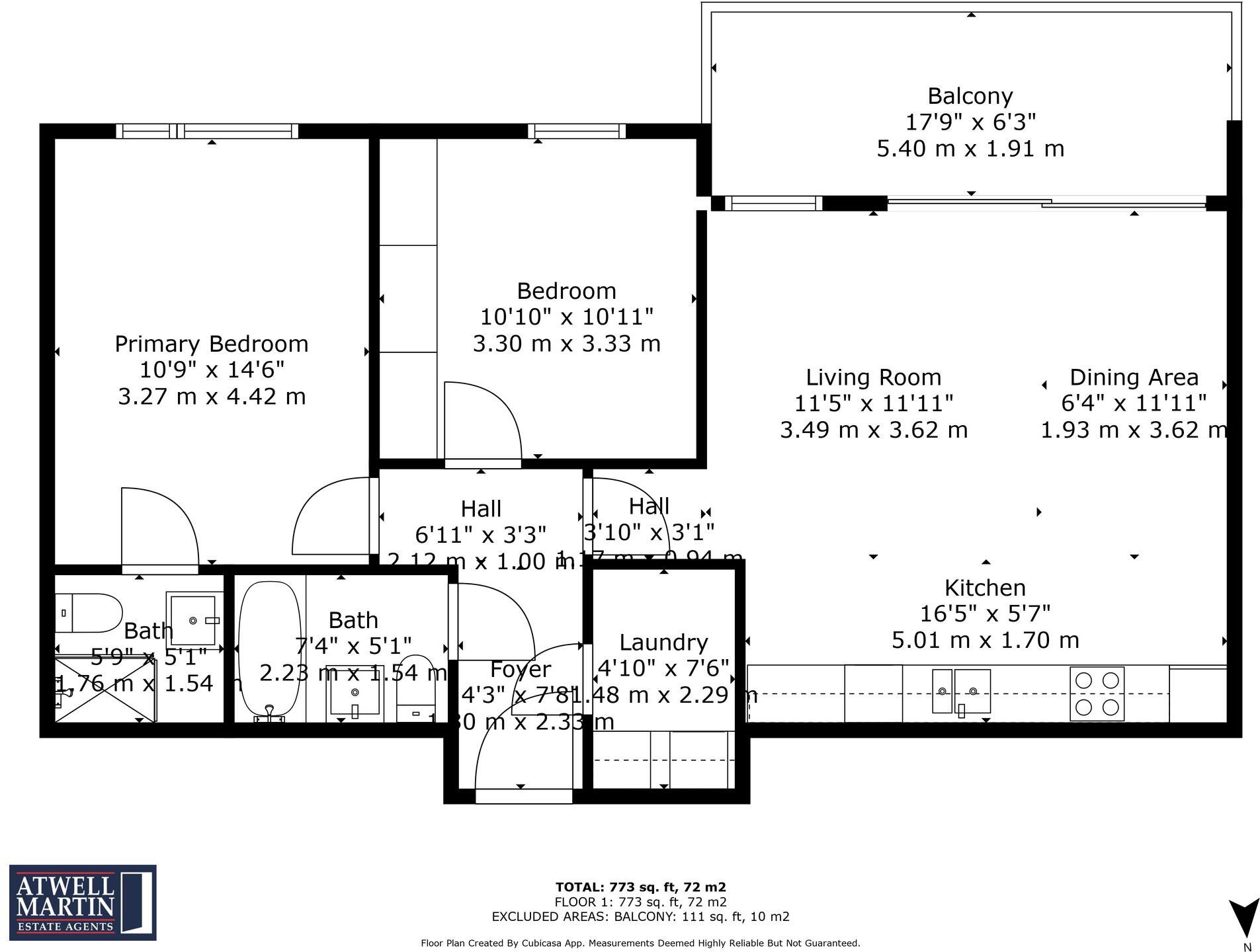
This property is a modern two-bedroom apartment located in Devonport, Plymouth. The apartment is in excellent condition and benefits from modern fixtures and fittings throughout. The location is convenient, with nearby schools, transportation links, and amenities. The property is priced slightly above the average price per square foot for the area, but given its modern condition and desirable location, the price is reasonable. The apartment is part of a larger development and has access to outdoor space.
Therefore, we give this property 8 / 10. *Disclaimer: This is our option and does constitute a recommendation or financial advice. Do your own research. *
- Price
- 7
- Condition
- 10
- Location
- 8
- Land
- 7
- Bedrooms
- 2
- Bathrooms
- 2
- Sqft (est)
- 851.00
- Lot (est)
- 773.00
The heatmap indicates the level of crime in the area. The color of the heatmap indicates the crime severity and recency.
Metrics Year-on-Year
- Average area value
- 177,475.00 £Decreased by 2.93 %
- Est sale value
- 166,796.00 £Decreased by 10.50 %
- Average area rental value
- 1,174.00 £/moIncreased by 51.48 %
- Est letting value
- 851.00 £/mo
- Est rental Yield
- 7.94 %Increased by 55.99 %
- Crime Rate
- 4.00 %Unchanged by 0.00 %
Agent Activity
Atwell Martin created the listing.
Nearby Schools
| Name | Type | Ofsted | Distance |
|---|---|---|---|
| City College Plymouth | Further Education | Good | 0.57 KM |
| St Joseph'S Catholic Primary School | Academy Converter | Good | 0.72 KM |
| Green Ark Children'S Centre | Children's Centre | 0.78 KM | |
| High Street Primary Academy | Academy Sponsor Led | Serious Weaknesses | 0.92 KM |
| Mount Wise Community Primary School | Academy Converter | 0.93 KM |
Images
Nearby Streets
| Name | Average Price | Average Sqft | Distance |
|---|---|---|---|
| Kings Road | £ 0 | 0 | 0.00 KM |
| Cumberland Street | £ 0 | 0 | 0.00 KM |
| Ker St Ope | £ 0 | 0 | 0.00 KM |
| Keyes Close | £ 0 | 0 | 0.00 KM |
| St Michael's Terrace | £ 0 | 0 | 0.00 KM |
Nearby Transport
| Name | NLC | TLC | Distance |
|---|---|---|---|
| Devonport | 3579 | DPT | 1.09 KM |
| Dockyard (Devonport) | 3588 | DOC | 1.67 KM |
| Keyham | 3571 | KEY | 2.62 KM |
| Plymouth | 3580 | PLY | 2.98 KM |
| St Budeaux Ferry Road | 3590 | SBF | 4.12 KM |
Nearby Listings
| Address | Price | Type | Score | Distance |
|---|---|---|---|---|
| Teesra House, Mount Wise | £ 320,000 | BUY | 8 / 10 | 0.00 KM |
| Teesra House, Mount Wise, Plymouth | £ 350,000 | BUY | 6 / 10 | 0.00 KM |
| Mount Wise Crescent, Plymouth, Devon, PL1 | £ 895,000 | BUY | 6 / 10 | 0.06 KM |
| Mount Wise, Plymouth | £ 389,950 | BUY | 6 / 10 | 0.08 KM |
| Leeward House, Mount Wise, Plymouth | £ 365,000 | BUY | 6 / 10 | 0.14 KM |
Nearby Properties
| Address | Price | Distance |
|---|---|---|
| 52 Mount Wise Crescent | £ 210,000 | 0.18 KM |
| 1 Charles Darwin Road | £ 342,500 | 0.18 KM |
| 70 Discovery Road | £ 170,000 | 0.18 KM |
| 15 Charles Darwin Road | £ 210,000 | 0.18 KM |
| 58 Discovery Road | £ 190,000 | 0.18 KM |