Lakes Estates says ..
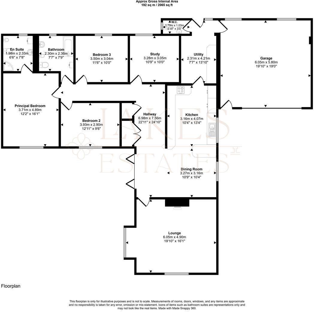
Discover this exceptional detached bungalow nestled in one of Penrith's most sought-after locations. This beautifully maintained home offers impressive space and thoughtful design throughout. The well-planned accommodation features a comfortable lounge and open-plan kitchen diner, comple...
Property Oracle says ..
Therefore, we give this property 7 / 10. *Disclaimer: This is our option and does constitute a recommendation or financial advice. Do your own research. *
- Price
- 6
- Condition
- 8
- Location
- 8
- Land
- 7
- Bedrooms
- 4
- Bathrooms
- 2
- Sqft (est)
- 2,267.53
The heatmap indicates the level of crime in the area. The color of the heatmap indicates the crime severity and recency.
Metrics Year-on-Year
- Average area value
- 284,069.00 £Increased by 11.19 %
- Est sale value
- 485,251.42 £Decreased by 30.97 %
- Average area rental value
- 969.00 £/moDecreased by 3.10 %
- Est letting value
- 0.00 £/moDecreased by 100.00 %
- Est rental Yield
- 4.09 %Decreased by 12.98 %
- Crime Rate
- 3.00 %Unchanged by 0.00 %
from 255,471.00 £
from 702,934.30 £
from 1,000.00 £/mo
from 2,267.53 £/mo
from 4.70 %
from 3.00 %
Agent Activity
Lakes Estates created the listing.
Nearby Schools
| Name | Type | Ofsted | Distance |
|---|---|---|---|
| Beaconside Cofe Primary School | Voluntary Aided School | Good | 0.58 KM |
| North Eden Surestart Children'S Centre | Children's Centre | 1.32 KM | |
| Ullswater Community College | Foundation School | Requires improvement | 1.53 KM |
| Brunswick School | Community School | Good | 1.91 KM |
| Hunter Hall School | Other Independent School | 1.92 KM |
Images
Nearby Streets
| Name | Average Price | Average Sqft | Distance |
|---|---|---|---|
| Brentfield Court | £ 0 | 0 | 0.00 KM |
| Daffodil Drive | £ 265,000 | 0 | 0.00 KM |
| Chancery Lane | £ 0 | 0 | 0.00 KM |
| Snowdrop Close | £ 270,000 | 0 | 0.00 KM |
| Friars Close | £ 0 | 0 | 0.00 KM |
Nearby Transport
| Name | NLC | TLC | Distance |
|---|---|---|---|
| Penrith (North Lakes) | 2102 | PNR | 2.38 KM |
| Langwathby | 2058 | LGW | 8.75 KM |
| Lazonby And Kirkoswald | 2059 | LZB | 9.97 KM |
Nearby Listings
| Address | Price | Type | Score | Distance |
|---|---|---|---|---|
| Cold Springs Park, Penrith | £ 595,000 | BUY | 7 / 10 | 0.00 KM |
| Cold Springs Park, Penrith | £ 525,000 | BUY | 6 / 10 | 0.06 KM |
| Carleton Meadows, Woodberry Heights, Penrith, CA11 | £ 415,000 | BUY | Unknown | 0.10 KM |
| Carleton Meadows, Woodberry Heights, Penrith, CA11 | £ 415,000 | BUY | 7 / 10 | 0.10 KM |
| Milner Mount, Penrith | £ 195,000 | BUY | 7 / 10 | 0.16 KM |
Nearby Properties
| Address | Price | Distance |
|---|---|---|
| 1 Cold Springs Court | £ 295,000 | 0.01 KM |
| 2 Cold Springs Court | £ 270,000 | 0.02 KM |
| 73 Milner Mount | £ 220,000 | 0.07 KM |
| 74 Milner Mount | £ 275,000 | 0.07 KM |
| 67 Milner Mount | £ 148,000 | 0.07 KM |