Hunters says ..
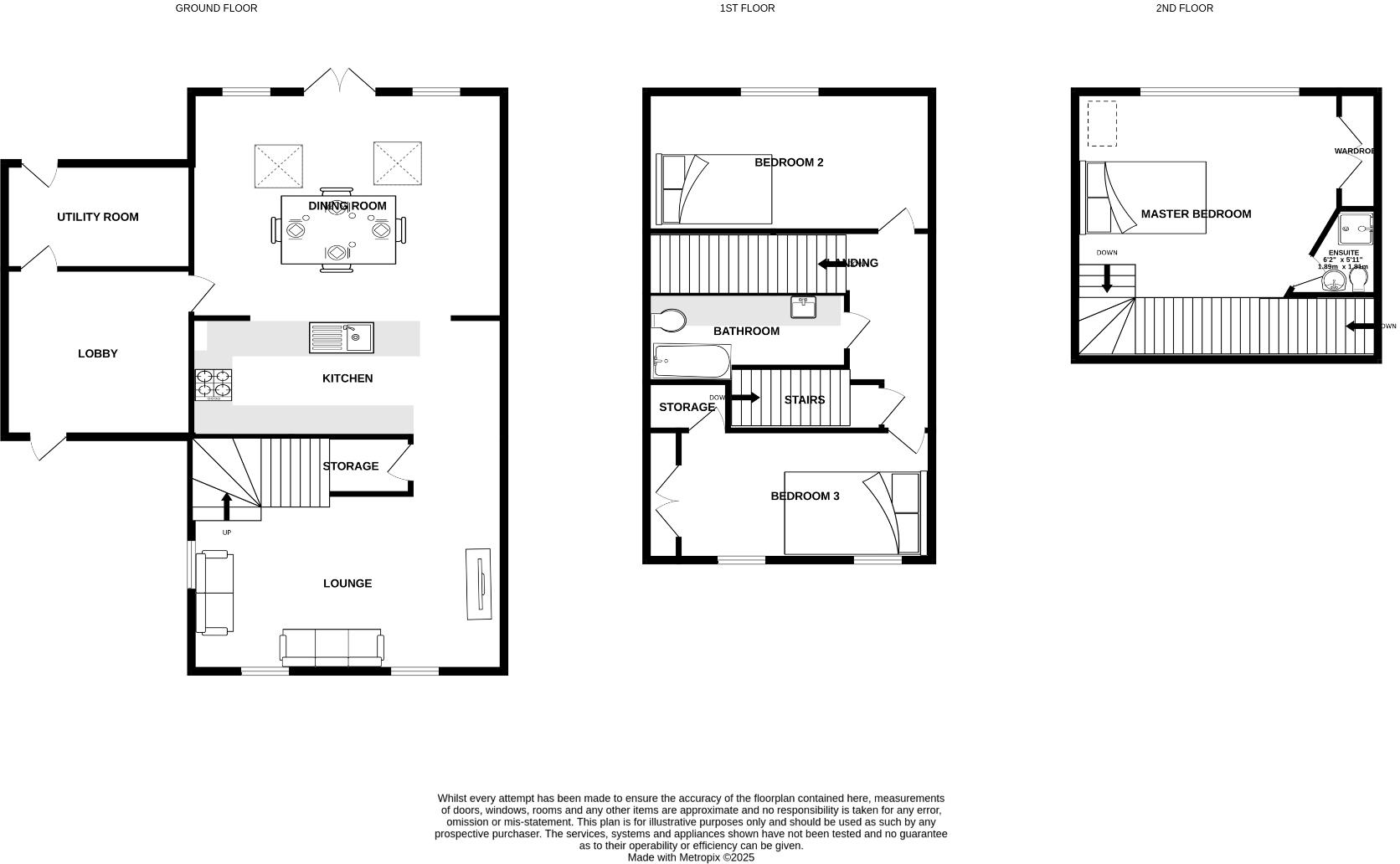
Nestled in the desirable area of The Bulrushes, Ashford, this semi-detached house is a splendid example of modern family living. With three well-proportioned bedrooms and two bathrooms, this extended home is perfect for those seeking space and comfort. The property boasts not only a previously c...
Property Oracle says ..
Therefore, we give this property 7 / 10. *Disclaimer: This is our option and does constitute a recommendation or financial advice. Do your own research. *
- Price
- 6
- Condition
- 8
- Location
- 8
- Land
- 7
- Bedrooms
- 3
- Bathrooms
- 2
- Sqft (est)
- 1,033.09
The heatmap indicates the level of crime in the area. The color of the heatmap indicates the crime severity and recency.
Metrics Year-on-Year
- Average area value
- 257,097.00 £Decreased by 8.25 %
- Est sale value
- 340,919.70 £Increased by 14.98 %
- Average area rental value
- 956.00 £/moIncreased by 1.92 %
- Est letting value
- 1,033.09 £/mo
- Est rental Yield
- 4.46 %Increased by 10.95 %
- Crime Rate
- 14.00 %Unchanged by 0.00 %
from 280,201.00 £
from 296,496.83 £
from 938.00 £/mo
from 0.00 £/mo
from 4.02 %
from 14.00 %
Agent Activity
Hunters created the listing.
Nearby Schools
| Name | Type | Ofsted | Distance |
|---|---|---|---|
| Great Chart Primary School | Community School | Outstanding | 0.41 KM |
| The John Wesley Church Of England Methodist Voluntary Aided Primary School | Voluntary Aided School | Good | 0.77 KM |
| The Wyvern School (Buxford) | Foundation Special School | Good | 0.95 KM |
| Beaver Green Primary School | Academy Sponsor Led | Good | 1.42 KM |
| Godinton Primary School | Academy Converter | Good | 1.61 KM |
Images
Nearby Streets
| Name | Average Price | Average Sqft | Distance |
|---|---|---|---|
| Great Chart Bypass | £ 0 | 0 | 0.00 KM |
| Honeyfield | £ 0 | 0 | 0.00 KM |
| Summerhill | £ 0 | 0 | 0.00 KM |
| Hedgers Way | £ 420,995 | 0 | 0.00 KM |
| Rowan Close | £ 0 | 0 | 0.00 KM |
Nearby Transport
| Name | NLC | TLC | Distance |
|---|---|---|---|
| Ashford International | 5004 | AFK | 4.25 KM |
| Ham Street | 5037 | HMT | 8.22 KM |
| Charing (Kent) | 5097 | CHG | 9.19 KM |
Nearby Listings
| Address | Price | Type | Score | Distance |
|---|---|---|---|---|
| The Bulrushes, Ashford | £ 375,000 | BUY | 7 / 10 | 0.00 KM |
| Dragonfly Close, Ashford TN24 | £ 279,950 | BUY | 5 / 10 | 0.04 KM |
| Dragonfly Close, Ashford | £ 275,000 | BUY | 7 / 10 | 0.08 KM |
| Dragonfly Close, Ashford TN23 | £ 260,000 | BUY | 7 / 10 | 0.08 KM |
| Dragonfly Close, Ashford, Kent, TN23 | £ 500,000 | BUY | Unknown | 0.08 KM |
Nearby Properties
| Address | Price | Distance |
|---|---|---|
| 15 The Bulrushes | £ 285,000 | 0.03 KM |
| 17 The Bulrushes | £ 265,000 | 0.03 KM |
| 5 The Bulrushes | £ 215,000 | 0.03 KM |
| 7 The Bulrushes | £ 350,000 | 0.03 KM |
| 12 The Bulrushes | £ 255,000 | 0.06 KM |