Pearsons says ..
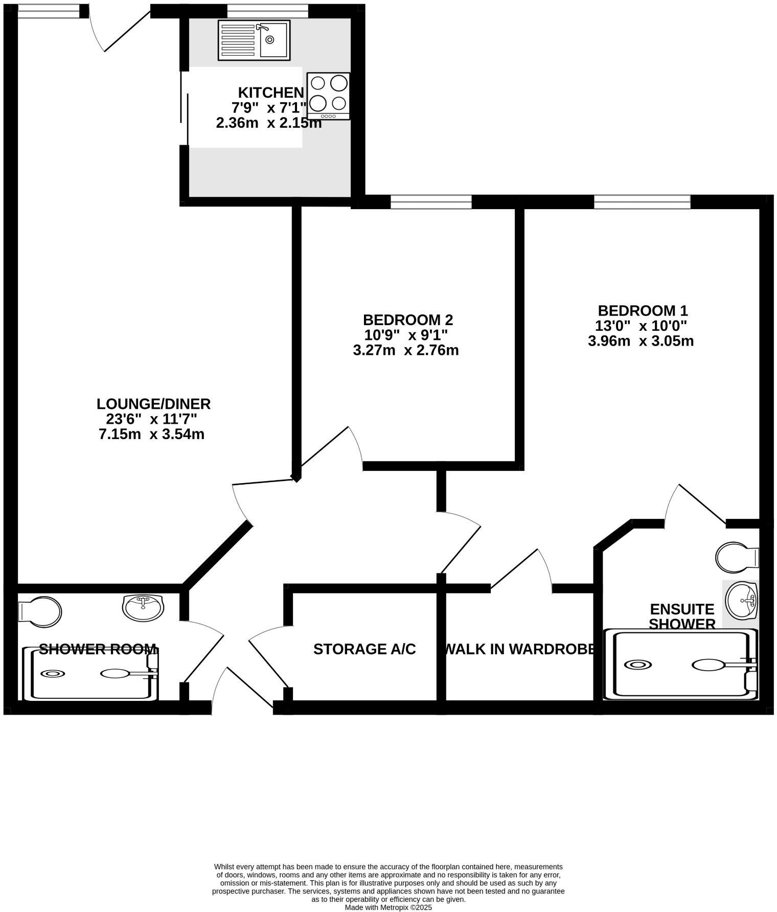
This two bedroom first floor retirement apartment is for the over 60's and situated in a popular location within walking distance of Hythe Village Centre. The property benefits from UPVC double glazing, ensuite shower room and underfloor heating throughout. Haven Court has communal facilities tha...
Property Oracle says ..
Therefore, we give this property 6 / 10. *Disclaimer: This is our option and does constitute a recommendation or financial advice. Do your own research. *
- Price
- 5
- Condition
- 8
- Location
- 7
- Land
- 5
- Bedrooms
- 2
- Bathrooms
- 1
- Sqft (est)
- 554.21
The heatmap indicates the level of crime in the area. The color of the heatmap indicates the crime severity and recency.
Metrics Year-on-Year
- Average area value
- 350,283.00 £Decreased by 10.77 %
- Est sale value
- 231,659.78 £Increased by 5.03 %
- Average area rental value
- 1,298.00 £/moDecreased by 3.06 %
- Est letting value
- 554.21 £/moUnchanged by 0.00 %
- Est rental Yield
- 4.45 %Increased by 8.80 %
- Crime Rate
- 4.00 %Unchanged by 0.00 %
from 392,549.00 £
from 220,575.58 £
from 1,339.00 £/mo
from 554.21 £/mo
from 4.09 %
from 4.00 %
Agent Activity
Pearsons created the listing.
Nearby Schools
| Name | Type | Ofsted | Distance |
|---|---|---|---|
| Hythe Primary School | Community School | Requires improvement | 0.34 KM |
| The Waterside Children'S Centre | Children's Centre | 1.05 KM | |
| Waterside Primary School | Community School | Good | 1.13 KM |
| Orchard Junior School | Community School | Good | 1.21 KM |
| Orchard Infant School | Community School | Outstanding | 1.21 KM |
Images
Nearby Streets
| Name | Average Price | Average Sqft | Distance |
|---|---|---|---|
| Fairfield Close | £ 409,950 | 0 | 0.00 KM |
| Roberts Road | £ 0 | 0 | 0.00 KM |
| Hollybank Close | £ 0 | 0 | 0.00 KM |
| Alexandra Close | £ 0 | 0 | 0.00 KM |
| West Street | £ 0 | 0 | 0.00 KM |
Nearby Transport
| Name | NLC | TLC | Distance |
|---|---|---|---|
| Southampton Central | 5932 | SOU | 4.47 KM |
| Woolston | 5925 | WLS | 4.59 KM |
| Sholing | 5930 | SHO | 5.44 KM |
| Millbrook (Hants) | 5909 | MBK | 5.79 KM |
| St Denys | 5914 | SDN | 6.30 KM |
Nearby Listings
| Address | Price | Type | Score | Distance |
|---|---|---|---|---|
| Haven Court, Southampton Road, Hythe | £ 225,000 | BUY | Unknown | 0.00 KM |
| 21 Haven Court, Southampton Road, Hythe | £ 279,950 | BUY | 5 / 10 | 0.00 KM |
| Haven Court, Hythe | £ 229,950 | BUY | 5 / 10 | 0.00 KM |
| Southampton Road, Hythe | £ 259,950 | BUY | 6 / 10 | 0.00 KM |
| Haven Court, Southampton Road, Hythe | £ 225,000 | BUY | 7 / 10 | 0.00 KM |
Nearby Properties
| Address | Price | Distance |
|---|---|---|
| 29 Malwood Road | £ 235,000 | 0.09 KM |
| 34 Malwood Road | £ 230,000 | 0.09 KM |
| 36 Malwood Road | £ 165,000 | 0.09 KM |
| 41 Malwood Road | £ 220,000 | 0.09 KM |
| 33 Malwood Road | £ 162,000 | 0.10 KM |