Wyndcote Road, Liverpool, Merseyside, L18
By Venmore
£ 325,000
Reviews
3 out of 5 stars
Venmore says ..
Attention Property Investors! Spacious 4-Bedroom Terrace with Endless Potential in Prime L18 area.
Property Oracle says ..
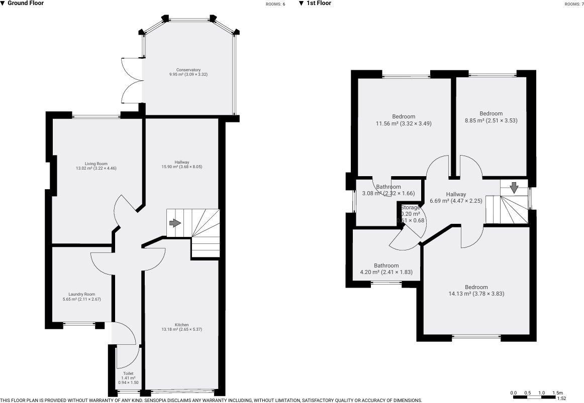
This four-bedroom, two-bathroom terraced house in Liverpool is listed at £325,000. The property is located on Wyndcote Road, in the Church area of Liverpool, Merseyside. The average house price in the area is £261,822, with an average price per square foot of £257. This property is slightly larger than average at 1,160.56 sqft. Nearby properties range in price from £67,000 to £525,000, indicating some price variation on the street. The property benefits from being close to several schools, including Mosspits Lane Primary School (Good Ofsted rating) and The Blue Coat School (Outstanding Ofsted rating), and is within reasonable distance of several train stations. While the images show the property to have a small yard, it is not extensive. The interior images suggest the property is in livable condition, though some updating or cosmetic work may be desired by the next owner. The kitchen and bathrooms appear functional but dated. The property has some period features, but it is not clear if it is a period property or simply a traditional property that has had some modernisation. Overall, the property seems to be reasonably priced for the area, considering its size and location, but potential buyers should factor in potential renovation costs.
Therefore, we give this property 6 / 10. *Disclaimer: This is our option and does constitute a recommendation or financial advice. Do your own research. *
- Price
- 7
- Condition
- 6
- Location
- 8
- Land
- 3
- Bedrooms
- 4
- Bathrooms
- 2
- Sqft (est)
- 1,160.56
The heatmap indicates the level of crime in the area. The color of the heatmap indicates the crime severity and recency.
Metrics Year-on-Year
- Average area value
- 261,363.00 £Decreased by 17.32 %
- Est sale value
- 410,838.24 £Increased by 53.25 %
- Average area rental value
- 1,055.00 £/moDecreased by 3.56 %
- Est letting value
- 1,160.56 £/mo
- Est rental Yield
- 4.84 %Increased by 16.63 %
- Crime Rate
- 13.00 %Unchanged by 0.00 %
Agent Activity
Venmore created the listing.
Nearby Schools
| Name | Type | Ofsted | Distance |
|---|---|---|---|
| Mosspits Lane Primary School | Community School | Good | 0.74 KM |
| Formerly Church & Mossley Hill Children Centre | Children's Centre Linked Site | 0.96 KM | |
| Dovedale Community Primary School | Community School | Good | 0.96 KM |
| Calderstones School | Community School | Requires improvement | 0.99 KM |
| The Blue Coat School | Academy Converter | Outstanding | 1.03 KM |
Images
Nearby Streets
| Name | Average Price | Average Sqft | Distance |
|---|---|---|---|
| Rosedale Road | £ 257,500 | 0 | 0.00 KM |
| Henley Road | £ 405,000 | 0 | 0.00 KM |
| Sunsdale Road | £ 264,000 | 0 | 0.00 KM |
| Green Lane | £ 443,333 | 0 | 0.00 KM |
| Rose Lane | £ 50,000 | 0 | 0.00 KM |
Nearby Transport
| Name | NLC | TLC | Distance |
|---|---|---|---|
| Mossley Hill | 2171 | MSH | 1.18 KM |
| West Allerton | 2266 | WSA | 2.03 KM |
| Wavertree Technology Park | 8589 | WAV | 2.53 KM |
| Broad Green | 2240 | BGE | 2.72 KM |
| Cressington | 2225 | CSG | 3.20 KM |
Nearby Listings
| Address | Price | Type | Score | Distance |
|---|---|---|---|---|
| Wyndcote Road, Liverpool, Merseyside, L18 | £ 325,000 | BUY | 6 / 10 | 0.00 KM |
| Wyndcote Road, LIVERPOOL, Merseyside, L18 | £ 400,000 | BUY | Unknown | 0.04 KM |
| Ensworth Road, Mossley Hill, Liverpool L18 | £ 420,000 | BUY | 7 / 10 | 0.06 KM |
| Courtland Road, Mossley Hill, Liverpool, L18 | £ 395,000 | BUY | 7 / 10 | 0.10 KM |
| Addingham Road, Liverpool, Merseyside, L18 | £ 340,000 | BUY | Unknown | 0.15 KM |
Nearby Properties
| Address | Price | Distance |
|---|---|---|
| 12 Wyndcote Road | £ 315,000 | 0.02 KM |
| 32 Wyndcote Road | £ 485,000 | 0.02 KM |
| 11 Wyndcote Road | £ 300,000 | 0.02 KM |
| 2 Wyndcote Road | £ 73,500 | 0.02 KM |
| 18 Wyndcote Road | £ 265,000 | 0.02 KM |