Bettesworths says ..
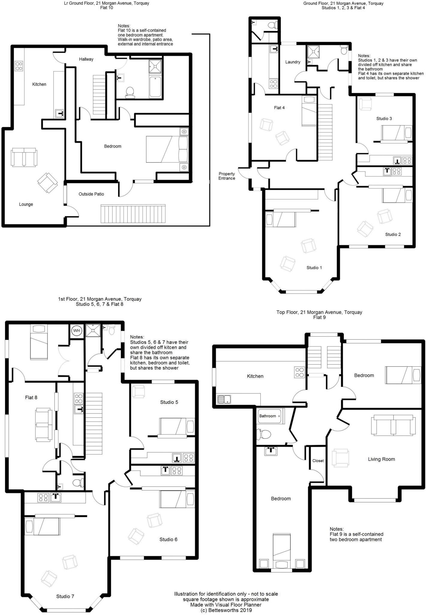
20 Unit Fully Licensed HMO - Arranged as Two Semi-Detached Buildings. Gross Rental Income of £121,020 Per Annum. Situated on Morgan Avenue, just a short walk from Torquay town centre, seafront, and local amenities. The property benefits from easy access to public transport links, with T...
Property Oracle says ..
The property is listed as a house of multiple occupation (HMO) on Morgan Avenue in Torquay. The location benefits from being in close proximity to Torquay train station and local schools. Based on the images, the property appears to be in need of renovation. The interior photos show a variety of living spaces and kitchens, suggesting the property is divided into multiple units. The bathrooms appear dated. The external shot shows some signs of wear. The property has a square footage of 1,690. The average price per square foot in the area is £325. The listing price is £975,000, equating to approximately £576 per square foot. This is significantly higher than the average for the area. However, nearby listings on Morgan Avenue show a detached property listed for £1,100,000.
Therefore, we give this property 4 / 10. *Disclaimer: This is our option and does constitute a recommendation or financial advice. Do your own research. *
- Price
- 4
- Condition
- 4
- Location
- 7
- Land
- 3
- Bedrooms
- 0
- Bathrooms
- 0
- Sqft (est)
- 1,690.00
The heatmap indicates the level of crime in the area. The color of the heatmap indicates the crime severity and recency.
Metrics Year-on-Year
- Average area value
- 294,333.00 £Increased by 15.16 %
- Est sale value
- 549,250.00 £Increased by 27.45 %
- Average area rental value
- 802.00 £/moDecreased by 15.22 %
- Est letting value
- 0.00 £/mo
- Est rental Yield
- 3.27 %Decreased by 26.35 %
- Crime Rate
- 18.00 %Unchanged by 0.00 %
Agent Activity
Bettesworths created the listing.
Nearby Schools
| Name | Type | Ofsted | Distance |
|---|---|---|---|
| Eat That Frog C.I.C | Special Post 16 Institution | Good | 0.41 KM |
| Ef Academy Torbay | Other Independent School | 0.42 KM | |
| Torquay Children'S Centre | Children's Centre | 0.61 KM | |
| Upton St James Cofe Primary School | Academy Converter | Good | 0.65 KM |
| Ellacombe Church Of England Academy | Academy Sponsor Led | Good | 0.87 KM |
Images
Nearby Streets
| Name | Average Price | Average Sqft | Distance |
|---|---|---|---|
| Saint Marychurch Road | £ 363,333 | 0 | 0.00 KM |
| Castle Circus Court | £ 295,000 | 0 | 0.00 KM |
| Banner Cross Steps | £ 350,000 | 0 | 0.00 KM |
| Briary Lane | £ 0 | 0 | 0.00 KM |
| Lansdowne Lane | £ 550,000 | 0 | 0.00 KM |
Nearby Transport
| Name | NLC | TLC | Distance |
|---|---|---|---|
| Torquay | 3434 | TQY | 1.30 KM |
| Torre | 3432 | TRR | 1.45 KM |
| Paignton | 3427 | PGN | 5.06 KM |
| Teignmouth | 3430 | TGM | 9.86 KM |
| Newton Abbot | 3426 | NTA | 9.88 KM |
Nearby Listings
| Address | Price | Type | Score | Distance |
|---|---|---|---|---|
| Torquay | £ 975,000 | BUY | 4 / 10 | 0.00 KM |
| Morgan Avenue, Torquay | £ 1,100,000 | BUY | 4 / 10 | 0.01 KM |
| Union Street, Torquay | £ 65,000 | BUY | 6 / 10 | 0.05 KM |
| Union Street, Torquay | £ 270,000 | BUY | 6 / 10 | 0.12 KM |
| 147 Union Street, Torquay, TQ1 4BT | £ 230,000 | BUY | Unknown | 0.12 KM |
Nearby Properties
| Address | Price | Distance |
|---|---|---|
| 3 Morgan Avenue | £ 113,500 | 0.01 KM |
| 7 Morgan Avenue | £ 85,000 | 0.01 KM |
| 21 Morgan Avenue | £ 800,000 | 0.01 KM |
| 13 Morgan Avenue | £ 147,000 | 0.01 KM |
| 178a Union Street | £ 45,000 | 0.04 KM |