Winchelsea Road, Eastbourne, East Sussex, BN22
By Freeman Forman
£ 812,000
Reviews
2 out of 5 stars
Freeman Forman says ..
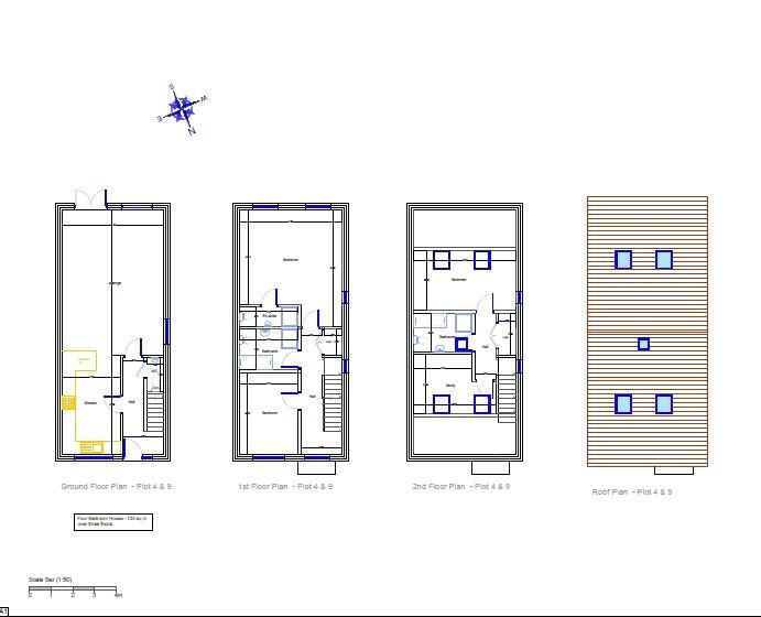
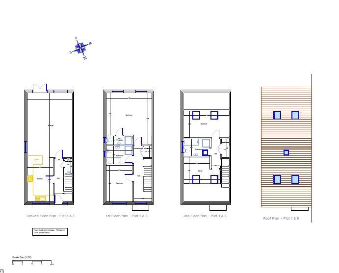
** EXCITING DEVELOPMENT OPPORTUNITY ** Discover Marshalls Yard, a prime development site in the heart of Eastbourne, just moments from the vibrant seafront. This exceptional opportunity comes with approved planning permission (Application Number: 250053 for the construction of 9 ...
Property Oracle says ..
The property on Winchelsea Road, Eastbourne, presents a unique opportunity for development. Currently, the site appears to be in a state of disrepair, requiring complete renovation or redevelopment. Its location offers proximity to local schools and amenities, but the immediate surroundings include commercial activity. The asking price of £812,000 seems high considering the work needed and comparable property values in the area. This property is best suited for an investor or developer willing to undertake a significant project.
Therefore, we give this property 4 / 10. *Disclaimer: This is our option and does constitute a recommendation or financial advice. Do your own research. *
- Price
- 4
- Condition
- 3
- Location
- 7
- Land
- 4
- Bedrooms
- 0
- Bathrooms
- 0
The heatmap indicates the level of crime in the area. The color of the heatmap indicates the crime severity and recency.
Metrics Year-on-Year
- Average area value
- 238,995.00 £Decreased by 14.36 %
- Average area rental value
- 991.00 £/moDecreased by 9.99 %
- Est rental Yield
- 4.98 %Increased by 5.29 %
- Crime Rate
- 13.00 %Unchanged by 0.00 %
Agent Activity
Freeman Forman created the listing.
Nearby Schools
| Name | Type | Ofsted | Distance |
|---|---|---|---|
| St Andrew'S Church Of England Infants School | Voluntary Controlled School | Good | 0.00 KM |
| Tollgate Community Junior School | Community School | Good | 0.82 KM |
| Roselands Infants' School | Academy Converter | 1.18 KM | |
| Anderida Learning Centre | Other Independent Special School | Good | 1.65 KM |
| Devonshire Children'S Centre | Children's Centre | 1.73 KM |
Images
Nearby Streets
| Name | Average Price | Average Sqft | Distance |
|---|---|---|---|
| Archery Lane | £ 299,950 | 0 | 0.00 KM |
| Myrtle Road | £ 282,500 | 0 | 0.00 KM |
| Fort Lane | £ 255,000 | 0 | 0.00 KM |
| Alexandra Road | £ 0 | 0 | 0.00 KM |
| Saint Anthony's Avenue | £ 0 | 0 | 0.00 KM |
Nearby Transport
| Name | NLC | TLC | Distance |
|---|---|---|---|
| Eastbourne | 5448 | EBN | 2.98 KM |
| Hampden Park (Sussex) | 5450 | HMD | 3.18 KM |
| Pevensey And Westham | 5461 | PEV | 4.30 KM |
| Pevensey Bay | 5462 | PEB | 5.73 KM |
| Polegate | 5455 | PLG | 7.85 KM |
Nearby Listings
| Address | Price | Type | Score | Distance |
|---|---|---|---|---|
| Winchelsea Road, Eastbourne, East Sussex, BN22 | £ 812,000 | BUY | 4 / 10 | 0.00 KM |
| Rye Street, Eastbourne | £ 210,000 | BUY | Unknown | 0.05 KM |
| 28 Rye Street, Eastbourne, East Sussex, BN22 7PN | £ 125,000 | BUY | 7 / 10 | 0.08 KM |
| Rye Street, Eastbourne, East Sussex | £ 175,000 | BUY | 7 / 10 | 0.09 KM |
| Winchelsea Road, Eastbourne | £ 855,000 | BUY | 8 / 10 | 0.12 KM |
Nearby Properties
| Address | Price | Distance |
|---|---|---|
| 9 Winchelsea Road | £ 185,000 | 0.00 KM |
| 3 Winchelsea Road | £ 181,500 | 0.00 KM |
| 7 Winchelsea Road | £ 240,000 | 0.00 KM |
| 13 Winchelsea Road | £ 165,500 | 0.00 KM |
| 15 Winchelsea Road | £ 240,000 | 0.00 KM |