Ashtons Estate Agents says ..
A charming and extended three-bedroom period terrace with a first-floor bathroom, situated in a quiet cul-de-sac in the heart of South Bank. Located on Argyle Street, this sought-after area is known for its strong sense of community, just off the award-winning Bishopthorpe Road with its fantastic...
Property Oracle says ..
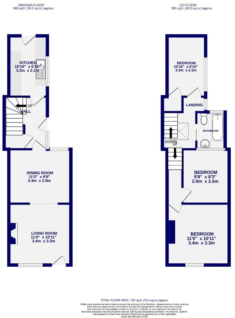
This three-bedroom terraced house in York is located on Argyle Street, in the Micklegate area. The property benefits from being close to several schools, including Millthorpe School (rated good by Ofsted) and Knavesmire Primary School, both within a 0.5km radius. York train station is also approximately 1.3km away, providing convenient access to transportation. The house itself appears to be in reasonable condition, though some modernisation might enhance its appeal. The kitchen and bathroom appear dated, and an update could increase the property’s value. The presence of a small, enclosed rear garden is a positive feature. While the list price of £280,000 is lower than the area average of £415,447, it’s important to consider that the average property size in the area is larger (973 sqft vs 760 sqft). The price per sqft is also slightly higher than the average. Considering the condition and size, the price seems relatively reasonable for the area, although a potential buyer may want to factor in costs for renovations to increase the value.
Therefore, we give this property 5 / 10. *Disclaimer: This is our option and does constitute a recommendation or financial advice. Do your own research. *
- Price
- 6
- Condition
- 6
- Location
- 7
- Land
- 3
- Bedrooms
- 3
- Bathrooms
- 1
- Sqft (est)
- 759.93
The heatmap indicates the level of crime in the area. The color of the heatmap indicates the crime severity and recency.
Metrics Year-on-Year
- Average area value
- 542,496.00 £Increased by 34.28 %
- Est sale value
- 317,650.74 £Increased by 33.55 %
- Average area rental value
- 1,435.00 £/moIncreased by 6.30 %
- Est letting value
- 759.93 £/moUnchanged by 0.00 %
- Est rental Yield
- 3.17 %Decreased by 20.95 %
- Crime Rate
- 7.00 %Unchanged by 0.00 %
Agent Activity
Ashtons Estate Agents created the listing.
Nearby Schools
| Name | Type | Ofsted | Distance |
|---|---|---|---|
| Millthorpe School | Academy Converter | Good | 0.33 KM |
| Knavesmire Children'S Centre | Children's Centre | 0.41 KM | |
| Knavesmire Primary School | Academy Converter | 0.41 KM | |
| Scarcroft Primary School | Academy Converter | 0.74 KM | |
| The Mount School (York) | Other Independent School | 0.89 KM |
Images
Nearby Streets
| Name | Average Price | Average Sqft | Distance |
|---|---|---|---|
| Knavesmire Road | £ 350,000 | 0 | 0.00 KM |
| Nunnery Lane | £ 0 | 0 | 0.00 KM |
| Drake Street | £ 180,000 | 0 | 0.00 KM |
| Bishopthorpe Road | £ 0 | 0 | 0.00 KM |
| Trinity Court | £ 282,500 | 0 | 0.00 KM |
Nearby Transport
| Name | NLC | TLC | Distance |
|---|---|---|---|
| York | 8263 | YRK | 1.28 KM |
| Poppleton | 8254 | POP | 7.04 KM |
Nearby Listings
| Address | Price | Type | Score | Distance |
|---|---|---|---|---|
| Argyle Street, York | £ 280,000 | BUY | 5 / 10 | 0.00 KM |
| Argyle Street, South Bank | £ 300,000 | BUY | Unknown | 0.01 KM |
| Hubert Street, South Bank, York YO23 1EF | £ 260,000 | BUY | 6 / 10 | 0.04 KM |
| Argyle Street, South Bank | £ 300,000 | BUY | 6 / 10 | 0.05 KM |
| Windsor Street, South Bank | £ 260,000 | BUY | 7 / 10 | 0.05 KM |
Nearby Properties
| Address | Price | Distance |
|---|---|---|
| 34 Argyle Street | £ 365,000 | 0.02 KM |
| 11 Argyle Street | £ 110,000 | 0.02 KM |
| 18 Argyle Street | £ 190,000 | 0.02 KM |
| 33 Argyle Street | £ 59,500 | 0.02 KM |
| 14 Argyle Street | £ 208,500 | 0.02 KM |