Osbornes says ..
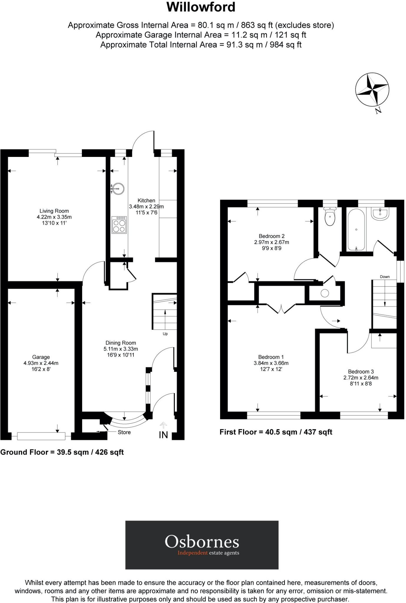
Nestled in a quiet residential area, this charming semi-detached home is perfect for families or those looking for ample living space and a cozy outdoor retreat. The property boasts a well-maintained front garden with a driveway leading to an integral garage, providing convenient parking and stor...
Property Oracle says ..
This three-bedroom, one-bathroom house in Yateley, Hampshire, is listed at £400,000. The property is situated in a seemingly convenient location, close to good schools, and with train stations within a reasonable distance, this could be appealing to families. The images show the property to be a semi-detached house and suggest the house may need updating. The interiors appear relatively well maintained, but the decor and fittings appear to be dated, so potential buyers would likely need to factor in renovation costs. While a garden is present, its size and state of upkeep are moderate and could benefit from landscaping. The overall price seems reasonable in context of similar properties in the area but lacks detailed comparable square footage pricing which would make a more robust assessment possible. Potential buyers should conduct a thorough property inspection and valuation to make an informed decision considering additional costs that may be involved with improvements. The available information however suggests a moderately-priced home in a desirable location that requires some modernisation.
Therefore, we give this property 6 / 10. *Disclaimer: This is our option and does constitute a recommendation or financial advice. Do your own research. *
- Price
- 7
- Condition
- 6
- Location
- 7
- Land
- 4
- Bedrooms
- 3
- Bathrooms
- 1
- Sqft (est)
- 982.75
The heatmap indicates the level of crime in the area. The color of the heatmap indicates the crime severity and recency.
Metrics Year-on-Year
- Average area value
- 453,750.00 £Decreased by 10.46 %
- Est sale value
- 488,426.75 £Decreased by 1.78 %
- Average area rental value
- 1,675.00 £/moDecreased by 47.29 %
- Est letting value
- 982.75 £/moDecreased by 66.67 %
- Est rental Yield
- 4.43 %Decreased by 41.17 %
- Crime Rate
- 10.00 %Unchanged by 0.00 %
Agent Activity
Osbornes created the listing.
Nearby Schools
| Name | Type | Ofsted | Distance |
|---|---|---|---|
| Yateley Manor School | Other Independent School | 0.54 KM | |
| Cranford Park Primary | Voluntary Controlled School | Good | 0.57 KM |
| Yateley School | Community School | Good | 0.82 KM |
| Woodlark And Water Lilies Children'S Centre | Children's Centre | 0.82 KM | |
| Newlands Primary School | Community School | Good | 0.87 KM |
Images
Nearby Streets
| Name | Average Price | Average Sqft | Distance |
|---|---|---|---|
| St Peter's Gardens | £ 475,000 | 0 | 0.00 KM |
| The Crescent | £ 0 | 0 | 0.00 KM |
| Wyndham Close | £ 550,000 | 0 | 0.00 KM |
| Nutley Close | £ 500,000 | 0 | 0.00 KM |
| Blackbushe Park | £ 0 | 0 | 0.00 KM |
Nearby Transport
| Name | NLC | TLC | Distance |
|---|---|---|---|
| Sandhurst (Berks) | 5646 | SND | 2.88 KM |
| Crowthorne | 5628 | CRN | 3.13 KM |
| Fleet | 5522 | FLE | 5.57 KM |
| Blackwater | 5625 | BAW | 5.96 KM |
| Wokingham | 5696 | WKM | 7.98 KM |
Nearby Listings
| Address | Price | Type | Score | Distance |
|---|---|---|---|---|
| Willowford, Yateley, GU46 | £ 400,000 | BUY | 6 / 10 | 0.00 KM |
| Willowford, Yateley, GU46 | £ 475,000 | BUY | 7 / 10 | 0.03 KM |
| Willowford, Yateley | £ 425,000 | BUY | 7 / 10 | 0.07 KM |
| Willowford, Yateley, Hampshire, GU46 | £ 440,000 | BUY | 6 / 10 | 0.08 KM |
| Tindal Close, Yateley, GU46 | £ 800,000 | BUY | 6 / 10 | 0.10 KM |
Nearby Properties
| Address | Price | Distance |
|---|---|---|
| 14 Willowford | £ 245,000 | 0.01 KM |
| 30 Willowford | £ 230,000 | 0.01 KM |
| 17 Willowford | £ 249,950 | 0.01 KM |
| 1 Willowford | £ 315,000 | 0.01 KM |
| 32 Willowford | £ 210,000 | 0.01 KM |