Barryfields, Shalford, Braintree
Daniel Brewer Estate Agents logo

Barryfields, Shalford, Braintree

By Daniel Brewer Estate Agents

£ 375,000

Reviews

3 out of 5 stars

Daniel Brewer Estate Agents says ..

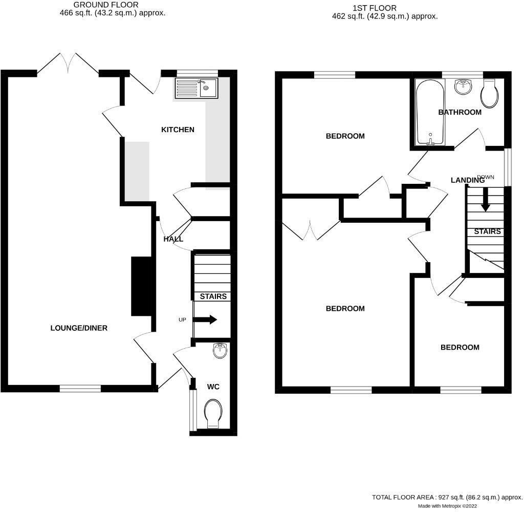
Daniel Brewer are pleased to offer this three bedroom semi-detached family home located in the desirable village of 'Shalford'. In brief the accommodation on the ground floor comprises:- entrance hall, cloakroom, lounge/dining room, and a kitchen. On the first floor there are three bedrooms and a...

Property Oracle says ..

This is a three-bedroom semi-detached property located in Barryfields, Shalford, Braintree. The house appears to be in good condition, with a modern kitchen and bathroom. It benefits from a garden with a patio area. The property is located within a reasonable distance of Shalford Primary School. The nearest train station is 9.10KM away in Braintree. The asking price of £375,000 seems reasonable for the area and the condition of the property. It would be ideally suited to a young family.

Therefore, we give this property 6 / 10. *Disclaimer: This is our option and does constitute a recommendation or financial advice. Do your own research. *

Price
7
Condition
7
Location
6
Land
6
Bedrooms
3
Bathrooms
1

The heatmap indicates the level of crime in the area. The color of the heatmap indicates the crime severity and recency.

Metrics Year-on-Year

Average area value
503,333.00 £
Decreased by 23.15 %
from 654,985.00 £
Average area rental value
2,825.00 £/mo
Increased by 41.25 %
from 2,000.00 £/mo
Est rental Yield
6.74 %
Increased by 84.15 %
from 3.66 %
Crime Rate
267.00 %
Unchanged by 0.00 %
from 267.00 %

Agent Activity

  • Daniel Brewer Estate Agents created the listing.

Nearby Schools

NameTypeOfstedDistance
Shalford Primary SchoolAcademy Sponsor LedGood1.30 KM
Wethersfield Cofe Vc Primary SchoolVoluntary Controlled SchoolGood2.53 KM
Finchingfield St John The Baptist Cofe Primary AcademyAcademy Converter6.16 KM
Rayne Primary And Nursery SchoolAcademy Sponsor Led6.42 KM
The Edith Borthwick SchoolCommunity Special SchoolGood6.77 KM

Images

825A0023.jpg 825A0013.jpg 825A0143.jpg 825A0163.jpg 825A0038.jpg 825A0053.jpg 825A0063.jpg 825A0088.jpg 825A0093.jpg 825A0108.jpg 825A0113.jpg 825A0128.jpg 825A0148.jpg 825A0158.jpg 825A9972.jpg 825A9952.jpg 825A9967.jpg 825A9977.jpg 825A9987.jpg 825A9997.jpg

Nearby Streets

NameAverage PriceAverage SqftDistance
Hulls Lane £ 000.00 KM
Redfants Farm Road £ 000.00 KM

Nearby Transport

NameNLCTLCDistance
Braintree6801BTR9.10 KM

Nearby Listings

AddressPriceTypeScoreDistance
Barryfields, Shalford, Braintree £ 375,000BUY6 / 100.00 KM
Barryfields, Shalford, Braintree £ 550,000BUY7 / 100.01 KM
Barryfields, Shalford, Braintree £ 425,000BUY7 / 100.12 KM
Barryfields, Shalford £ 360,000BUY7 / 100.12 KM
Barryfields, Shalford, Braintree, Essex, CM7 £ 550,000BUY7 / 100.12 KM

Nearby Properties

AddressPriceDistance
Maudsleys £ 242,0000.06 KM
3 Cliff Cottages £ 298,0000.06 KM
22 Barryfields £ 300,0000.12 KM
25 Barryfields £ 250,0000.12 KM
16 Barryfields £ 120,0000.12 KM