Whitefoot Lane, Bromley, BR1
By Daniels Property Services
£ 450,000
Reviews
3 out of 5 stars
Daniels Property Services says ..
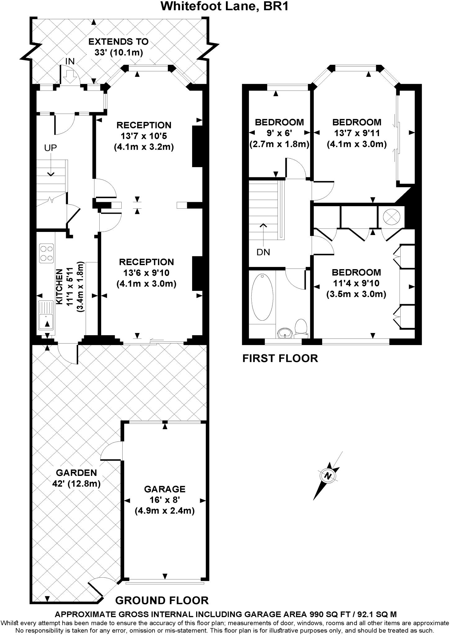
Daniels Estate Agents are pleased to present this three-bedroom mid-terrace house on the popular Whitefoot Lane, BR1, offering excellent space, great potential, and no onward chain. The ground floor features a large through reception room, providing a generous dining and living area, a...
Property Oracle says ..
This is a three-bedroom terraced house on Whitefoot Lane, Bromley. The property benefits from its location, with nearby schools and transportation links. However, the house requires significant renovation and modernisation, particularly in the kitchen and bathroom. The property includes a garden, which adds to its appeal. While the asking price is slightly above the average price per square foot for the area, the potential to add value through renovation makes it a worthwhile consideration.
Therefore, we give this property 6 / 10. *Disclaimer: This is our option and does constitute a recommendation or financial advice. Do your own research. *
- Price
- 7
- Condition
- 4
- Location
- 7
- Land
- 6
- Bedrooms
- 3
- Bathrooms
- 1
- Sqft (est)
- 990.00
The heatmap indicates the level of crime in the area. The color of the heatmap indicates the crime severity and recency.
Metrics Year-on-Year
- Average area value
- 323,750.00 £Decreased by 24.60 %
- Est sale value
- 429,660.00 £Decreased by 11.43 %
- Average area rental value
- 1,700.00 £/moDecreased by 5.97 %
- Est letting value
- 1,980.00 £/moUnchanged by 0.00 %
- Est rental Yield
- 6.30 %Increased by 24.75 %
- Crime Rate
- 2.00 %Unchanged by 0.00 %
Agent Activity
Daniels Property Services created the listing.
Nearby Schools
| Name | Type | Ofsted | Distance |
|---|---|---|---|
| New Woodlands School | Community Special School | Good | 0.35 KM |
| Downderry Children'S Centre | Children's Centre | 0.39 KM | |
| Downderry Primary School | Community School | Outstanding | 0.39 KM |
| Bonus Pastor Catholic College | Voluntary Aided School | Outstanding | 0.56 KM |
| Forster Park Primary School | Community School | Good | 0.57 KM |
Images
Nearby Streets
| Name | Average Price | Average Sqft | Distance |
|---|---|---|---|
| Excalibur Drive | £ 380,000 | 0 | 0.00 KM |
| Oakridge Lane | £ 0 | 0 | 0.00 KM |
| Greenside Close | £ 450,000 | 0 | 0.00 KM |
| Connisborough Crescent | £ 0 | 0 | 0.00 KM |
| Merlinmead | £ 0 | 0 | 0.00 KM |
Nearby Transport
| Name | NLC | TLC | Distance |
|---|---|---|---|
| Beckenham Hill | 5076 | BEC | 1.84 KM |
| Bellingham | 5062 | BGM | 2.05 KM |
| Ravensbourne | 5083 | RVB | 2.07 KM |
| Hither Green | 5107 | HGR | 2.28 KM |
| Grove Park | 5139 | GRP | 2.50 KM |
Nearby Listings
| Address | Price | Type | Score | Distance |
|---|---|---|---|---|
| Whitefoot Lane, Bromley, BR1 | £ 450,000 | BUY | 6 / 10 | 0.00 KM |
| Whitefoot Lane, BROMLEY, Kent, BR1 | £ 550,000 | BUY | 6 / 10 | 0.00 KM |
| Whitefoot Lane, Bromley, BR1 | £ 500,000 | BUY | 7 / 10 | 0.04 KM |
| Whitefoot Lane, Bromley | £ 475,000 | BUY | 6 / 10 | 0.05 KM |
| Waters Road, Catford, London, SE6 | £ 450,000 | BUY | 7 / 10 | 0.05 KM |
Nearby Properties
| Address | Price | Distance |
|---|---|---|
| 212 Whitefoot Lane | £ 322,000 | 0.00 KM |
| 272 Whitefoot Lane | £ 230,000 | 0.00 KM |
| 246 Whitefoot Lane | £ 230,000 | 0.00 KM |
| 254 Whitefoot Lane | £ 308,000 | 0.00 KM |
| 234 Whitefoot Lane | £ 315,000 | 0.00 KM |