Sinton Andrews says ..
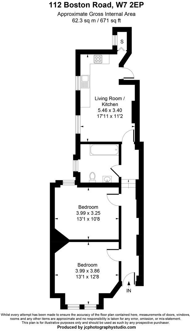
A spacious and superbly presented, 2 bedroom lower ground floor period maisonette, with it's own entrance and a garden, in this convenient location bordering popular Old Hanwell. Within easy reach of Hanwell Station for the Elizabeth Line and attractively offered chain free.
Property Oracle says ..
Therefore, we give this property 7 / 10. *Disclaimer: This is our option and does constitute a recommendation or financial advice. Do your own research. *
- Price
- 9
- Condition
- 8
- Location
- 8
- Land
- 6
- Bedrooms
- 2
- Bathrooms
- 1
- Sqft (est)
- 670.59
The heatmap indicates the level of crime in the area. The color of the heatmap indicates the crime severity and recency.
Metrics Year-on-Year
- Average area value
- 526,250.00 £Increased by 3.90 %
- Est sale value
- 535,801.41 £Increased by 15.30 %
- Average area rental value
- 1,876.00 £/moIncreased by 3.25 %
- Est letting value
- 1,341.18 £/moUnchanged by 0.00 %
- Est rental Yield
- 4.28 %Decreased by 0.47 %
- Crime Rate
- 17.00 %Unchanged by 0.00 %
from 506,498.00 £
from 464,718.87 £
from 1,817.00 £/mo
from 1,341.18 £/mo
from 4.30 %
from 17.00 %
Agent Activity
Sinton Andrews marked this listing as sold.
Sinton Andrews created the listing.
Nearby Schools
| Name | Type | Ofsted | Distance |
|---|---|---|---|
| Oaklands Primary School | Community School | Good | 0.40 KM |
| St Mark'S Primary School | Community School | Good | 0.69 KM |
| St Joseph'S Catholic Primary School | Voluntary Aided School | Good | 0.74 KM |
| Elthorne Park High School | Community School | Outstanding | 0.78 KM |
| St Ann'S School | Community Special School | Outstanding | 0.80 KM |
Images
Nearby Streets
| Name | Average Price | Average Sqft | Distance |
|---|---|---|---|
| Rosedale Close | £ 0 | 0 | 0.00 KM |
| Edinburgh Road | £ 799,950 | 0 | 0.00 KM |
| Boston Road | £ 0 | 0 | 0.00 KM |
| Belvedere Road | £ 0 | 0 | 0.00 KM |
| Middle Road | £ 0 | 0 | 0.00 KM |
Nearby Transport
| Name | NLC | TLC | Distance |
|---|---|---|---|
| Hanwell | 3191 | HAN | 0.90 KM |
| Drayton Green | 3099 | DRG | 1.43 KM |
| West Ealing | 3188 | WEA | 1.90 KM |
| Castle Bar Park | 3098 | CBP | 2.07 KM |
| Syon Lane | 5609 | SYL | 2.78 KM |
Nearby Listings
| Address | Price | Type | Score | Distance |
|---|---|---|---|---|
| Boston Road, Hanwell | £ 349,950 | BUY | 7 / 10 | 0.00 KM |
| Boston Road, Hanwell | £ 325,000 | BUY | 7 / 10 | 0.01 KM |
| Boston Road, Hanwell, W7 | £ 399,950 | BUY | Unknown | 0.02 KM |
| Humes Avenue, Hanwell, W7 | £ 825,000 | BUY | 6 / 10 | 0.06 KM |
| Cambridge Road, Hanwell | £ 650,000 | BUY | 6 / 10 | 0.08 KM |
Nearby Properties
| Address | Price | Distance |
|---|---|---|
| 114c Boston Road | £ 170,000 | 0.02 KM |
| 110c Boston Road | £ 195,000 | 0.02 KM |
| 124 Boston Road | £ 67,000 | 0.02 KM |
| 116 Boston Road | £ 397,500 | 0.02 KM |
| 110a Boston Road | £ 195,000 | 0.02 KM |