Renown Street, Plymouth, PL2 2DF
By Champion Stuart
£ 160,000
Reviews
2 out of 5 stars
Champion Stuart says ..
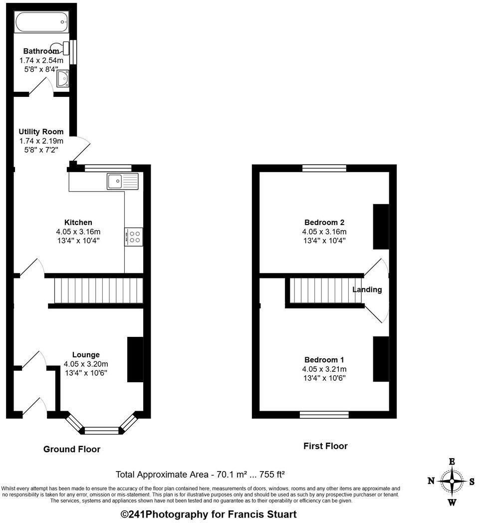
Renown Street is a well-located two-bedroom terrace in Keyham, close to the Dockyard. Featuring a lounge, spacious kitchen & utility area ground floor bathroom, and two double bedrooms. Benefits include gas central heating, double glazing, and a private rear courtyard. Currently rented but...
Property Oracle says ..
This is a two-bedroom terraced house located on Renown Street in Plymouth. The property is situated in a convenient location, close to local amenities, schools, and transportation links. Keyham Barton Catholic Primary School is within walking distance. The property itself requires some renovation, as the interior shows signs of wear and tear and the decor is dated. The house includes a small outdoor space. The listing price of £160,000 is below the average for the area, reflecting the condition of the property and offering potential for value appreciation through renovation.
Therefore, we give this property 5 / 10. *Disclaimer: This is our option and does constitute a recommendation or financial advice. Do your own research. *
- Price
- 7
- Condition
- 4
- Location
- 7
- Land
- 3
- Bedrooms
- 2
- Bathrooms
- 1
- Sqft (est)
- 754.55
The heatmap indicates the level of crime in the area. The color of the heatmap indicates the crime severity and recency.
Metrics Year-on-Year
- Average area value
- 177,475.00 £Decreased by 2.93 %
- Est sale value
- 147,891.80 £Decreased by 10.50 %
- Average area rental value
- 1,174.00 £/moIncreased by 51.48 %
- Est letting value
- 754.55 £/mo
- Est rental Yield
- 7.94 %Increased by 55.99 %
- Crime Rate
- 7.00 %Unchanged by 0.00 %
Agent Activity
Champion Stuart created the listing.
Nearby Schools
| Name | Type | Ofsted | Distance |
|---|---|---|---|
| Keyham Barton Catholic Primary School | Academy Converter | Good | 0.17 KM |
| Drake Primary Academy | Academy Converter | Good | 0.36 KM |
| Weston Mill Community Primary Academy | Academy Converter | Good | 0.50 KM |
| College Road Primary School | Foundation School | Good | 0.89 KM |
| Morice Town Children'S Centre | Children's Centre | 1.10 KM |
Images
Nearby Streets
| Name | Average Price | Average Sqft | Distance |
|---|---|---|---|
| Second Avenue | £ 145,000 | 0 | 0.00 KM |
| Drummond Close | £ 190,000 | 0 | 0.00 KM |
| Bridwell Lane North | £ 0 | 0 | 0.00 KM |
| Sennen Place | £ 250,000 | 0 | 0.00 KM |
| Herbert Street | £ 0 | 0 | 0.00 KM |
Nearby Transport
| Name | NLC | TLC | Distance |
|---|---|---|---|
| Keyham | 3571 | KEY | 0.25 KM |
| Dockyard (Devonport) | 3588 | DOC | 1.06 KM |
| St Budeaux Ferry Road | 3590 | SBF | 1.47 KM |
| St Budeaux Victoria Road | 3592 | SBV | 1.56 KM |
| Devonport | 3579 | DPT | 1.65 KM |
Nearby Listings
| Address | Price | Type | Score | Distance |
|---|---|---|---|---|
| Renown Street, Plymouth, PL2 2DF | £ 160,000 | BUY | 5 / 10 | 0.00 KM |
| Renown Street, Keyham, Plymouth, PL2 | £ 180,000 | BUY | 5 / 10 | 0.00 KM |
| Renown Street, Plymouth | £ 170,000 | BUY | 6 / 10 | 0.01 KM |
| Victory Street, Plymouth | £ 190,000 | BUY | 6 / 10 | 0.04 KM |
| Victory Street, PLYMOUTH, Devon, PL2 | £ 170,000 | BUY | 6 / 10 | 0.04 KM |
Nearby Properties
| Address | Price | Distance |
|---|---|---|
| 5 Renown Street | £ 90,000 | 0.01 KM |
| 26 Renown Street | £ 117,000 | 0.01 KM |
| 52 Renown Street | £ 81,000 | 0.01 KM |
| 23 Renown Street | £ 180,000 | 0.01 KM |
| 27 Renown Street | £ 125,000 | 0.01 KM |