Andrew Pearce says ..
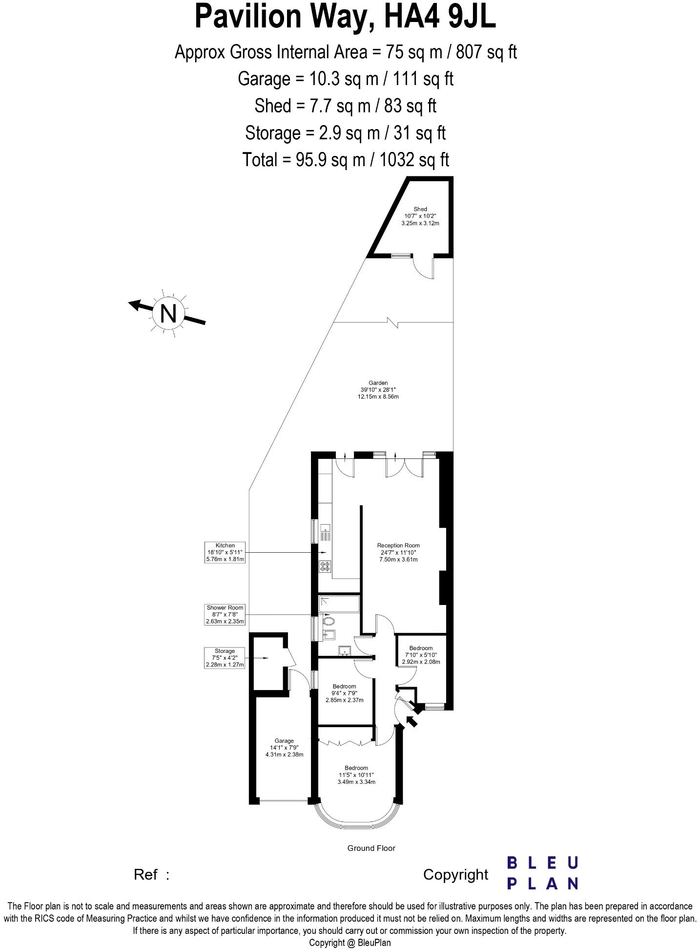
Discover this extended three-bedroom semi-detached bungalow in Ruislip, offering spacious living, potential for further expansion, and a prime location near amenities.
Property Oracle says ..
This is a 3-bedroom semi-detached bungalow in Ruislip, Greater London. The property boasts a large square footage, a modern kitchen and bathroom, and a well-maintained garden. While some rooms could benefit from modernisation, the property is generally in good condition. The location is convenient, with nearby schools and transportation links. The asking price is higher than the average for the area, but this is likely due to the property’s larger size.
Therefore, we give this property 7 / 10. *Disclaimer: This is our option and does constitute a recommendation or financial advice. Do your own research. *
- Price
- 6
- Condition
- 7
- Location
- 7
- Land
- 8
- Bedrooms
- 3
- Bathrooms
- 1
- Sqft (est)
- 2,105.56
The heatmap indicates the level of crime in the area. The color of the heatmap indicates the crime severity and recency.
Metrics Year-on-Year
- Average area value
- 530,000.00 £Increased by 14.03 %
- Est sale value
- 1,166,480.24 £Increased by 16.14 %
- Average area rental value
- 1,816.00 £/moDecreased by 11.93 %
- Est letting value
- 2,105.56 £/moDecreased by 50.00 %
- Est rental Yield
- 4.11 %Decreased by 22.74 %
- Crime Rate
- 2.00 %Unchanged by 0.00 %
Agent Activity
Andrew Pearce created the listing.
Nearby Schools
| Name | Type | Ofsted | Distance |
|---|---|---|---|
| Newnham Junior School | Community School | Outstanding | 0.71 KM |
| Newnham Infant And Nursery School | Community School | Good | 0.71 KM |
| St Swithun Wells Catholic Primary School | Voluntary Aided School | Outstanding | 0.84 KM |
| Field End Infant School | Community School | Outstanding | 1.02 KM |
| Field End Junior School | Academy Converter | 1.02 KM |
Images
Nearby Streets
| Name | Average Price | Average Sqft | Distance |
|---|---|---|---|
| Broadhurst Gardens | £ 0 | 0 | 0.00 KM |
| Whitby Service Road | £ 535,000 | 0 | 0.00 KM |
| Garth Close | £ 0 | 0 | 0.00 KM |
| Ryan Close | £ 825,000 | 0 | 0.00 KM |
| Cat Alley | £ 0 | 0 | 0.00 KM |
Nearby Transport
| Name | NLC | TLC | Distance |
|---|---|---|---|
| South Ruislip | 3057 | SRU | 1.45 KM |
| Northolt Park | 1478 | NLT | 4.39 KM |
| West Ruislip | 3059 | WRU | 4.49 KM |
| Hatch End | 1398 | HTE | 5.43 KM |
| Headstone Lane | 1434 | HDL | 5.74 KM |
Nearby Listings
| Address | Price | Type | Score | Distance |
|---|---|---|---|---|
| Pavilion Way, Ruislip | £ 739,950 | BUY | 7 / 10 | 0.00 KM |
| Greencroft Avenue, Ruislip, HA4 | £ 600,000 | BUY | Unknown | 0.07 KM |
| Pavilion Way, Ruislip | £ 600,000 | BUY | 6 / 10 | 0.10 KM |
| Pavilion Way, Ruislip, HA4 | £ 725,000 | BUY | 7 / 10 | 0.10 KM |
| Pavilion Way, Ruislip | £ 550,000 | BUY | 6 / 10 | 0.12 KM |
Nearby Properties
| Address | Price | Distance |
|---|---|---|
| 4 Greencroft Avenue | £ 625,000 | 0.10 KM |
| 24 Greencroft Avenue | £ 657,000 | 0.10 KM |
| 16 Greencroft Avenue | £ 665,000 | 0.10 KM |
| 30 Greencroft Avenue | £ 691,000 | 0.10 KM |
| 20 Greencroft Avenue | £ 437,000 | 0.10 KM |