Sceon + Berne says ..
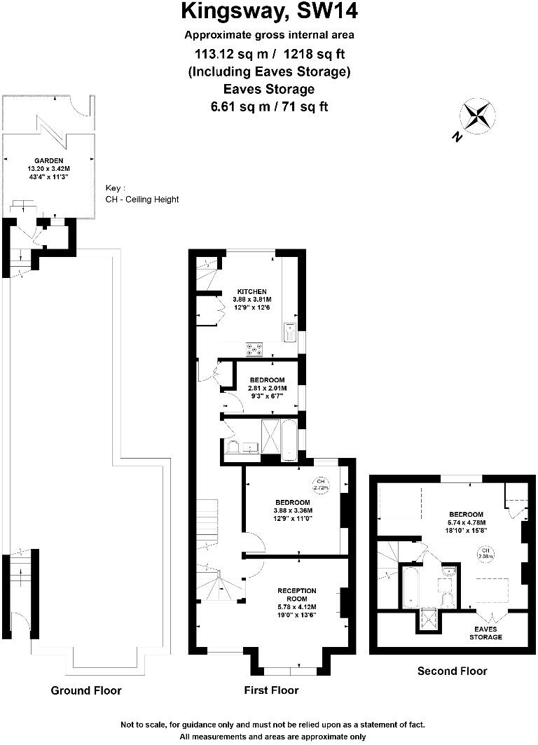
*OPEN HOUSE SAT 22nd FEB - Please call/email to book* A gorgeous loft converted three bedroom, two bathroom first-floor maisonette presented in excellent order. The property has been thoughtfully remodelled featuring a stunning kitchen/breakfast room and contemporary modern bathroom.
Property Oracle says ..
This property is a 3 bedroom, 2 bathroom maisonette located in the Kingsway area of North Richmond, Richmond Upon Thames. Based on the provided images, the property appears to be well-maintained and recently renovated, with a modern kitchen and bathrooms. The property benefits from a private garden. The location is desirable, with nearby transportation links and schools. However, without further details on pricing per square foot in the area, a definitive assessment of the price is difficult.
Therefore, we give this property 7 / 10. *Disclaimer: This is our option and does constitute a recommendation or financial advice. Do your own research. *
- Price
- 7
- Condition
- 9
- Location
- 8
- Land
- 7
- Bedrooms
- 3
- Bathrooms
- 2
- Sqft (est)
- 1,469.28
- Lot (est)
- 1,217.61
The heatmap indicates the level of crime in the area. The color of the heatmap indicates the crime severity and recency.
Metrics Year-on-Year
- Average area value
- 1,108,545.00 £Increased by 17.50 %
- Est sale value
- 1,376,715.36 £Increased by 13.03 %
- Average area rental value
- 3,071.00 £/moDecreased by 23.99 %
- Est letting value
- 2,938.56 £/moDecreased by 33.33 %
- Est rental Yield
- 3.32 %Decreased by 35.41 %
- Crime Rate
- 9.00 %Unchanged by 0.00 %
Agent Activity
Sceon + Berne created the listing.
Nearby Schools
| Name | Type | Ofsted | Distance |
|---|---|---|---|
| Mortlake Hall Children'S Centre | Children's Centre Linked Site | 0.43 KM | |
| Sheen Mount Primary School | Community School | Outstanding | 0.71 KM |
| Kew Riverside Primary School | Community School | Good | 0.77 KM |
| Tower House School | Other Independent School | 0.96 KM | |
| Thomson House School | Free Schools | Outstanding | 1.00 KM |
Images
Nearby Streets
| Name | Average Price | Average Sqft | Distance |
|---|---|---|---|
| Rutland Close | £ 1,000,000 | 0 | 0.00 KM |
| Chestnut Mews | £ 0 | 0 | 0.00 KM |
| Canberra Place | £ 440,000 | 0 | 0.00 KM |
| Cranleigh Court | £ 0 | 0 | 0.00 KM |
| Firs Avenue | £ 0 | 0 | 0.00 KM |
Nearby Transport
| Name | NLC | TLC | Distance |
|---|---|---|---|
| Mortlake | 5600 | MTL | 0.91 KM |
| North Sheen | 5601 | NSH | 1.41 KM |
| Kew Gardens | 5594 | KWG | 1.52 KM |
| Chiswick | 5583 | CHK | 1.74 KM |
| Barnes Bridge | 5580 | BNI | 2.56 KM |
Nearby Listings
| Address | Price | Type | Score | Distance |
|---|---|---|---|---|
| Kingsway, SW14 | £ 765,000 | BUY | 7 / 10 | 0.00 KM |
| Kingsway, SW14 | £ 750,000 | BUY | 8 / 10 | 0.01 KM |
| Kingsway, East Sheen, SW14 | £ 700,000 | BUY | 8 / 10 | 0.01 KM |
| Kingsway, East Sheen, SW14 | £ 650,000 | BUY | 7 / 10 | 0.01 KM |
| Kingsway, East Sheen, SW14 | £ 735,000 | BUY | 8 / 10 | 0.02 KM |
Nearby Properties
| Address | Price | Distance |
|---|---|---|
| 123 Kingsway | £ 342,000 | 0.03 KM |
| 73 Kingsway | £ 235,000 | 0.03 KM |
| 129 Kingsway | £ 1,008,000 | 0.03 KM |
| 91 Kingsway | £ 618,750 | 0.03 KM |
| 93 Kingsway | £ 710,000 | 0.03 KM |