Grove Cottages, Stanningfield Road
By Martin & Co
£ 290,000
Reviews
3 out of 5 stars
Martin & Co says ..
Looking for a home with potential in a stunning countryside setting? This 3-bedroom semi-detached house is chain-free and ready for a new owner to add their personal touch—backing onto rolling countryside for breathtaking views! Just 10 minutes South Of Bury St Edmunds. A must view! Call t...
Property Oracle says ..
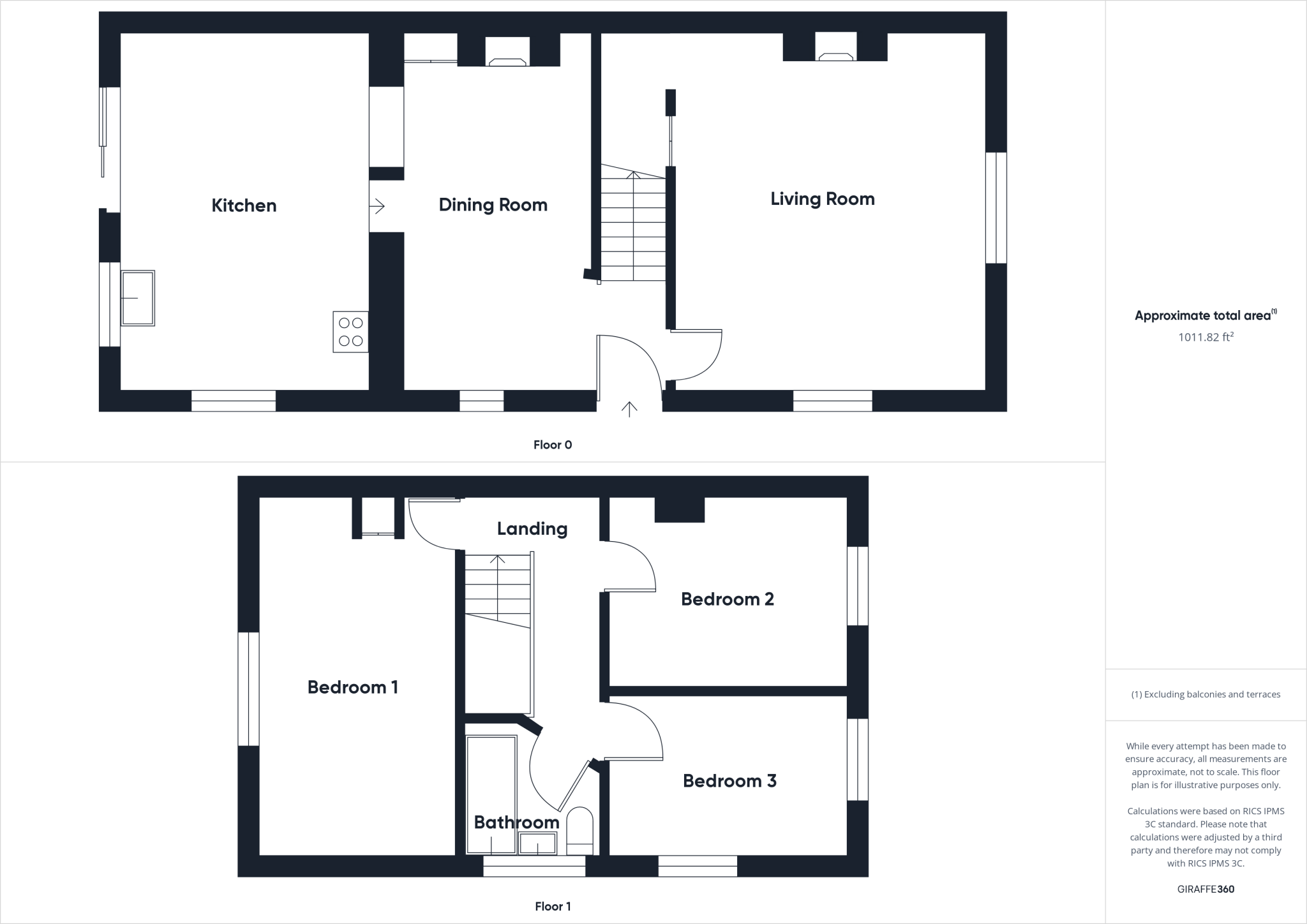
This property is a 3-bedroom house located in Horringer, West Suffolk. It is listed at £290,000 and has 890 sqft of living space and a plot size of 1,011.82 sqft. The property appears to be in reasonable condition, though some updating may be desirable. The location is rural, with nearby schools and train stations in Bury St Edmunds, approximately 7.71 km away. The average house price in the area is £234,748, with an average price per sqft of £278. Considering the condition, location, and land size, the list price seems slightly above average but not unreasonable given the limited information on comparable properties.
Therefore, we give this property 6 / 10. *Disclaimer: This is our option and does constitute a recommendation or financial advice. Do your own research. *
- Price
- 6
- Condition
- 7
- Location
- 6
- Land
- 7
- Bedrooms
- 3
- Bathrooms
- 1
- Sqft (est)
- 890.00
- Lot (est)
- 1,011.82
The heatmap indicates the level of crime in the area. The color of the heatmap indicates the crime severity and recency.
Metrics Year-on-Year
- Average area value
- 223,188.00 £Decreased by 13.36 %
- Est sale value
- 279,460.00 £Decreased by 2.48 %
- Average area rental value
- 1,283.00 £/moIncreased by 2.15 %
- Est letting value
- 890.00 £/moUnchanged by 0.00 %
- Est rental Yield
- 6.90 %Increased by 17.95 %
- Crime Rate
- 0.00 %
Agent Activity
Martin & Co marked this listing as sold.
Martin & Co created the listing.
Nearby Schools
| Name | Type | Ofsted | Distance |
|---|---|---|---|
| Great Whelnetham Church Of England Primary School | Academy Sponsor Led | 0.91 KM | |
| Riverwalk School | Academy Special Converter | 4.62 KM | |
| South Lee School | Other Independent School | 4.65 KM | |
| All Saints' Church Of England Voluntary Controlled Primary School, Lawshall | Voluntary Controlled School | Outstanding | 4.68 KM |
| Hardwick Children'S Centre | Children's Centre | 5.08 KM |
Images
Nearby Transport
| Name | NLC | TLC | Distance |
|---|---|---|---|
| Bury St Edmunds | 7008 | BSE | 7.71 KM |
| Thurston | 7356 | TRS | 9.53 KM |
Nearby Listings
| Address | Price | Type | Score | Distance |
|---|---|---|---|---|
| Grove Cottages, Stanningfield Road | £ 290,000 | BUY | 6 / 10 | 0.00 KM |
| Stanningfield Road, Gt Whelnetham | £ 100,000 | BUY | 5 / 10 | 0.00 KM |
| Bury Road, Stanningfield | £ 700,000 | BUY | Unknown | 1.13 KM |
| Great Whelnetham, Suffolk | £ 375,000 | BUY | 5 / 10 | 1.38 KM |
| Tutelina Road, Great Whelnetham | £ 350,000 | BUY | 7 / 10 | 1.56 KM |
Nearby Properties
| Address | Price | Distance |
|---|---|---|
| Highlands | £ 516,500 | 1.18 KM |
| Valley View | £ 500,000 | 1.18 KM |
| Casa Sogno | £ 565,000 | 1.49 KM |
| Red Gates | £ 275,000 | 1.49 KM |
| Brook View | £ 205,000 | 1.59 KM |