Jasmin Close, Northwood
GI

Jasmin Close, Northwood

By Gibbs Gillespie

£ 250,000

Reviews

3 out of 5 stars

Gibbs Gillespie says ..

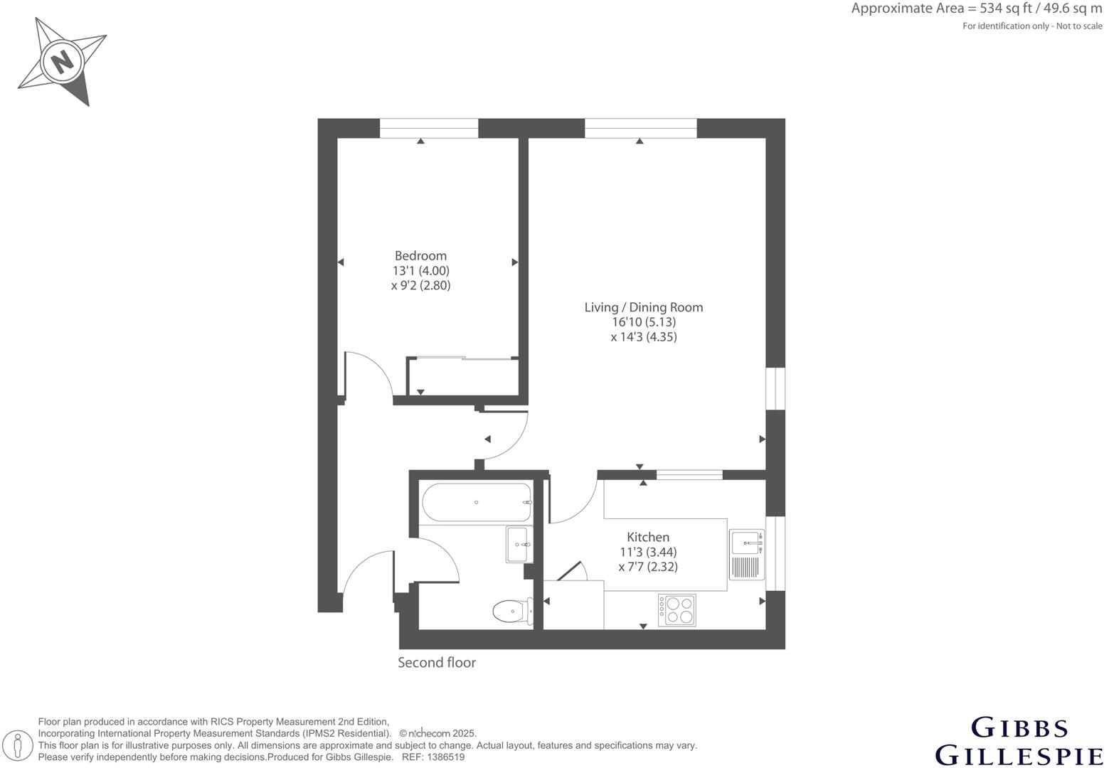
This well-presented one double bedroom second floor apartment offers thoughtfully designed living space. Perfect for both first-time buyers and investors alike. The property comprises of a well-proportioned living/dining area that provides a bright and comfortable space for relaxation....

Property Oracle says ..

This is a one-bedroom apartment located in Jasmin Close, Northwood Hills. The property is in good condition and benefits from a shared garden. The property is located close to good schools and transport links. The property is listed for £250,000, which is slightly above the average price for similar properties in the area. Overall, this property would be ideal for a first-time buyer or investor looking for a well-maintained property in a convenient location.

Therefore, we give this property 7 / 10. *Disclaimer: This is our option and does constitute a recommendation or financial advice. Do your own research. *

Price
8
Condition
7
Location
7
Land
6
Bedrooms
1
Bathrooms
1
Sqft (est)
534.00

The heatmap indicates the level of crime in the area. The color of the heatmap indicates the crime severity and recency.

Metrics Year-on-Year

Average area value
912,500.00 £
Increased by 33.67 %
from 682,668.00 £
Est sale value
178,356.00 £
Decreased by 42.91 %
from 312,390.00 £
Average area rental value
2,120.00 £/mo
Increased by 2.61 %
from 2,066.00 £/mo
Est letting value
0.00 £/mo
Decreased by 100.00 %
from 534.00 £/mo
Est rental Yield
2.79 %
Decreased by 23.14 %
from 3.63 %
Crime Rate
5.00 %
Unchanged by 0.00 %
from 5.00 %

Agent Activity

  • Gibbs Gillespie created the listing.

Nearby Schools

NameTypeOfstedDistance
Hillside Infant SchoolFoundation SchoolGood0.68 KM
Hillside Junior SchoolFoundation SchoolGood0.68 KM
Northwood SchoolAcademy ConverterOutstanding0.88 KM
Utc HeathrowUniversity Technical College0.94 KM
Haydon SchoolAcademy Converter0.95 KM

Images

1386519-1-69301b1... 1386519-14-69301c... 1386519-13-69301c... 1386519-7-69301ba... 1386519-9-69301bd... 1386519-5-69301b7... 1386519-15-69301c... 1386519-2-69301b3... 1386519-4-69301b5... 1386519-12-69301c... 1386519-19-69301c... 1386519-6-69301b8... 1386519-3-69301b4... 1386519-20-69301e... 1386519-17-69301c... 1386519-18-69301c... 1386519-16-69301c... 1386519-8-69301bb... 1386519-11-69301c... 1386519-10-69301b...

Nearby Streets

NameAverage PriceAverage SqftDistance
Albert Yard £ 000.00 KM
Albert Mews £ 525,00000.00 KM
Juniper Court £ 000.00 KM
Ford's Place £ 000.00 KM
Addison Close £ 000.00 KM

Nearby Transport

NameNLCTLCDistance
Carpenders Park1442CPK4.26 KM
West Ruislip3059WRU4.50 KM
Hatch End1398HTE5.19 KM
South Ruislip3057SRU5.46 KM
Bushey1395BSH5.76 KM

Nearby Listings

AddressPriceTypeScoreDistance
Jasmin Close, Northwood £ 250,000BUY7 / 100.00 KM
Jasmin Close, Northwood £ 200,000BUY8 / 100.00 KM
Jasmin Close, Northwood £ 180,000BUY6 / 100.00 KM
Jasmin Close, Northwood, Middlesex £ 200,000BUY5 / 100.06 KM
Jasmin Close, Northwood £ 200,000BUYUnknown0.06 KM

Nearby Properties

AddressPriceDistance
14 Jasmin Close £ 211,0000.01 KM
19 Jasmin Close £ 230,0000.01 KM
23 Jasmin Close £ 110,0000.01 KM
26 Jasmin Close £ 70,0000.01 KM
15 Jasmin Close £ 180,0000.01 KM