Arundel Drive, Orpington, BR6
By Langford Rae Chelsfield
£ 525,000
Reviews
3 out of 5 stars
Langford Rae Chelsfield says ..
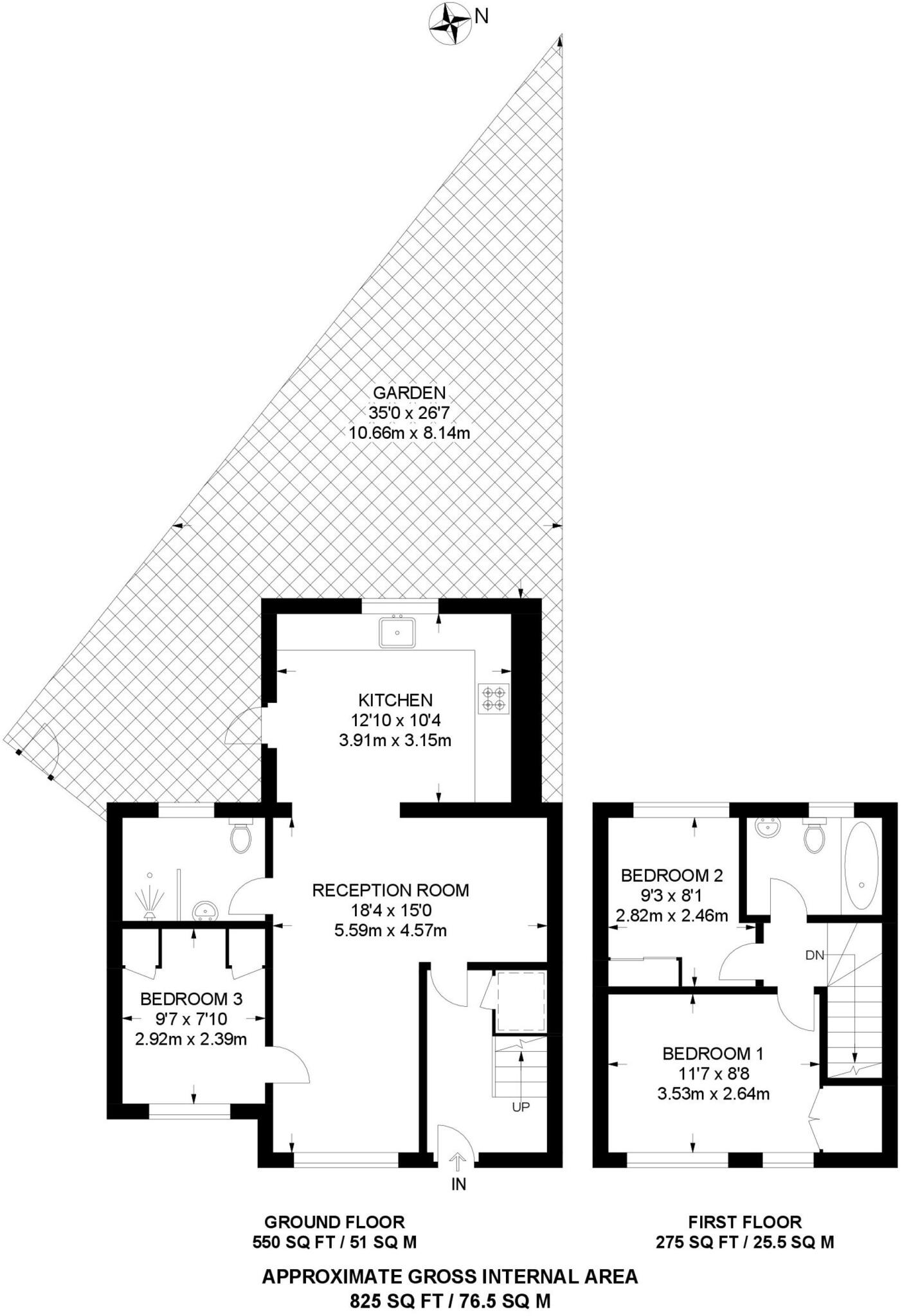
Three bedroom end of terrace family home situated in a popular residential road within walking distance of Chelsfield Station, local schools and amenities.The property was built in 2017, is well presented throughout and offers versatile accommodation, the ground floor comprises, entrance hallway,...
Property Oracle says ..
This is a 3-bedroom end-of-terrace property located on Arundel Drive, Orpington. The house has been modernized, featuring a new kitchen and updated bathrooms. The property benefits from its proximity to well-regarded schools and transportation links, making it suitable for families and commuters. While the garden is a plus, it isn’t particularly large. The asking price of £525,000 appears reasonable compared to the average price in the area, but the absence of square footage information limits a more comprehensive valuation. Overall, the property presents well and offers good potential for prospective buyers looking for a modern home in a convenient location. The listing is with Langford Rae Chelsfield estate agents.
Therefore, we give this property 7 / 10. *Disclaimer: This is our option and does constitute a recommendation or financial advice. Do your own research. *
- Price
- 7
- Condition
- 8
- Location
- 7
- Land
- 6
- Bedrooms
- 3
- Bathrooms
- 2
- Sqft (est)
- 823.44
- Lot (est)
- 932.76
The heatmap indicates the level of crime in the area. The color of the heatmap indicates the crime severity and recency.
Metrics Year-on-Year
- Average area value
- 628,071.00 £Decreased by 15.57 %
- Est sale value
- 449,598.24 £Increased by 14.71 %
- Average area rental value
- 2,183.00 £/moDecreased by 8.08 %
- Est letting value
- 823.44 £/moUnchanged by 0.00 %
- Est rental Yield
- 4.17 %Increased by 8.88 %
- Crime Rate
- 1.00 %Unchanged by 0.00 %
Agent Activity
Langford Rae Chelsfield created the listing.
Nearby Schools
| Name | Type | Ofsted | Distance |
|---|---|---|---|
| The Highway Primary School | Academy Converter | Good | 0.55 KM |
| St Olave'S And St Saviour'S Grammar School | Voluntary Aided School | Outstanding | 0.80 KM |
| Warren Road Primary School | Academy Converter | 1.62 KM | |
| Bromley Beacon Academy | Academy Special Sponsor Led | Good | 1.73 KM |
| Green Street Green Primary School | Academy Converter | Good | 1.76 KM |
Images
Nearby Streets
| Name | Average Price | Average Sqft | Distance |
|---|---|---|---|
| Woodside | £ 0 | 0 | 0.00 KM |
| Eton Road | £ 525,000 | 0 | 0.00 KM |
| Court Road | £ 0 | 0 | 0.00 KM |
| Steep Close | £ 0 | 0 | 0.00 KM |
| Amberley Close | £ 0 | 0 | 0.00 KM |
Nearby Transport
| Name | NLC | TLC | Distance |
|---|---|---|---|
| Chelsfield | 5098 | CLD | 0.50 KM |
| Orpington | 5122 | ORP | 2.42 KM |
| Knockholt | 5109 | KCK | 3.14 KM |
| St Mary Cray | 5073 | SMY | 3.91 KM |
| Petts Wood | 5123 | PET | 4.76 KM |
Nearby Listings
| Address | Price | Type | Score | Distance |
|---|---|---|---|---|
| Arundel Drive, Orpington, BR6 | £ 525,000 | BUY | 7 / 10 | 0.00 KM |
| Repton Road, Orpington, BR6 | £ 550,000 | BUY | 8 / 10 | 0.06 KM |
| Repton Road, Orpington, Kent, BR6 9JB | £ 495,000 | BUY | 7 / 10 | 0.09 KM |
| Arundel Drive, Orpington | £ 650,000 | BUY | 7 / 10 | 0.10 KM |
| Repton Road, Orpington | £ 475,000 | BUY | 6 / 10 | 0.11 KM |
Nearby Properties
| Address | Price | Distance |
|---|---|---|
| 5 Arundel Drive | £ 79,000 | 0.10 KM |
| 7 Arundel Drive | £ 390,000 | 0.10 KM |
| 29 Arundel Drive | £ 440,000 | 0.10 KM |
| 43 Arundel Drive | £ 473,500 | 0.10 KM |
| 49 Arundel Drive | £ 431,000 | 0.10 KM |