Life Residential says ..
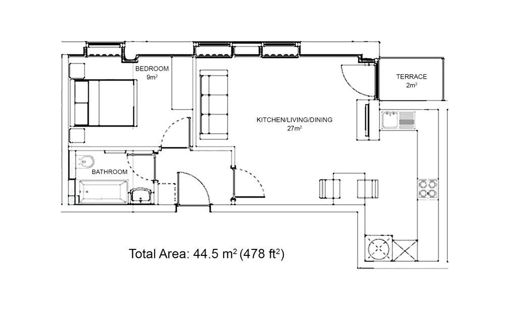
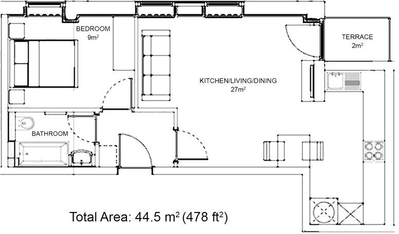
Life Residential are proud to present this beautiful 1 bed, 1 bath flat in Hayes. This home is 478 square feet in size offering canal-facing views, a spacious double bedroom, and an open-plan living area with a sleek, fully integrated kitchen. The property includes a stylish bathroom, video...
Property Oracle says ..
Therefore, we give this property 6 / 10. *Disclaimer: This is our option and does constitute a recommendation or financial advice. Do your own research. *
- Price
- 7
- Condition
- 8
- Location
- 7
- Land
- 3
- Bedrooms
- 1
- Bathrooms
- 1
The heatmap indicates the level of crime in the area. The color of the heatmap indicates the crime severity and recency.
Metrics Year-on-Year
- Average area value
- 419,333.00 £Decreased by 5.08 %
- Average area rental value
- 2,157.00 £/moIncreased by 14.98 %
- Est rental Yield
- 6.17 %Increased by 20.98 %
- Crime Rate
- 43.00 %Unchanged by 0.00 %
from 441,765.00 £
from 1,876.00 £/mo
from 5.10 %
from 43.00 %
Agent Activity
Life Residential created the listing.
Nearby Schools
| Name | Type | Ofsted | Distance |
|---|---|---|---|
| Barra Hall Children'S Centre | Children's Centre | 0.11 KM | |
| Botwell House Catholic Primary School | Voluntary Aided School | Good | 0.31 KM |
| Nestles Avenue Children'S Centre | Children's Centre | 0.38 KM | |
| Global Academy | University Technical College | Good | 0.69 KM |
| Lake Farm Park Academy | Academy Sponsor Led | Good | 1.03 KM |
Images
Nearby Streets
| Name | Average Price | Average Sqft | Distance |
|---|---|---|---|
| Western View | £ 0 | 0 | 0.00 KM |
| Clarendon Road | £ 0 | 0 | 0.00 KM |
| Powerhouse Lane | £ 401,999 | 0 | 0.00 KM |
| Nestle's Avenue | £ 443,857 | 0 | 0.00 KM |
| Glebe Road | £ 345,938 | 0 | 0.00 KM |
Nearby Transport
| Name | NLC | TLC | Distance |
|---|---|---|---|
| Hayes And Harlington | 3186 | HAY | 0.20 KM |
| Southall | 3187 | STL | 4.67 KM |
| Heathrow Terminals 2 And 3 (Rail Station Only) | 7090 | HXX | 5.25 KM |
| West Drayton | 3174 | WDT | 5.71 KM |
| Heathrow Terminal 4 | 7091 | HAF | 5.86 KM |
Nearby Listings
| Address | Price | Type | Score | Distance |
|---|---|---|---|---|
| Clayton Road, Hayes, UB3 | £ 320,000 | BUY | 6 / 10 | 0.00 KM |
| Bath Road, Slough, Berkshire, SL1 | £ 195,000 | BUY | 6 / 10 | 0.00 KM |
| Bath Road, Slough, Berkshire, SL1 | £ 190,000 | BUY | 6 / 10 | 0.00 KM |
| Clayton Road, Hayes, UB3 1AA | £ 359,950 | BUY | 6 / 10 | 0.02 KM |
| Union House, 23 Clayton Road, Hayes UB3 1AA | £ 332,500 | BUY | 5 / 10 | 0.03 KM |
Nearby Properties
| Address | Price | Distance |
|---|---|---|
| 1a Clayton Road | £ 102,500 | 0.04 KM |
| 13a Nield Road | £ 200,000 | 0.07 KM |
| 10 Nield Road | £ 205,000 | 0.07 KM |
| 9 Nield Road | £ 105,000 | 0.07 KM |
| 19 Nield Road | £ 200,000 | 0.07 KM |