The Cedar, Church Mead, Gee Cross
By On the Move Property Boutique
£ 439,500
Reviews
4 out of 5 stars
On the Move Property Boutique says ..
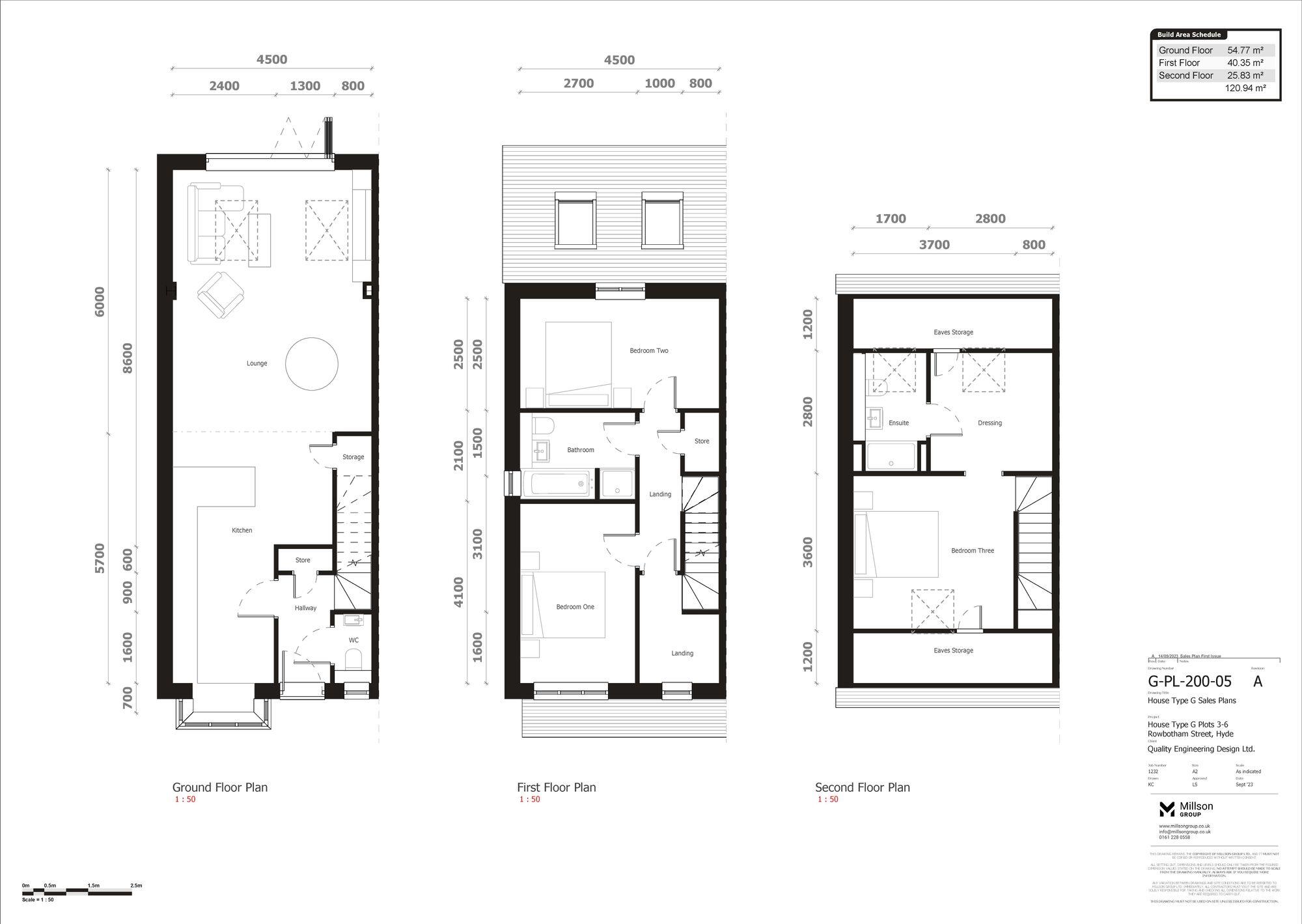
Jardine Estates are delighted to present Church Mead - A collection of three and four-bedroom homes located in the heart Of Gee Cross village.
Property Oracle says ..
The property is located in Gee Cross, Hyde, which benefits from being close to local amenities and transport links. The nearby schools are rated as good by Ofsted, making it attractive to families. The property itself appears to be newly built or recently renovated, presenting in excellent condition. The images show a modern, well-designed interior with a good-sized garden. The plot size is comparable to the property size, suggesting a manageable garden. While the list price is higher than the average for the area, the larger size, modern finish, and desirable location may justify the premium. Further investigation into comparable properties in the immediate vicinity would help to confirm the price.
Therefore, we give this property 8 / 10. *Disclaimer: This is our option and does constitute a recommendation or financial advice. Do your own research. *
- Price
- 7
- Condition
- 10
- Location
- 8
- Land
- 7
- Bedrooms
- 3
- Bathrooms
- 3
- Sqft (est)
- 1,301.90
- Lot (est)
- 1,301.79
The heatmap indicates the level of crime in the area. The color of the heatmap indicates the crime severity and recency.
Metrics Year-on-Year
- Average area value
- 349,167.00 £Increased by 12.91 %
- Est sale value
- 538,986.60 £Increased by 40.82 %
- Average area rental value
- 1,000.00 £/moDecreased by 13.49 %
- Est letting value
- 1,301.90 £/moUnchanged by 0.00 %
- Est rental Yield
- 3.44 %Decreased by 23.39 %
- Crime Rate
- 0.00 %
Agent Activity
On the Move Property Boutique created the listing.
Nearby Schools
| Name | Type | Ofsted | Distance |
|---|---|---|---|
| Gee Cross Holy Trinity Cofe (Vc) Primary School | Voluntary Controlled School | Good | 0.32 KM |
| Dowson Primary Academy | Academy Converter | Good | 0.54 KM |
| Alder Community High School | Community School | Good | 0.89 KM |
| Greenfield Primary Academy | Academy Sponsor Led | 1.04 KM | |
| Endeavour Primary Academy | Academy Converter | 1.14 KM |
Images
Nearby Streets
| Name | Average Price | Average Sqft | Distance |
|---|---|---|---|
| Hill Street | £ 0 | 0 | 0.00 KM |
| Queens Close | £ 210,000 | 0 | 0.00 KM |
| Nether Street | £ 0 | 0 | 0.00 KM |
| Queens Drive | £ 0 | 0 | 0.00 KM |
| Fern Bank Street | £ 300,000 | 0 | 0.00 KM |
Nearby Transport
| Name | NLC | TLC | Distance |
|---|---|---|---|
| Newton For Hyde | 2789 | NWN | 1.95 KM |
| Godley | 2948 | GDL | 2.10 KM |
| Hyde Central | 2829 | HYC | 2.32 KM |
| Flowery Field | 2786 | FLF | 2.89 KM |
| Woodley | 2835 | WLY | 2.92 KM |
Nearby Listings
| Address | Price | Type | Score | Distance |
|---|---|---|---|---|
| Brabyns Road, Gee Cross | £ 285,000 | BUY | 7 / 10 | 0.00 KM |
| The Cedar, Church Mead, Gee Cross | £ 439,500 | BUY | 8 / 10 | 0.00 KM |
| Mottram Old Road, Hyde, Greater Manchester, SK14 | £ 220,000 | BUY | 5 / 10 | 0.06 KM |
| Stockport Road, Gee Cross | £ 350,000 | BUY | 7 / 10 | 0.06 KM |
| The Hawthorn, Church Mead, Gee Cross | £ 399,950 | BUY | 7 / 10 | 0.09 KM |
Nearby Properties
| Address | Price | Distance |
|---|---|---|
| 23 Mottram Old Road | £ 130,000 | 0.11 KM |
| 16 Mottram Old Road | £ 100,000 | 0.11 KM |
| 14 Mottram Old Road | £ 130,000 | 0.11 KM |
| 18 Mottram Old Road | £ 105,000 | 0.11 KM |
| 5 Harrison Street | £ 59,950 | 0.12 KM |