Camberwell Church Street, London, SE5
By Kalmars Residential
£ 1,200,000
Reviews
2 out of 5 stars
Kalmars Residential says ..
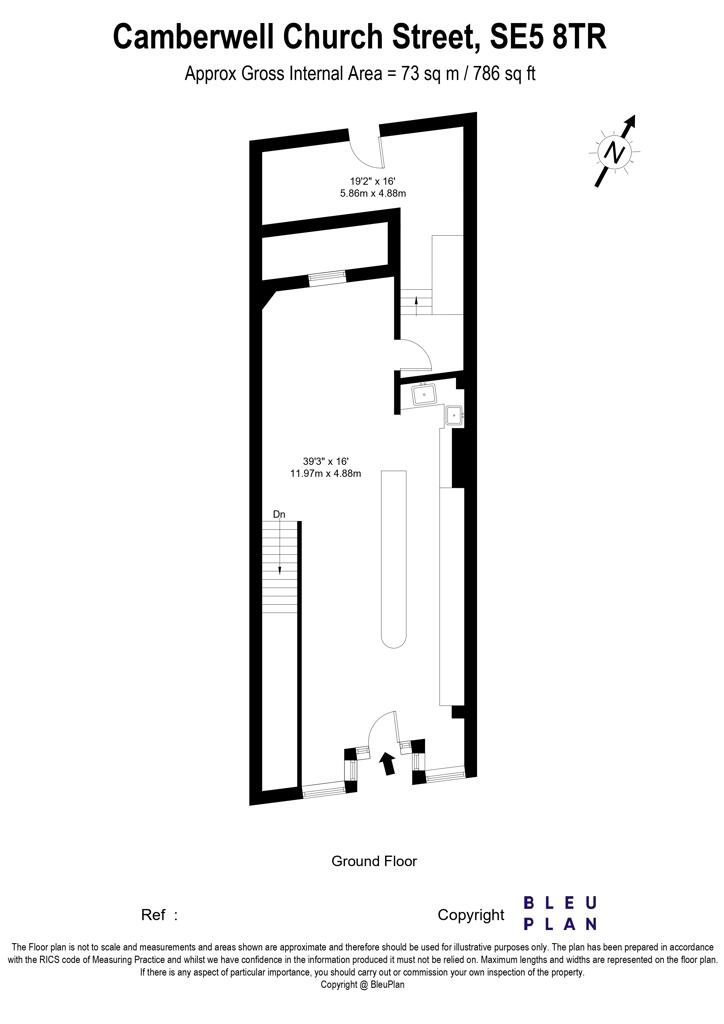
Investment Opportunity in Camberwell: Freehold Mixed-Use Property Prime Location: Situated in the heart of Camberwell, this exceptional freehold property offers an attractive investment potential. The versatile building comprises: Three Self-Contained Residential Units - 2 x One-bedroom fla...
Property Oracle says ..
This mixed-use property located on Camberwell Church Street in London, SE5 presents a mixed bag. It’s a four-bedroom property across multiple floors, including a basement, offering ample living space, making it suitable for families or those seeking space. The location on Camberwell Church Street positions it within reach of local amenities, transport links (with Denmark Hill station conveniently located nearby), and numerous schools. The proximity to these features is a significant advantage. However, the images reveal that the property requires modernisation. The bathrooms and kitchen appear dated and some rooms could benefit from renovations to enhance their aesthetic appeal and functionality. It’s important to factor in the cost of these updates when assessing the overall value. The lack of any notable outdoor space is a substantial drawback, particularly in an area where access to green space is always appreciated. Given these competing elements, buyers must carefully weigh their priorities. While the location is attractive and the internal space is significant, the condition and lack of exterior space affect the overall desirability of the property, making a detailed budget imperative before purchasing.
Therefore, we give this property 4 / 10. *Disclaimer: This is our option and does constitute a recommendation or financial advice. Do your own research. *
- Price
- 6
- Condition
- 5
- Location
- 7
- Land
- 1
- Bedrooms
- 4
- Bathrooms
- 1
- Sqft (est)
- 615.70
The heatmap indicates the level of crime in the area. The color of the heatmap indicates the crime severity and recency.
Metrics Year-on-Year
- Average area value
- 723,750.00 £Decreased by 4.18 %
- Est sale value
- 646,485.00 £Increased by 33.59 %
- Average area rental value
- 2,649.00 £/moIncreased by 13.89 %
- Est letting value
- 1,847.10 £/moIncreased by 50.00 %
- Est rental Yield
- 4.39 %Increased by 18.65 %
- Crime Rate
- 8.00 %Unchanged by 0.00 %
Agent Activity
Kalmars Residential created the listing.
Nearby Schools
| Name | Type | Ofsted | Distance |
|---|---|---|---|
| Arco Academy | Other Independent School | 0.14 KM | |
| Lyndhurst Primary School | Academy Converter | 0.45 KM | |
| Brunswick Park Primary School | Community School | Good | 0.46 KM |
| Bethlem And Maudsley Hospital School | Community Special School | Outstanding | 0.50 KM |
| Spa School Camberwell | Free Schools Special | 0.61 KM |
Images
Nearby Streets
| Name | Average Price | Average Sqft | Distance |
|---|---|---|---|
| Kimpton Road | £ 376,667 | 0 | 0.00 KM |
| Jephson Street | £ 0 | 0 | 0.00 KM |
| Harvey Road | £ 0 | 0 | 0.00 KM |
| Ribbon Dance Mews | £ 0 | 0 | 0.00 KM |
| Bantry Street | £ 675,000 | 0 | 0.00 KM |
Nearby Transport
| Name | NLC | TLC | Distance |
|---|---|---|---|
| Denmark Hill | 5421 | DMK | 0.65 KM |
| Loughborough Junction | 5082 | LGJ | 1.63 KM |
| East Dulwich | 5358 | EDW | 1.72 KM |
| North Dulwich | 5429 | NDL | 2.19 KM |
| Peckham Rye | 5423 | PMR | 2.29 KM |
Nearby Listings
| Address | Price | Type | Score | Distance |
|---|---|---|---|---|
| Camberwell Church Street, London | £ 300,000 | BUY | 3 / 10 | 0.02 KM |
| Camberwell Grove, Camberwell | £ 975,000 | BUY | Unknown | 0.10 KM |
| Mary Datchelor Close, London | £ 525,000 | BUY | Unknown | 0.10 KM |
| Grove Lane, Camberwell, SE5 | £ 860,000 | BUY | 8 / 10 | 0.10 KM |
| Grove Lane, Camberwell, London, SE5 | £ 750,000 | BUY | 6 / 10 | 0.11 KM |
Nearby Properties
| Address | Price | Distance |
|---|---|---|
| 9 Kimpton Road | £ 380,000 | 0.07 KM |
| 5 Kimpton Road | £ 310,000 | 0.07 KM |
| 103 Mary Datchelor Close | £ 475,000 | 0.10 KM |
| 111 Mary Datchelor Close | £ 200,000 | 0.10 KM |
| 124 Mary Datchelor Close | £ 147,500 | 0.10 KM |