PE
Bryn Twr, Abergele, LL22 8DD
By Peter Large Estate Agents
£ 379,950
Reviews
3 out of 5 stars
Peter Large Estate Agents says ..
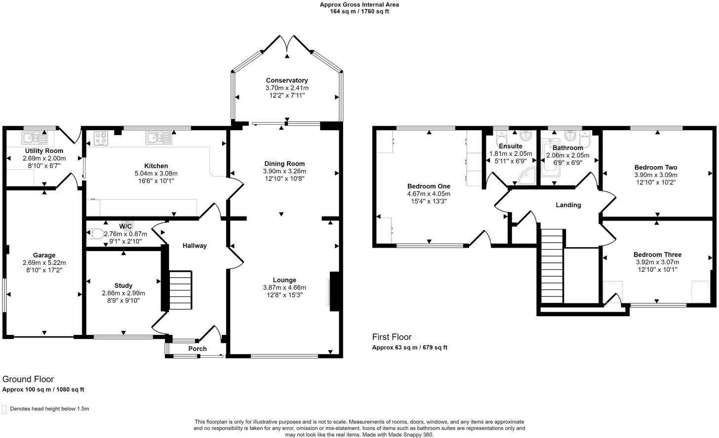
Offered to the market with no onward chain is this delightful three-bedroom detached home, nestled on one of Abergele’s most sought-after residential roads, occupying a substantial plot. This spacious home includes entrance hall, lounge, dining room, study, large conservatory, kitchen wi...
Property Oracle says ..
Therefore, we give this property 7 / 10. *Disclaimer: This is our option and does constitute a recommendation or financial advice. Do your own research. *
- Price
- 6
- Condition
- 6
- Location
- 7
- Land
- 9
- Bedrooms
- 3
- Bathrooms
- 2
The heatmap indicates the level of crime in the area. The color of the heatmap indicates the crime severity and recency.
Metrics Year-on-Year
- Average area value
- 391,990.00 £Increased by 15.65 %
- Average area rental value
- 895.00 £/moIncreased by 23.45 %
- Est rental Yield
- 2.74 %Increased by 6.61 %
- Crime Rate
- 2.00 %Unchanged by 0.00 %
from 338,931.00 £
from 725.00 £/mo
from 2.57 %
from 2.00 %
Agent Activity
Peter Large Estate Agents created the listing.
Nearby Schools
| Name | Type | Ofsted | Distance |
|---|---|---|---|
| Ysgol Emrys Ap Iwan | Welsh Establishment | 0.84 KM | |
| St Elfod Junior School | Welsh Establishment | 1.15 KM | |
| Ysgol Glan Morfa | Welsh Establishment | 1.15 KM | |
| Ysgol Glan Gele | Welsh Establishment | 1.15 KM | |
| Canolfan Addysg Nant-Y-Bryniau Education Centre | Welsh Establishment | 1.42 KM |
Images
Nearby Streets
| Name | Average Price | Average Sqft | Distance |
|---|---|---|---|
| Highfield Park | £ 0 | 0 | 0.00 KM |
| Rhodfa Bryn Mair | £ 223,713 | 0 | 0.00 KM |
| Bryn Tŵr | £ 283,000 | 0 | 0.00 KM |
| Rhodfa Bryn Awel | £ 349,000 | 0 | 0.00 KM |
| Compton Way | £ 293,790 | 0 | 0.00 KM |
Nearby Transport
| Name | NLC | TLC | Distance |
|---|---|---|---|
| Abergele And Pensarn | 2448 | AGL | 1.75 KM |
Nearby Listings
| Address | Price | Type | Score | Distance |
|---|---|---|---|---|
| Bryn Twr, Abergele, LL22 8DD | £ 379,950 | BUY | 7 / 10 | 0.00 KM |
| Bryn Twr, Abergele, Conwy, LL22 8DD | £ 349,995 | BUY | Unknown | 0.02 KM |
| Bryn Twr, Abergele | £ 290,000 | BUY | Unknown | 0.06 KM |
| Bryn Twr, Abergele | £ 270,000 | BUY | Unknown | 0.10 KM |
| Bryn Twr, Abergele, Conwy, LL22 8DD | £ 425,000 | BUY | 8 / 10 | 0.10 KM |
Nearby Properties
| Address | Price | Distance |
|---|---|---|
| 2 Bryn Parc | £ 212,500 | 0.09 KM |
| 65 Bryn Twr | £ 299,000 | 0.11 KM |
| 26 Bryn Twr | £ 184,000 | 0.11 KM |
| 66 Bryn Twr | £ 207,000 | 0.11 KM |
| 75 Bryn Twr | £ 245,950 | 0.11 KM |