FO
Brooke Avenue, South Harrow, Harrow, HA2
By Foxtons
£ 575,000
Reviews
3 out of 5 stars
Foxtons says ..
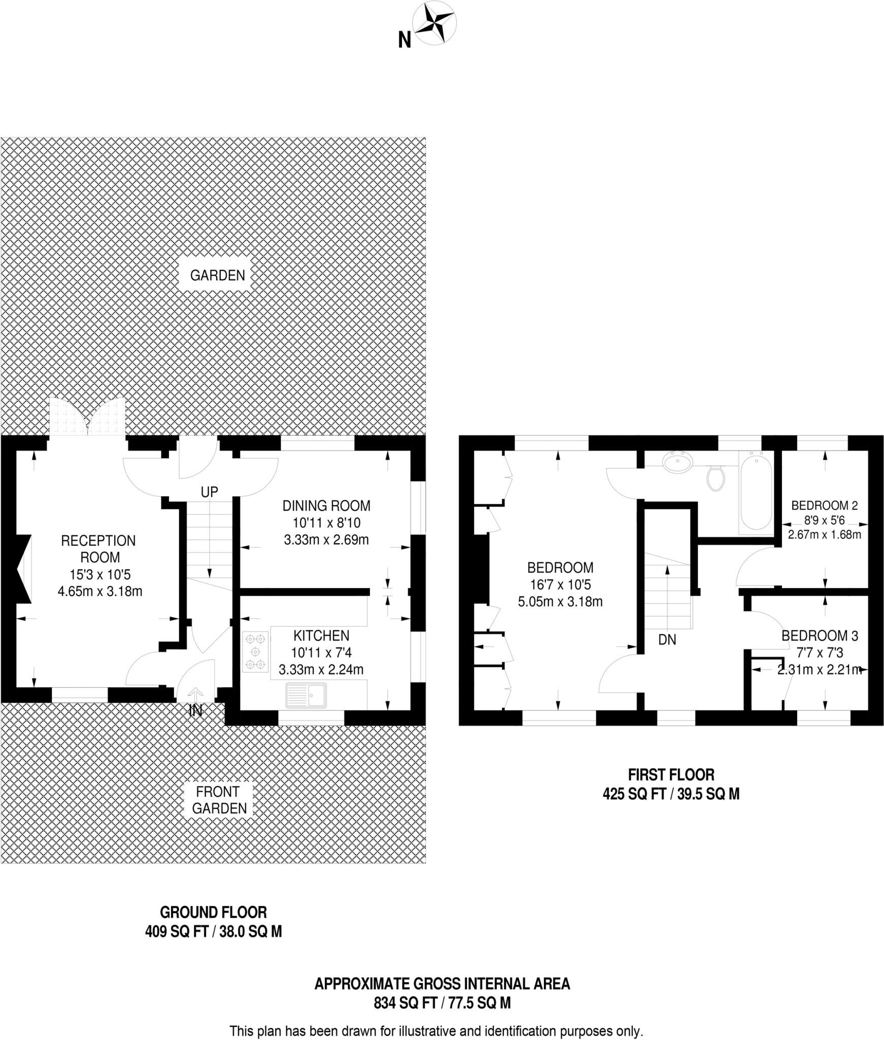
Presented in good condition throughout, this superb 3 bedroom semi-detached house benefits from 2 reception rooms with modern décor, a separate fitted kitchen and a wraparound private garden.
Property Oracle says ..
Therefore, we give this property 7 / 10. *Disclaimer: This is our option and does constitute a recommendation or financial advice. Do your own research. *
- Price
- 6
- Condition
- 7
- Location
- 7
- Land
- 8
- Bedrooms
- 3
- Bathrooms
- 1
- Sqft (est)
- 611.82
The heatmap indicates the level of crime in the area. The color of the heatmap indicates the crime severity and recency.
Metrics Year-on-Year
- Average area value
- 619,994.00 £Increased by 17.76 %
- Est sale value
- 389,729.34 £Increased by 20.42 %
- Average area rental value
- 2,235.00 £/moIncreased by 14.67 %
- Est letting value
- 1,223.64 £/moIncreased by 100.00 %
- Est rental Yield
- 4.33 %Decreased by 2.48 %
- Crime Rate
- 3.00 %Unchanged by 0.00 %
from 526,507.00 £
from 323,652.78 £
from 1,949.00 £/mo
from 611.82 £/mo
from 4.44 %
from 3.00 %
Agent Activity
Foxtons created the listing.
Nearby Schools
| Name | Type | Ofsted | Distance |
|---|---|---|---|
| Hillview Nursery School | Local Authority Nursery School | Good | 0.39 KM |
| Hillview Children'S Centre | Children's Centre | 0.46 KM | |
| Orley Farm School | Other Independent School | 0.72 KM | |
| Roxeth Mead School | Other Independent School | Good | 0.78 KM |
| The Welldon Park Academy | Academy Sponsor Led | 0.80 KM |
Images
Nearby Streets
| Name | Average Price | Average Sqft | Distance |
|---|---|---|---|
| Sackville Close | £ 0 | 0 | 0.00 KM |
| Wesley Close | £ 0 | 0 | 0.00 KM |
| Grange Farm Close | £ 82,500 | 0 | 0.00 KM |
| Footpath 81 | £ 0 | 0 | 0.00 KM |
| Beechwood Gardens | £ 0 | 0 | 0.00 KM |
Nearby Transport
| Name | NLC | TLC | Distance |
|---|---|---|---|
| Northolt Park | 1478 | NLT | 1.33 KM |
| Sudbury Hill Harrow | 1484 | SDH | 1.70 KM |
| Harrow-On-The-Hill | 598 | HOH | 2.14 KM |
| Greenford | 3136 | GFD | 2.52 KM |
| Harrow And Wealdstone | 1397 | HRW | 3.50 KM |
Nearby Listings
| Address | Price | Type | Score | Distance |
|---|---|---|---|---|
| Brooke Avenue, South Harrow, Harrow, HA2 | £ 575,000 | BUY | 7 / 10 | 0.00 KM |
| Flat 1, 48 Brooke Avenue, Harrow, Middlesex, HA2 0NF | £ 115,000 | BUY | 5 / 10 | 0.03 KM |
| 24 South Hill Avenue, Harrow, HA2 0NQ | £ 950,000 | BUY | 6 / 10 | 0.12 KM |
| 10a Brooke Avenue, HA2 0NF | £ 199,950 | BUY | 4 / 10 | 0.13 KM |
| Northolt Road, Harrow | £ 300,000 | BUY | 5 / 10 | 0.18 KM |
Nearby Properties
| Address | Price | Distance |
|---|---|---|
| 41 Brooke Avenue | £ 660,000 | 0.02 KM |
| 29a Brooke Avenue | £ 249,950 | 0.02 KM |
| 23 Brooke Avenue | £ 223,500 | 0.02 KM |
| 37 Brooke Avenue | £ 660,000 | 0.02 KM |
| 39c Brooke Avenue | £ 218,000 | 0.02 KM |