Bailihelig Road, Llanfaes, Brecon, LD3
By James.Dean
£ 325,000
Reviews
3 out of 5 stars
James.Dean says ..
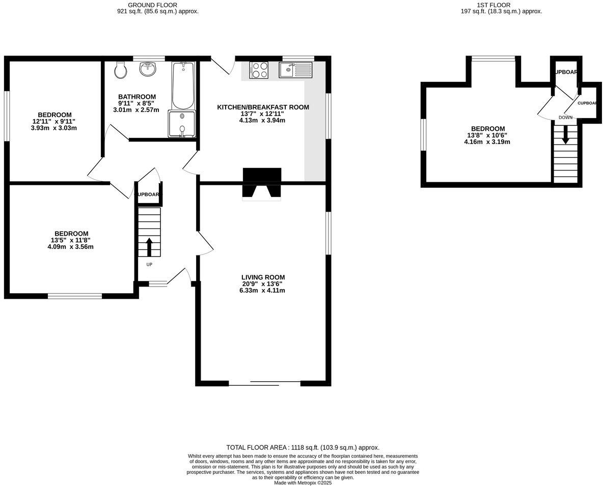
In a popular and convenient location is this, detached, three bed bungalow enjoying parking, a garage and good size, level rear gardens.
Property Oracle says ..
Therefore, we give this property 6 / 10. *Disclaimer: This is our option and does constitute a recommendation or financial advice. Do your own research. *
- Price
- 5
- Condition
- 5
- Location
- 7
- Land
- 7
- Bedrooms
- 3
- Bathrooms
- 1
- Sqft (est)
- 103.90
The heatmap indicates the level of crime in the area. The color of the heatmap indicates the crime severity and recency.
Metrics Year-on-Year
- Average area value
- 311,704.00 £Increased by 34.17 %
- Est sale value
- 38,027.40 £Increased by 10.57 %
- Average area rental value
- 1,067.00 £/moDecreased by 19.35 %
- Est letting value
- 103.90 £/moUnchanged by 0.00 %
- Est rental Yield
- 4.11 %Decreased by 39.82 %
- Crime Rate
- 19.00 %Unchanged by 0.00 %
from 232,321.00 £
from 34,390.90 £
from 1,323.00 £/mo
from 103.90 £/mo
from 6.83 %
from 19.00 %
Agent Activity
James.Dean created the listing.
Nearby Schools
| Name | Type | Ofsted | Distance |
|---|---|---|---|
| Llanfaes C.P. School | Welsh Establishment | 0.22 KM | |
| Christ College | Welsh Establishment | 0.74 KM | |
| Mount Street C.P. Junior | Welsh Establishment | 1.26 KM | |
| Priory C.I.W. School | Welsh Establishment | 1.32 KM | |
| Ysgol Penmaes | Welsh Establishment | 1.35 KM |
Images
Nearby Streets
| Name | Average Price | Average Sqft | Distance |
|---|---|---|---|
| Beilhelig Road | £ 0 | 0 | 0.00 KM |
| Church Street | £ 180,000 | 0 | 0.00 KM |
| St. David's Park | £ 338,333 | 0 | 0.00 KM |
| St David Street | £ 238,000 | 0 | 0.00 KM |
| Orchard Gardens | £ 0 | 0 | 0.00 KM |
Nearby Listings
| Address | Price | Type | Score | Distance |
|---|---|---|---|---|
| Bailihelig Road, Llanfaes, Brecon, LD3 | £ 325,000 | BUY | 6 / 10 | 0.00 KM |
| Church Street, Brecon, LD3 | £ 140,000 | BUY | 6 / 10 | 0.08 KM |
| Newmarch Street, Brecon, LD3 | £ 190,000 | BUY | 7 / 10 | 0.14 KM |
| Trenewydd, Brecon, LD3 | £ 290,000 | BUY | 7 / 10 | 0.17 KM |
| Trenewydd, Brecon, LD3 | £ 270,000 | BUY | 6 / 10 | 0.17 KM |
Nearby Properties
| Address | Price | Distance |
|---|---|---|
| 29 Church Street | £ 232,000 | 0.07 KM |
| 30 Church Street | £ 105,000 | 0.07 KM |
| 39 Church Street | £ 113,000 | 0.07 KM |
| 27 Church Street | £ 139,000 | 0.07 KM |
| 38 Church Street | £ 100,000 | 0.07 KM |