FL
Bryntirion Terrace, Llandudno Junction
By Fletcher & Poole
£ 145,000
Reviews
2 out of 5 stars
Fletcher & Poole says ..
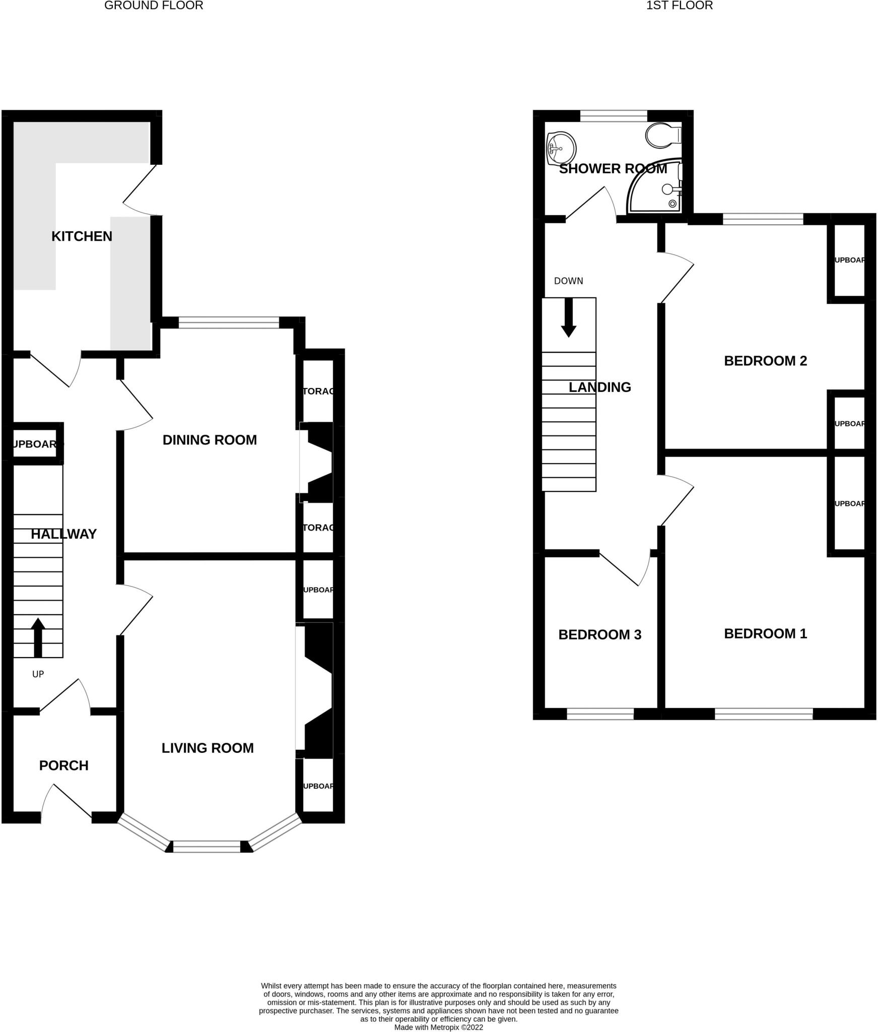
A spacious three bedroom mid terrace home situated on a no through road close to the centre of the village, ideally located for the train station and shops. The property enjoys views to the front aspect and is an ideal development opportunity. The current owner has started the upgrading proce...
Property Oracle says ..
Therefore, we give this property 5 / 10. *Disclaimer: This is our option and does constitute a recommendation or financial advice. Do your own research. *
- Price
- 8
- Condition
- 3
- Location
- 7
- Land
- 3
- Bedrooms
- 3
- Bathrooms
- 1
- Sqft (est)
- 976.00
The heatmap indicates the level of crime in the area. The color of the heatmap indicates the crime severity and recency.
Metrics Year-on-Year
- Average area value
- 346,667.00 £Increased by 10.48 %
- Est sale value
- 220,576.00 £Decreased by 17.22 %
- Average area rental value
- 950.00 £/moDecreased by 40.99 %
- Est letting value
- 0.00 £/moDecreased by 100.00 %
- Est rental Yield
- 3.29 %Decreased by 46.59 %
- Crime Rate
- 60.00 %Unchanged by 0.00 %
from 313,795.00 £
from 266,448.00 £
from 1,610.00 £/mo
from 976.00 £/mo
from 6.16 %
from 60.00 %
Agent Activity
Fletcher & Poole created the listing.
Nearby Schools
| Name | Type | Ofsted | Distance |
|---|---|---|---|
| Ysgol Deganwy | Welsh Establishment | 1.60 KM | |
| Ysgol Glan Conwy | Welsh Establishment | 2.39 KM | |
| Ysgol Porth Y Felin | Welsh Establishment | 2.82 KM | |
| St David'S College | Welsh Establishment | 2.89 KM | |
| Ysgol Aberconwy | Welsh Establishment | 3.19 KM |
Images
Nearby Streets
| Name | Average Price | Average Sqft | Distance |
|---|---|---|---|
| Conway Road | £ 0 | 0 | 0.00 KM |
| St David's Avenue | £ 0 | 0 | 0.00 KM |
| Station Terrace | £ 145,000 | 0 | 0.00 KM |
| Ferndale Road | £ 240,000 | 0 | 0.00 KM |
| Victoria Crescent | £ 289,950 | 0 | 0.00 KM |
Nearby Transport
| Name | NLC | TLC | Distance |
|---|---|---|---|
| Llandudno Junction | 2485 | LLJ | 0.17 KM |
| Glan Conwy | 2454 | GCW | 2.33 KM |
| Conwy | 2486 | CNW | 2.49 KM |
| Deganwy | 2480 | DGY | 2.93 KM |
| Llandudno | 2484 | LLD | 4.45 KM |
Nearby Listings
| Address | Price | Type | Score | Distance |
|---|---|---|---|---|
| Bryntirion Terrace, Llandudno Junction | £ 145,000 | BUY | 5 / 10 | 0.00 KM |
| Bryntirion Terrace, Llandudno Junction, LL31 | £ 170,000 | BUY | 6 / 10 | 0.00 KM |
| Conway Road, Llandudno Junction | £ 179,950 | BUY | 6 / 10 | 0.16 KM |
| Marl Drive, Llandudno Junction, LL31 | £ 300,000 | BUY | 6 / 10 | 0.17 KM |
| Marl Drive, Llandudno Junction | £ 325,000 | BUY | 6 / 10 | 0.17 KM |
Nearby Properties
| Address | Price | Distance |
|---|---|---|
| 24 Broad Street | £ 97,000 | 0.05 KM |
| 26 Broad Street | £ 150,000 | 0.05 KM |
| 8 Broad Street | £ 104,000 | 0.05 KM |
| 22a Broad Street | £ 120,000 | 0.05 KM |
| 2 Broad Street | £ 133,500 | 0.05 KM |