Land, Adjacent to A89, Uphall, Broxburn, West Lothian, EH525SU
By Future Property Auctions
£ 7,000
Reviews
2 out of 5 stars
Future Property Auctions says ..
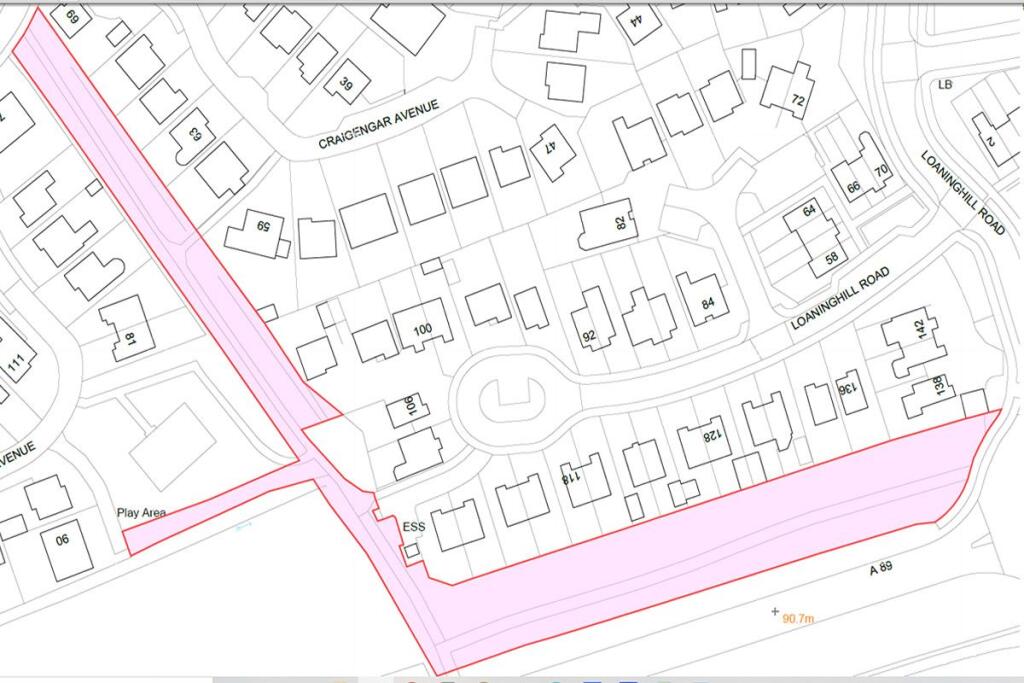
** Timed Online Auction - 07 August 2025 ** PRIME ADVERTISING SITE (subject to consents) on busy main Route. Located in a highly sought after residential area. Land adjacent to A89 Edinburgh Commuter belt road. Approx. 4,768sqm or thereby..
Property Oracle says ..
Therefore, we give this property 5 / 10. *Disclaimer: This is our option and does constitute a recommendation or financial advice. Do your own research. *
- Price
- 8
- Condition
- 2
- Location
- 4
- Land
- 6
- Bedrooms
- 0
- Bathrooms
- 0
The heatmap indicates the level of crime in the area. The color of the heatmap indicates the crime severity and recency.
Metrics Year-on-Year
- Average area value
- 294,275.00 £Increased by 4.32 %
- Average area rental value
- 1,350.00 £/moIncreased by 9.49 %
- Est rental Yield
- 5.51 %Increased by 5.15 %
- Crime Rate
- 0.00 %
from 282,099.00 £
from 1,233.00 £/mo
from 5.24 %
from 0.00 %
Agent Activity
Future Property Auctions created the listing.
Images
Nearby Streets
| Name | Average Price | Average Sqft | Distance |
|---|---|---|---|
| Byrehope Road | £ 0 | 0 | 0.00 KM |
| Holmes Court | £ 0 | 0 | 0.00 KM |
| South Middleton | £ 0 | 0 | 0.00 KM |
| Holmes Farm Lane | £ 0 | 0 | 0.00 KM |
| Park View | £ 0 | 0 | 0.00 KM |
Nearby Transport
| Name | NLC | TLC | Distance |
|---|---|---|---|
| Uphall | 9373 | UHA | 1.15 KM |
| Livingston North | 9371 | LSN | 6.08 KM |
| Livingston South | 9372 | LVG | 6.23 KM |
| Kirknewton | 9230 | KKN | 8.24 KM |
Nearby Listings
| Address | Price | Type | Score | Distance |
|---|---|---|---|---|
| Land, Adjacent to A89, Uphall, Broxburn, West Lothian, EH525SU | £ 7,000 | BUY | 5 / 10 | 0.00 KM |
| Land, Adjacent to A89, Uphall, Broxburn, West Lothian, EH525SU | £ 6,000 | BUY | 5 / 10 | 0.00 KM |
| Land, Adjacent to A89, Uphall, Broxburn, West Lothian, EH525SU | £ 5,000 | BUY | 5 / 10 | 0.00 KM |
| Loaninghill Road, Uphall, EH52 | £ 215,000 | BUY | 7 / 10 | 0.04 KM |
| 34 Loaninghill Road, Uphall, Broxburn, EH52 5ST | £ 330,000 | BUY | Unknown | 0.12 KM |