Buckingham Close, Exmouth
By Links Estate Agents
£ 325,000
Reviews
2 out of 5 stars
Links Estate Agents says ..
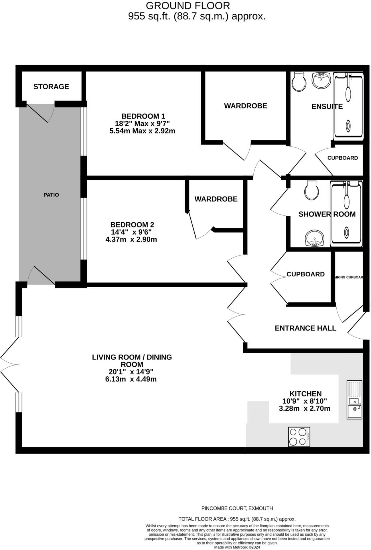
Offered for sale with NO ONWARD CHAIN and situated on the Ground Floor of this popular McCarty Stone development within `The Avenues` area of Exmouth is this 2 double bedroom and 2 shower room apartment that was constructed in 2018.
Property Oracle says ..
This property is a two-bedroom, two-bathroom apartment located in Buckingham Close, Exmouth, within a McCarthy & Stone retirement development. The apartment appears modern and well-maintained, boasting a contemporary kitchen and bathrooms. Photos reveal a comfortable living space and bedrooms, suggesting it is ready to move into. The development includes communal grounds with some limited landscaped areas. The location within Exmouth is positive, though specific distances to amenities are not provided, but the proximity to a train station is an added convenience. While the apartment is presented in good condition, the property description does not provide details on the external area of the development in sufficient detail for further analysis. The price of £325,000 seems acceptable given comparable nearby properties, though a lack of specific property square footage data and varying property type in the surrounding area limits an accurate price per square foot assessment. Potential buyers should be aware this property is part of a retirement development and may have associated service charges and restrictions. Further investigation of these factors and exact distances to amenities is recommended before making a purchasing decision.
Therefore, we give this property 5 / 10. *Disclaimer: This is our option and does constitute a recommendation or financial advice. Do your own research. *
- Price
- 6
- Condition
- 7
- Location
- 7
- Land
- 2
- Bedrooms
- 2
- Bathrooms
- 2
- Sqft (est)
- 954.76
The heatmap indicates the level of crime in the area. The color of the heatmap indicates the crime severity and recency.
Metrics Year-on-Year
- Average area value
- 385,000.00 £Decreased by 11.33 %
- Est sale value
- 635,870.16 £Increased by 93.60 %
- Average area rental value
- 1,650.00 £/moIncreased by 37.04 %
- Est letting value
- 1,909.52 £/mo
- Est rental Yield
- 5.14 %Increased by 54.35 %
- Crime Rate
- 6.00 %Unchanged by 0.00 %
Agent Activity
Links Estate Agents created the listing.
Nearby Schools
| Name | Type | Ofsted | Distance |
|---|---|---|---|
| Littleham Church Of England Primary School | Voluntary Controlled School | Requires improvement | 1.07 KM |
| Marpool Primary School | Foundation School | Good | 1.10 KM |
| Exmouth & District Children'S Centre | Children's Centre | 1.22 KM | |
| Bassetts Farm Primary School | Foundation School | Good | 1.25 KM |
| Withycombe Raleigh Church Of England Primary School | Voluntary Controlled School | Good | 1.60 KM |
Images
Nearby Streets
| Name | Average Price | Average Sqft | Distance |
|---|---|---|---|
| Sutton Road | £ 279,950 | 0 | 0.00 KM |
| Buckeridge Road | £ 264,000 | 0 | 0.00 KM |
| The Crescent | £ 0 | 0 | 0.00 KM |
| Chapman Road | £ 0 | 0 | 0.00 KM |
| Wade Close | £ 0 | 0 | 0.00 KM |
Nearby Transport
| Name | NLC | TLC | Distance |
|---|---|---|---|
| Exmouth | 5756 | EXM | 3.16 KM |
| Lympstone Village | 5761 | LYM | 5.69 KM |
| Starcross | 3413 | SCS | 6.80 KM |
| Dawlish Warren | 3409 | DWW | 6.86 KM |
| Lympstone Commando | 5762 | LYC | 7.45 KM |
Nearby Listings
| Address | Price | Type | Score | Distance |
|---|---|---|---|---|
| Buckingham Close, Exmouth | £ 325,000 | BUY | 5 / 10 | 0.00 KM |
| Pincombe Court, Buckingham Close, Exmouth | £ 335,000 | BUY | 7 / 10 | 0.03 KM |
| Pincombe Court, Buckingham Close, Exmouth | £ 395,000 | BUY | 7 / 10 | 0.03 KM |
| Buckingham Close, Exmouth, EX8 2JB | £ 325,000 | BUY | 6 / 10 | 0.05 KM |
| Pincombe Court, Buckingham Close, Exmouth | £ 325,000 | BUY | 6 / 10 | 0.05 KM |
Nearby Properties
| Address | Price | Distance |
|---|---|---|
| 20a Littleham Road | £ 180,000 | 0.22 KM |
| 7 Littleham Road | £ 706,000 | 0.22 KM |
| 69 Douglas Avenue | £ 445,000 | 0.23 KM |
| 49 Douglas Avenue | £ 390,000 | 0.23 KM |
| 84 Douglas Avenue | £ 630,000 | 0.23 KM |