Hildenborough Crescent, Allington, Maidstone ME16
By Hatch Batten Estates
£ 290,000
Reviews
3 out of 5 stars
Hatch Batten Estates says ..
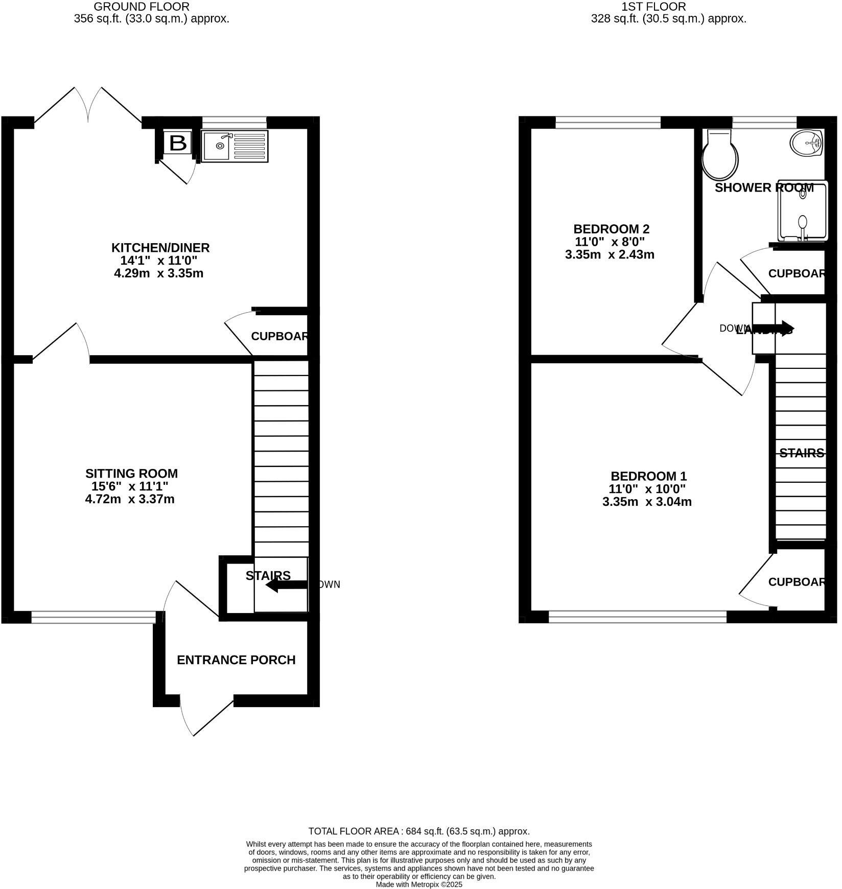
SPACIOUS TERRACED HOUSE.TWO BEDROOM AND A SHOWER ROOM.LIVING ROOM AND KITCHEN / DINER.FRONT AND REAR GARDENS.GARAGE EN-BLOC.NO FORWARD CHAIN.
Property Oracle says ..
This two-bedroom terraced house in Allington, Maidstone is listed at £290,000. The property benefits from a convenient location, close to Allington Primary School and with several other schools within a reasonable distance. Transport links are also good, with several Southeastern train stations within a few kilometers. The house itself appears to be in reasonable condition, although some updating might be desirable. The property includes a garden, adding to its appeal. Compared to the average price per square foot in the area (£460), the asking price seems relatively reasonable, especially considering the smaller size of the property (635 sqft) compared to the area average (943 sqft). However, the lack of information on the property’s specific condition and the limited plot size should be considered.
Therefore, we give this property 6 / 10. *Disclaimer: This is our option and does constitute a recommendation or financial advice. Do your own research. *
- Price
- 7
- Condition
- 6
- Location
- 8
- Land
- 5
- Bedrooms
- 2
- Bathrooms
- 1
- Sqft (est)
- 635.10
The heatmap indicates the level of crime in the area. The color of the heatmap indicates the crime severity and recency.
Metrics Year-on-Year
- Average area value
- 444,370.00 £Decreased by 0.41 %
- Est sale value
- 347,399.70 £Increased by 35.06 %
- Average area rental value
- 1,706.00 £/moIncreased by 21.86 %
- Est letting value
- 1,270.20 £/moIncreased by 100.00 %
- Est rental Yield
- 4.61 %Increased by 22.61 %
- Crime Rate
- 8.00 %Unchanged by 0.00 %
Agent Activity
Hatch Batten Estates created the listing.
Nearby Schools
| Name | Type | Ofsted | Distance |
|---|---|---|---|
| Allington Primary School | Academy Converter | 0.14 KM | |
| Palace Wood Primary School | Community School | Good | 0.58 KM |
| St Francis' Catholic Primary School, Maidstone | Voluntary Aided School | Good | 1.67 KM |
| St Simon Stock Catholic School | Academy Converter | Good | 1.74 KM |
| The Maplesden Noakes School | Academy Converter | Good | 1.82 KM |
Images
Nearby Streets
| Name | Average Price | Average Sqft | Distance |
|---|---|---|---|
| Beauelieu Walk | £ 0 | 0 | 0.00 KM |
| Woodpecker Close | £ 0 | 0 | 0.00 KM |
| Nursery Avenue | £ 583,333 | 0 | 0.00 KM |
| Newbury Avenue | £ 345,000 | 0 | 0.00 KM |
| Beech Drive | £ 600,000 | 0 | 0.00 KM |
Nearby Transport
| Name | NLC | TLC | Distance |
|---|---|---|---|
| Barming | 5133 | BMG | 1.88 KM |
| Maidstone Barracks | 5237 | MDB | 2.38 KM |
| Maidstone West | 5222 | MDW | 3.00 KM |
| Maidstone East | 5115 | MDE | 3.08 KM |
| Aylesford | 5162 | AYL | 3.56 KM |
Nearby Listings
| Address | Price | Type | Score | Distance |
|---|---|---|---|---|
| Hildenborough Crescent, Allington, Maidstone ME16 | £ 290,000 | BUY | 6 / 10 | 0.00 KM |
| Eastry Close, Allington, ME16 | £ 475,000 | BUY | 7 / 10 | 0.09 KM |
| Chilham Road, Maidstone, Kent | £ 475,000 | BUY | 6 / 10 | 0.10 KM |
| Halstead Walk, Allington, Maidstone, ME16 | £ 330,000 | BUY | 5 / 10 | 0.11 KM |
| Hildenborough Crescent, Allington, Maidstone ME16 | £ 290,000 | BUY | 6 / 10 | 0.13 KM |
Nearby Properties
| Address | Price | Distance |
|---|---|---|
| 2 Chilham Road | £ 326,000 | 0.08 KM |
| 12 Chilham Road | £ 190,000 | 0.08 KM |
| 5 Chilham Road | £ 209,000 | 0.08 KM |
| 1 Chilham Road | £ 140,000 | 0.08 KM |
| 13 Hildenborough Crescent | £ 260,000 | 0.09 KM |