Woodmead Road, Lyme Regis, Dorset, DT7
By Savills
£ 1,595,000
Reviews
4 out of 5 stars
Savills says ..
Imposing detached town house with commanding views over Lyme Regis and out to sea.
Property Oracle says ..
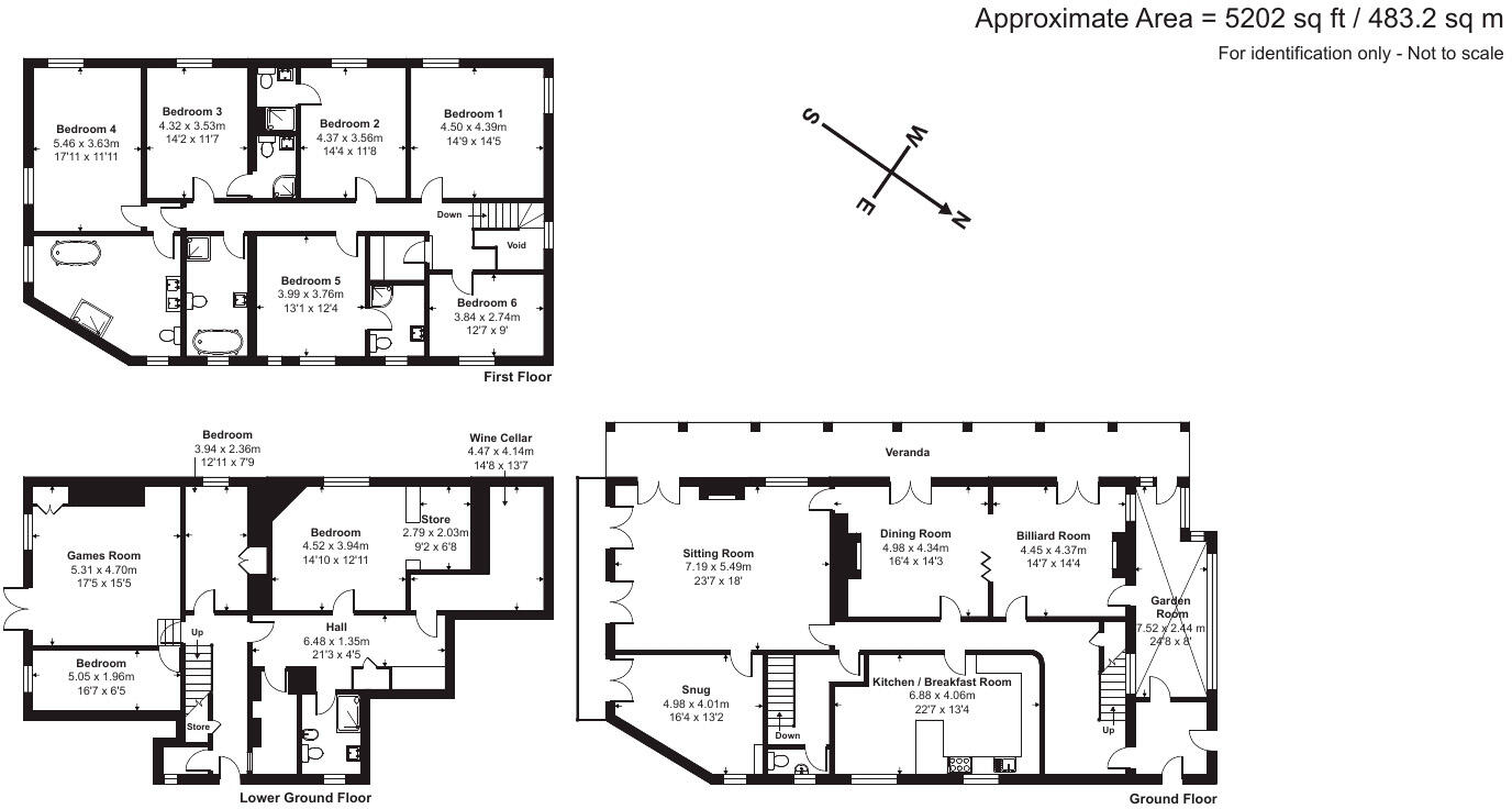
Lyme Regis is a popular coastal town in Dorset, known for its beautiful beaches, harbour, and charming town centre. The property’s location on Woodmead Road places it within easy reach of local amenities and the town’s attractions. The proximity to good schools, such as The Woodroffe School (rated Outstanding by Ofsted), adds to its desirability. However, the distance to Axminster train station (9.25 KM) might be a factor for some buyers. The property appears to be in excellent condition. The images show a well-maintained and tastefully decorated home with modern amenities. There is no visible evidence of significant repairs or renovations needed. The property has many features such as; multiple bathrooms and bedrooms, a large garden, and a conservatory. The property boasts a substantial plot size of 5,201.12 SQFT, including a garden and outdoor space, as evidenced in the photos. This is a significant asset, particularly in a desirable location like Lyme Regis. Considering the property’s size (3,244.24 SQFT), condition, location, and land size, the list price of £1,595,000 appears high compared to the average price per square foot in the area (£365). While Lyme Regis is a premium location, the price per square foot for this property significantly exceeds the area average. Nearby comparable properties provide limited data for direct comparison due to missing square footage data. However, the overall price point suggests that the property may be priced at the higher end of the market.
Therefore, we give this property 8 / 10. *Disclaimer: This is our option and does constitute a recommendation or financial advice. Do your own research. *
- Price
- 6
- Condition
- 10
- Location
- 9
- Land
- 10
- Bedrooms
- 6
- Bathrooms
- 6
- Sqft (est)
- 3,244.24
- Lot (est)
- 5,201.12
The heatmap indicates the level of crime in the area. The color of the heatmap indicates the crime severity and recency.
Metrics Year-on-Year
- Average area value
- 547,942.00 £Decreased by 8.74 %
- Est sale value
- 1,476,129.20 £Decreased by 25.04 %
- Average area rental value
- 1,256.00 £/moIncreased by 35.78 %
- Est letting value
- 3,244.24 £/mo
- Est rental Yield
- 2.75 %Increased by 48.65 %
- Crime Rate
- 24.00 %Unchanged by 0.00 %
Agent Activity
Savills created the listing.
Nearby Schools
| Name | Type | Ofsted | Distance |
|---|---|---|---|
| St Michael'S Church Of England Voluntary Aided Primary School, Lyme Regis | Voluntary Aided School | Requires improvement | 0.65 KM |
| Beaminster And Lyme Regis Sure Start Children'S Centre | Children's Centre | 0.65 KM | |
| The Woodroffe School | Foundation School | Outstanding | 1.11 KM |
| Mrs Ethelston'S Cofe Primary Academy | Academy Converter | Good | 2.41 KM |
| Charmouth Primary School | Community School | Requires improvement | 4.26 KM |
Images
Nearby Streets
| Name | Average Price | Average Sqft | Distance |
|---|---|---|---|
| Manor Avenue | £ 0 | 0 | 0.00 KM |
| Dolphin Close | £ 0 | 0 | 0.00 KM |
| Springhill | £ 0 | 0 | 0.00 KM |
| Pine Walk | £ 0 | 0 | 0.00 KM |
| Monmouth Street | £ 0 | 0 | 0.00 KM |
Nearby Transport
| Name | NLC | TLC | Distance |
|---|---|---|---|
| Axminster | 5714 | AXM | 9.25 KM |
Nearby Listings
| Address | Price | Type | Score | Distance |
|---|---|---|---|---|
| Woodmead Road, Lyme Regis, Dorset, DT7 | £ 1,595,000 | BUY | 8 / 10 | 0.00 KM |
| Woodmead Road, Lyme Regis | £ 1,595,000 | BUY | 8 / 10 | 0.04 KM |
| Woodmead Road, Lyme Regis | £ 600,000 | BUY | Unknown | 0.10 KM |
| Woodmead Road, Lyme Regis | £ 495,000 | BUY | Unknown | 0.15 KM |
| Lewesdon Court, Silver Street, Lyme Regis, Dorset, DT7 | £ 260,000 | BUY | 6 / 10 | 0.17 KM |
Nearby Properties
| Address | Price | Distance |
|---|---|---|
| 4 Woodmead Road | £ 400,000 | 0.09 KM |
| The New House | £ 335,000 | 0.09 KM |
| Briar Lodge | £ 727,500 | 0.09 KM |
| 3 Woodmead Road | £ 202,500 | 0.09 KM |
| Rosser | £ 306,500 | 0.09 KM |