Rolfe East says ..
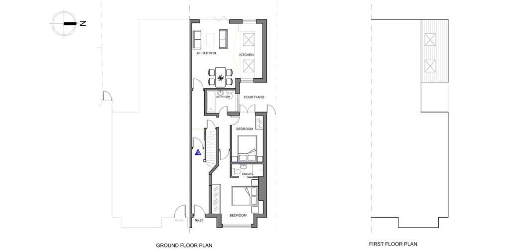
With a large private rear garden and planning permission to extend, this larger than average one bedroom ground floor flat is offered for sale with no upper chain and with the benefit of off street parking. A real feature of the current layout is the through reception/kitchen space which has dire...
Property Oracle says ..
This is a ground floor flat located on Argyle Road in Ealing. The property features one bedroom and one bathroom. While the square footage is not provided, the flat includes a garden, which is a significant selling point. The property is conveniently located near West Ealing station and several schools. The condition of the property is fair, with some aspects potentially benefiting from modernisation. The asking price of £475,000 appears reasonable for the location and features offered. Overall, this property presents a good opportunity for buyers looking for a flat with outdoor space in a well-connected area of Ealing.
Therefore, we give this property 6 / 10. *Disclaimer: This is our option and does constitute a recommendation or financial advice. Do your own research. *
- Price
- 7
- Condition
- 6
- Location
- 7
- Land
- 7
- Bedrooms
- 1
- Bathrooms
- 1
- Sqft (est)
- 523.56
The heatmap indicates the level of crime in the area. The color of the heatmap indicates the crime severity and recency.
Metrics Year-on-Year
- Average area value
- 696,869.00 £Decreased by 12.42 %
- Est sale value
- 344,502.48 £Increased by 0.61 %
- Average area rental value
- 2,517.00 £/moIncreased by 17.73 %
- Est letting value
- 1,047.12 £/moIncreased by 100.00 %
- Est rental Yield
- 4.33 %Increased by 34.47 %
- Crime Rate
- 6.00 %Unchanged by 0.00 %
Agent Activity
Rolfe East created the listing.
Nearby Schools
| Name | Type | Ofsted | Distance |
|---|---|---|---|
| Ealing Alternative Provision | Pupil Referral Unit | Good | 0.18 KM |
| Insights Independent School | Other Independent Special School | Good | 0.26 KM |
| Avenue House School | Other Independent School | 0.34 KM | |
| Drayton Green Primary School | Community School | Good | 0.38 KM |
| St John'S Primary School | Community School | Good | 0.44 KM |
Images
Nearby Streets
| Name | Average Price | Average Sqft | Distance |
|---|---|---|---|
| Sutherland Avenue | £ 484,950 | 0 | 0.00 KM |
| Sutherland Avenue | £ 0 | 0 | 0.00 KM |
| College Road | £ 700,000 | 0 | 0.00 KM |
| Arlington Road | £ 1,128,746 | 0 | 0.00 KM |
| Colebrooke Avenue | £ 0 | 0 | 0.00 KM |
Nearby Transport
| Name | NLC | TLC | Distance |
|---|---|---|---|
| West Ealing | 3188 | WEA | 0.20 KM |
| Drayton Green | 3099 | DRG | 1.00 KM |
| Castle Bar Park | 3098 | CBP | 1.45 KM |
| Hanwell | 3191 | HAN | 1.94 KM |
| Ealing Broadway | 3190 | EAL | 2.16 KM |
Nearby Listings
| Address | Price | Type | Score | Distance |
|---|---|---|---|---|
| Argyle Road Ealing W5 | £ 475,000 | BUY | 6 / 10 | 0.00 KM |
| Argyle Road, Ealing | £ 475,000 | BUY | 7 / 10 | 0.03 KM |
| Argyle Road, West Ealing, London, W13 | £ 799,000 | BUY | 7 / 10 | 0.05 KM |
| Argyle Road, West Ealing, London, W13 | £ 415,000 | BUY | Unknown | 0.05 KM |
| Drayton Road, West Ealing | £ 1,095,000 | BUY | 8 / 10 | 0.05 KM |
Nearby Properties
| Address | Price | Distance |
|---|---|---|
| 54a Argyle Road | £ 225,000 | 0.06 KM |
| 26b - 26d Argyle Road | £ 258,000 | 0.06 KM |
| 36c Argyle Road | £ 213,500 | 0.06 KM |
| 56 Argyle Road | £ 175,000 | 0.06 KM |
| 14a - 14c Argyle Road | £ 245,000 | 0.06 KM |