WI
Meadowgate, Bourne, Lincolnshire, PE10
By Winkworth
£ 265,000
Reviews
3 out of 5 stars
Winkworth says ..
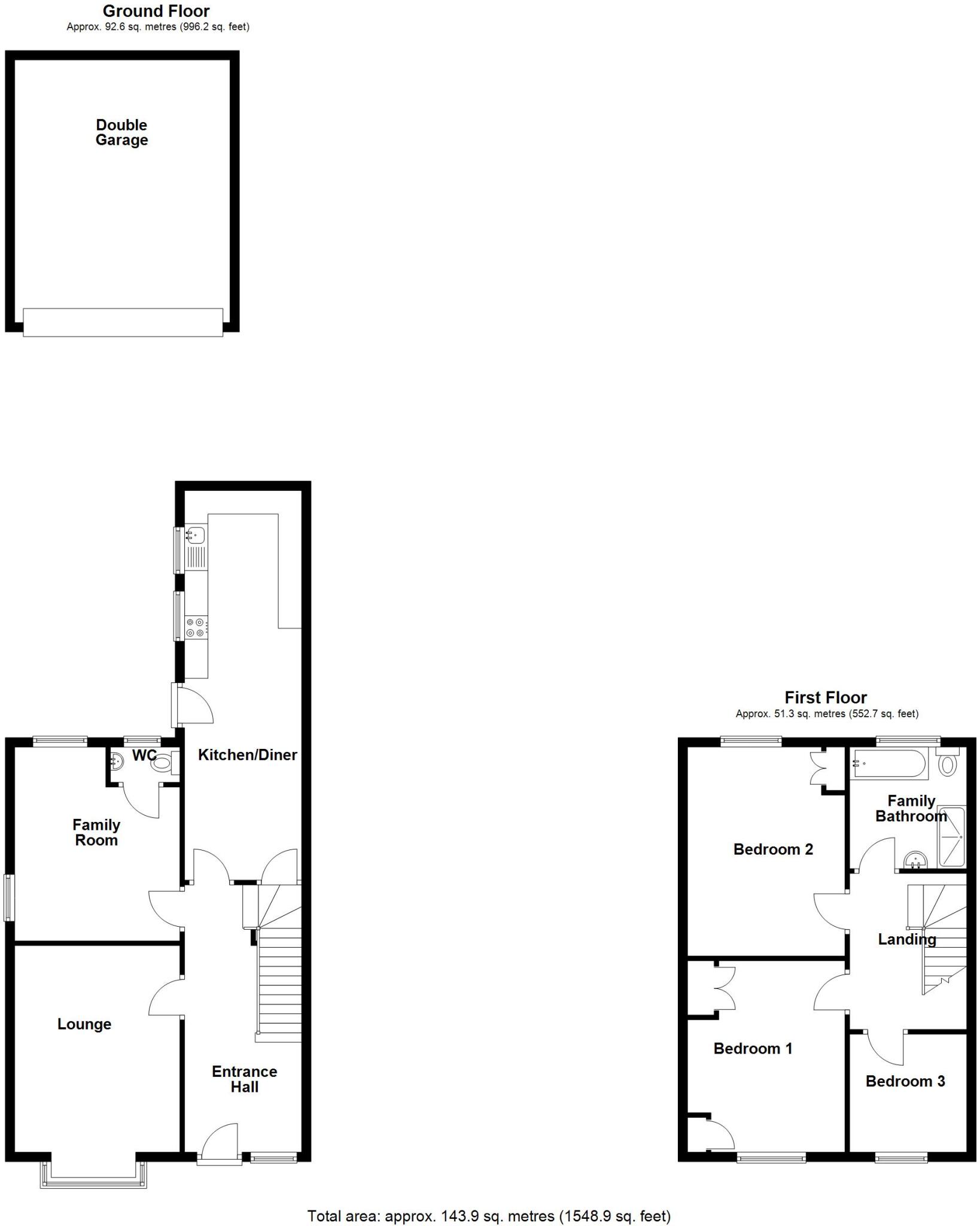
We are delighted to offer for sale this established three bedroom semi detached family home with detached double garage and driveway to the rear. The property is located within a short walk of the town centre with all Bourne's facilities plus schools, leisure centre and abbey lawns are all walkin...
Property Oracle says ..
Therefore, we give this property 7 / 10. *Disclaimer: This is our option and does constitute a recommendation or financial advice. Do your own research. *
- Price
- 9
- Condition
- 8
- Location
- 7
- Land
- 6
- Bedrooms
- 3
- Bathrooms
- 1
- Sqft (est)
- 1,548.93
The heatmap indicates the level of crime in the area. The color of the heatmap indicates the crime severity and recency.
Metrics Year-on-Year
- Average area value
- 217,500.00 £Decreased by 18.21 %
- Est sale value
- 458,483.28 £Increased by 16.08 %
- Average area rental value
- 925.00 £/moDecreased by 2.53 %
- Est letting value
- 1,548.93 £/mo
- Est rental Yield
- 5.10 %Increased by 19.16 %
- Crime Rate
- 25.00 %Unchanged by 0.00 %
from 265,920.00 £
from 394,977.15 £
from 949.00 £/mo
from 0.00 £/mo
from 4.28 %
from 25.00 %
Agent Activity
Winkworth created the listing.
Nearby Schools
| Name | Type | Ofsted | Distance |
|---|---|---|---|
| Bourne Abbey Church Of England Primary Academy | Academy Converter | Good | 0.56 KM |
| Bourne | Children's Centre Linked Site | 0.57 KM | |
| Bourne Academy | Academy Converter | Good | 0.80 KM |
| Bourne Grammar School | Academy Converter | 0.81 KM | |
| Willoughby Academy | Academy Special Converter | 0.90 KM |
Images
Nearby Streets
| Name | Average Price | Average Sqft | Distance |
|---|---|---|---|
| The Burghley Centre | £ 0 | 0 | 0.00 KM |
| Meadowgate | £ 0 | 0 | 0.00 KM |
| Hereward Street | £ 206,667 | 0 | 0.00 KM |
| Harvest Court | £ 0 | 0 | 0.00 KM |
| Meadow Close | £ 0 | 0 | 0.00 KM |
Nearby Listings
| Address | Price | Type | Score | Distance |
|---|---|---|---|---|
| Meadowgate, Bourne, Lincolnshire, PE10 | £ 265,000 | BUY | 7 / 10 | 0.00 KM |
| Hereward Street, Bourne, Lincolnshire, PE10 | £ 500,000 | BUY | 7 / 10 | 0.03 KM |
| Meadow Close, Bourne, PE10 | £ 130,000 | BUY | 7 / 10 | 0.08 KM |
| Meadowgate, Bourne, Lincolnshire, PE10 | £ 205,000 | BUY | 6 / 10 | 0.08 KM |
| Meadowgate, Bourne, PE10 | £ 355,000 | BUY | Unknown | 0.10 KM |
Nearby Properties
| Address | Price | Distance |
|---|---|---|
| 60 Meadowgate | £ 125,000 | 0.10 KM |
| 38 Meadowgate | £ 152,500 | 0.10 KM |
| 42 Meadowgate | £ 103,000 | 0.10 KM |
| 29 Meadowgate | £ 230,000 | 0.10 KM |
| 52 Meadowgate | £ 110,000 | 0.10 KM |