Old Penkridge Mews, New Penkridge Road, Cannock, Staffordshire, WS11
By Boot & Son Chartered Surveyors
£ 110,000
Reviews
3 out of 5 stars
Boot & Son Chartered Surveyors says ..
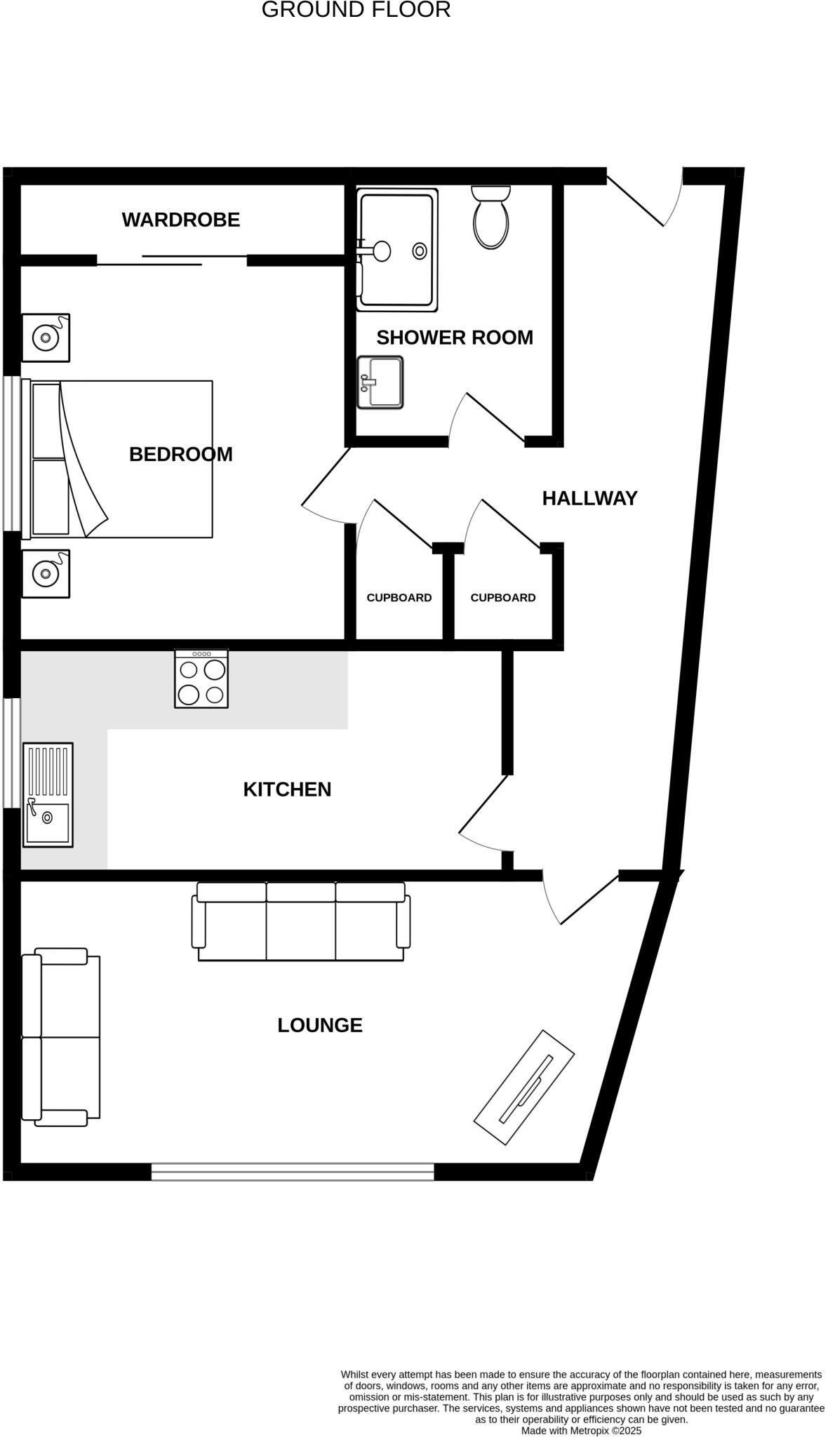
Ideally situated in a popular and CONVENIENT LOCATION close to the town centre, this one bedroom GROUND FLOOR FLAT offers an excellent opportunity for first time buyers, downsizers and investors
Property Oracle says ..
This one-bedroom apartment in Cannock West presents a good opportunity for first-time buyers or investors. The location offers convenient access to local amenities, schools, and transportation links. While the apartment is in reasonable condition, some areas, such as the kitchen and interior decor, could benefit from modernisation. The asking price of £110,000 represents good value for money, being significantly below the average price per square foot for the area. The property benefits from communal grounds.
Therefore, we give this property 6 / 10. *Disclaimer: This is our option and does constitute a recommendation or financial advice. Do your own research. *
- Price
- 8
- Condition
- 6
- Location
- 7
- Land
- 3
- Bedrooms
- 1
- Bathrooms
- 1
- Sqft (est)
- 600.00
The heatmap indicates the level of crime in the area. The color of the heatmap indicates the crime severity and recency.
Metrics Year-on-Year
- Average area value
- 313,271.00 £Decreased by 10.39 %
- Est sale value
- 173,400.00 £Increased by 25.65 %
- Average area rental value
- 821.00 £/moIncreased by 17.12 %
- Est letting value
- 0.00 £/mo
- Est rental Yield
- 3.14 %Increased by 30.29 %
- Crime Rate
- 0.00 %
Agent Activity
Boot & Son Chartered Surveyors created the listing.
Nearby Schools
| Name | Type | Ofsted | Distance |
|---|---|---|---|
| Sherbrook Primary School | Community Special School | Good | 0.64 KM |
| Cardinal Griffin Catholic College | Voluntary Aided School | Good | 0.68 KM |
| St Lukes Cofe Primary School | Voluntary Controlled School | Good | 0.68 KM |
| Chase Grammar School | Other Independent School | 0.89 KM | |
| Chase Grammar School International Study Centre | Other Independent School | 0.89 KM |
Images
Nearby Streets
| Name | Average Price | Average Sqft | Distance |
|---|---|---|---|
| Maple Crescent | £ 325,000 | 0 | 0.00 KM |
| Market Place | £ 0 | 0 | 0.00 KM |
| Grainger Court | £ 0 | 0 | 0.00 KM |
| Baltic Close | £ 0 | 0 | 0.00 KM |
| Ringway | £ 97,500 | 0 | 0.00 KM |
Nearby Transport
| Name | NLC | TLC | Distance |
|---|---|---|---|
| Cannock | 1016 | CAO | 1.51 KM |
| Landywood | 1017 | LAW | 4.12 KM |
| Hednesford | 1148 | HNF | 4.27 KM |
| Bloxwich North | 1018 | BWN | 7.51 KM |
| Bloxwich | 1141 | BLX | 8.48 KM |
Nearby Listings
| Address | Price | Type | Score | Distance |
|---|---|---|---|---|
| Old Penkridge Mews, New Penkridge Road, Cannock, Staffordshire, WS11 | £ 110,000 | BUY | 6 / 10 | 0.00 KM |
| Old Penkridge Mews, New Penkridge Road, Cannock, Staffordshire, WS11 | £ 200,000 | BUY | Unknown | 0.02 KM |
| Penkridge Court, New Penkridge Road, Cannock, Staffordshire, WS11 | £ 126,000 | BUY | 6 / 10 | 0.05 KM |
| 3 Penkridge Court, New Penkridge Road, Cannock | £ 130,000 | BUY | 6 / 10 | 0.06 KM |
| New Penkridge Road, Cannock, Staffordshire, WS11 | £ 130,000 | BUY | 6 / 10 | 0.07 KM |
Nearby Properties
| Address | Price | Distance |
|---|---|---|
| 6 Old Penkridge Mews | £ 80,000 | 0.01 KM |
| 8 Old Penkridge Mews | £ 99,950 | 0.01 KM |
| 22 Old Penkridge Mews | £ 139,995 | 0.01 KM |
| 12 Old Penkridge Mews | £ 97,500 | 0.01 KM |
| 1 Old Penkridge Mews | £ 39,500 | 0.01 KM |