Off The Street, West Horsley
By Wills & Smerdon
£ 800,000
Reviews
3 out of 5 stars
Wills & Smerdon says ..
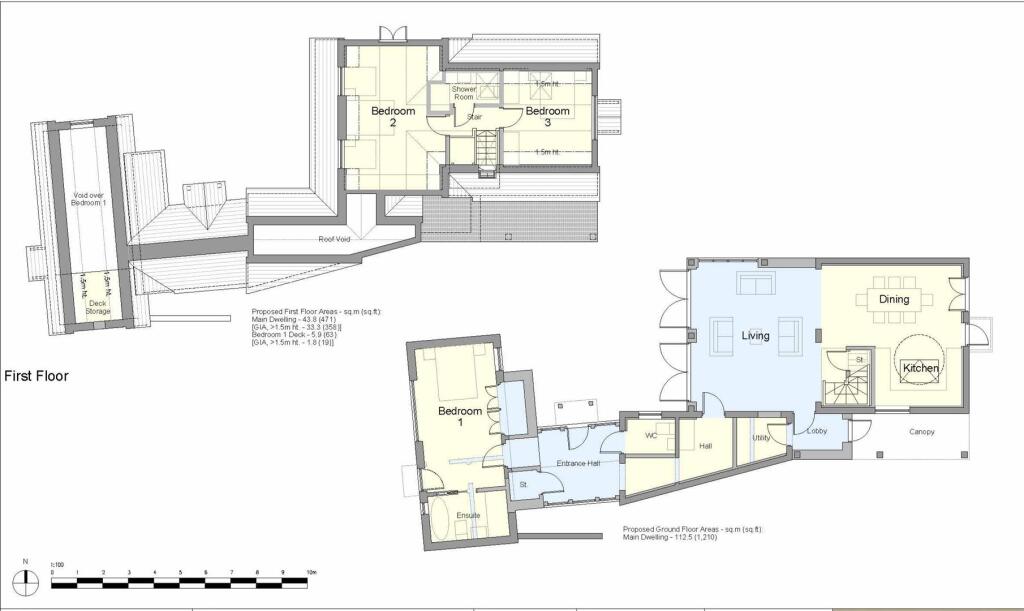
A fabulous consented opportunity to link and convert two adjoining Barns into a breath taking 1,700 sq ft home in a hidden location beyond a gated driveway in the very heart of West Horsley Village.
Property Oracle says ..
This property, located on The Street in West Horsley, offers a blend of modern living within a traditional setting. The house features three bedrooms and two bathrooms, spanning 1,579.20 sq ft. The property includes a garden and is situated in a sought-after village with access to reputable schools. While the nearest train station is a few kilometers away, the location provides a balance of village charm and accessibility. The property appears well-maintained, making it an attractive option for families and those seeking a peaceful village lifestyle.
Therefore, we give this property 7 / 10. *Disclaimer: This is our option and does constitute a recommendation or financial advice. Do your own research. *
- Price
- 8
- Condition
- 7
- Location
- 7
- Land
- 6
- Bedrooms
- 3
- Bathrooms
- 2
- Sqft (est)
- 1,579.20
The heatmap indicates the level of crime in the area. The color of the heatmap indicates the crime severity and recency.
Metrics Year-on-Year
- Average area value
- 1,206,061.00 £Decreased by 2.53 %
- Est sale value
- 1,452,864.00 £Increased by 91.67 %
- Average area rental value
- 2,978.00 £/moDecreased by 21.32 %
- Est letting value
- 3,158.40 £/moIncreased by 100.00 %
- Est rental Yield
- 2.96 %Decreased by 19.35 %
- Crime Rate
- 26.00 %Unchanged by 0.00 %
Agent Activity
Wills & Smerdon created the listing.
Nearby Schools
| Name | Type | Ofsted | Distance |
|---|---|---|---|
| Cranmore School | Other Independent School | 0.90 KM | |
| The Raleigh School | Academy Converter | Outstanding | 1.61 KM |
| Glenesk School | Other Independent School | 2.18 KM | |
| Ripley Court School | Other Independent School | 5.13 KM | |
| Shere Cofe Aided Infant School | Voluntary Aided School | Good | 5.56 KM |
Images
Nearby Streets
| Name | Average Price | Average Sqft | Distance |
|---|---|---|---|
| Fulkes Cottage | £ 0 | 0 | 0.00 KM |
| Meadows Reach | £ 762,500 | 0 | 0.00 KM |
| Mount Pleasant | £ 665,000 | 0 | 0.00 KM |
| Allingham Meadow | £ 995,000 | 0 | 0.00 KM |
| Walnut Tree Gardens | £ 0 | 0 | 0.00 KM |
Nearby Transport
| Name | NLC | TLC | Distance |
|---|---|---|---|
| Horsley | 5562 | HSY | 2.34 KM |
| Effingham Junction | 5642 | EFF | 4.50 KM |
| Clandon | 5555 | CLA | 5.42 KM |
| Gomshall | 5298 | GOM | 5.74 KM |
| Bookham | 5626 | BKA | 8.04 KM |
Nearby Listings
| Address | Price | Type | Score | Distance |
|---|---|---|---|---|
| Off The Street, West Horsley | £ 1,275,000 | BUY | 7 / 10 | 0.00 KM |
| Off The Street, West Horsley | £ 800,000 | BUY | 7 / 10 | 0.00 KM |
| The Street, West Horsley | £ 800,000 | BUY | 7 / 10 | 0.03 KM |
| Off The Street, West Horsley | £ 875,000 | BUY | 7 / 10 | 0.04 KM |
| The Street, West Horsley, Surrey, KT24 | £ 700,000 | BUY | Unknown | 0.06 KM |
Nearby Properties
| Address | Price | Distance |
|---|---|---|
| 200 The Street | £ 270,000 | 0.07 KM |
| 182 The Street | £ 779,000 | 0.07 KM |
| 202 The Street | £ 1,300,000 | 0.08 KM |
| 129 The Street | £ 885,000 | 0.19 KM |
| 127 The Street | £ 670,000 | 0.19 KM |