Martin & Co says ..
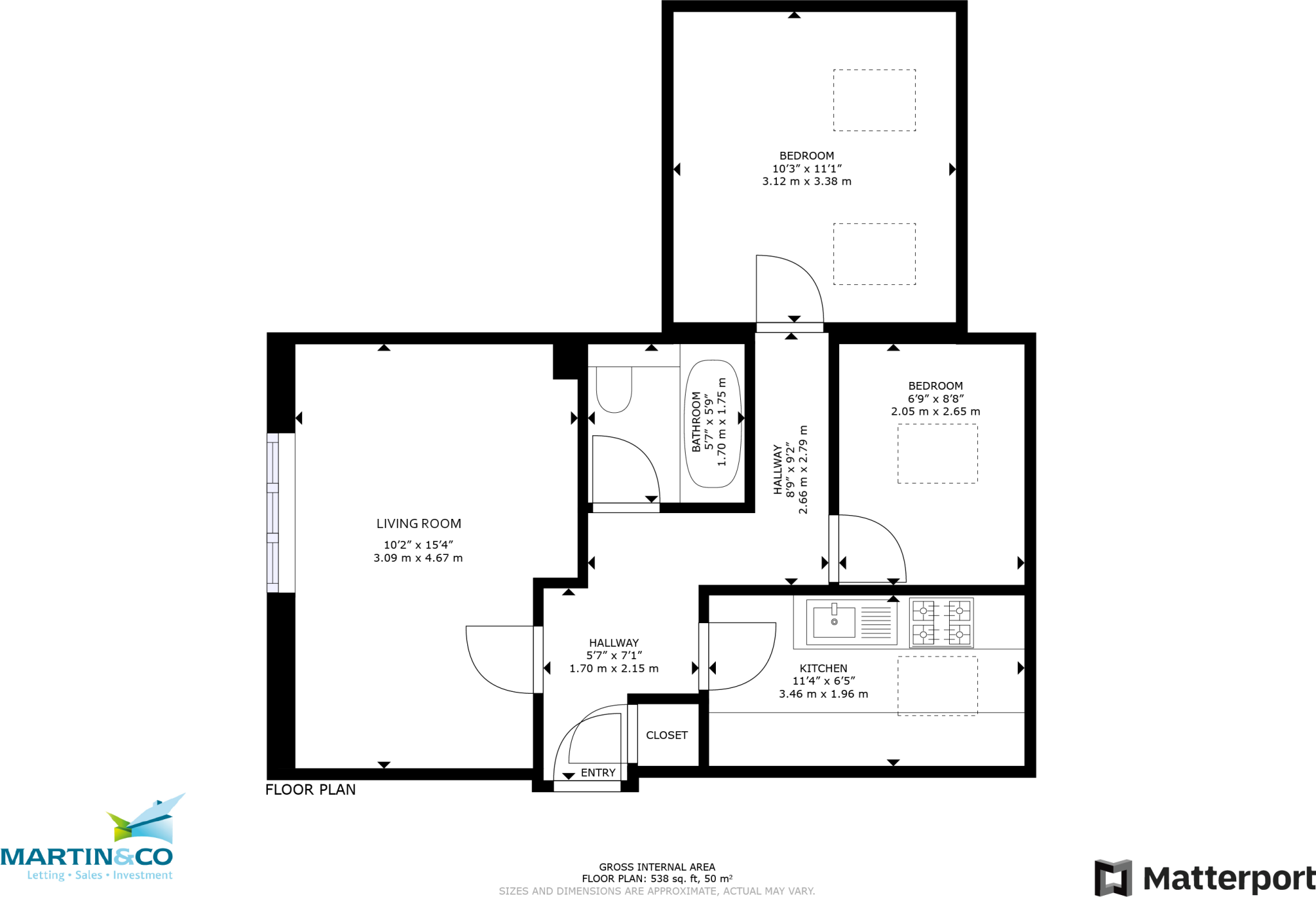
VIEW OUR INTERACTIVE 3D TOUR: This two bedroom central first floor apartment is set in Park Street, in Central Cheltenham. Featuring a large (15'4 by 10'2) living room, separate kitchen, two bedrooms, storage and unallocated off road parking, this property would make an excellent first home or re...
Property Oracle says ..
Therefore, we give this property 6 / 10. *Disclaimer: This is our option and does constitute a recommendation or financial advice. Do your own research. *
- Price
- 8
- Condition
- 7
- Location
- 9
- Land
- 1
- Bedrooms
- 2
- Bathrooms
- 1
- Sqft (est)
- 551.54
The heatmap indicates the level of crime in the area. The color of the heatmap indicates the crime severity and recency.
Metrics Year-on-Year
- Average area value
- 489,766.00 £Increased by 6.36 %
- Est sale value
- 382,217.22 £Increased by 54.34 %
- Average area rental value
- 2,264.00 £/moIncreased by 11.14 %
- Est letting value
- 1,654.62 £/moIncreased by 200.00 %
- Est rental Yield
- 5.55 %Increased by 4.52 %
- Crime Rate
- 14.00 %Unchanged by 0.00 %
from 460,462.00 £
from 247,641.46 £
from 2,037.00 £/mo
from 551.54 £/mo
from 5.31 %
from 14.00 %
Agent Activity
Martin & Co created the listing.
Nearby Schools
| Name | Type | Ofsted | Distance |
|---|---|---|---|
| The Catholic School Of Saint Gregory The Great | Voluntary Aided School | Outstanding | 0.22 KM |
| Gloucestershire Hospital Education Service | Pupil Referral Unit | Outstanding | 0.50 KM |
| Gloucester Road Primary School | Community School | Outstanding | 0.78 KM |
| Cheltenham Ladies' College | Other Independent School | 0.78 KM | |
| Christ Church Cofe Primary School | Academy Converter | 0.87 KM |
Images
Nearby Streets
| Name | Average Price | Average Sqft | Distance |
|---|---|---|---|
| New Street | £ 0 | 0 | 0.00 KM |
| Poole Way | £ 0 | 0 | 0.00 KM |
| Poole Way | £ 0 | 0 | 0.00 KM |
| High Street | £ 0 | 0 | 0.00 KM |
| Honeybourne | £ 325,000 | 0 | 0.00 KM |
Nearby Transport
| Name | NLC | TLC | Distance |
|---|---|---|---|
| Cheltenham Spa | 4731 | CNM | 1.90 KM |
Nearby Listings
| Address | Price | Type | Score | Distance |
|---|---|---|---|---|
| Park Street, Cheltenham, GL50 | £ 140,000 | BUY | 5 / 10 | 0.00 KM |
| Park Street, Cheltenham, GL50 | £ 250,000 | BUY | 6 / 10 | 0.00 KM |
| Park Street, Cheltenham | £ 170,000 | BUY | 6 / 10 | 0.00 KM |
| Burton Street, Cheltenham, Gloucestershire, GL50 | £ 225,000 | BUY | Unknown | 0.03 KM |
| Park Street, Cheltenham, GL50 | £ 232,500 | BUY | 7 / 10 | 0.06 KM |
Nearby Properties
| Address | Price | Distance |
|---|---|---|
| 17 Park Street | £ 218,500 | 0.00 KM |
| 29 Park Street | £ 189,995 | 0.00 KM |
| 9 Park Street | £ 210,000 | 0.00 KM |
| Park Cottage | £ 40,000 | 0.00 KM |
| 3 Park Street | £ 197,000 | 0.00 KM |